瑞典作家罗拉·A. 阿克斯特伦曾经一本关于瑞典生活的书《lagom》带来了这家位于塘萍路的面包店,也确立了这次设计初始阶段的主要思想。
“Lagom”, a book by the Swedish writer Laura A. Akström about life in Sweden has brought this bakery on Tangping Road, which has also constructed the main idea of the initial stage of its design.
▼店铺外观,Store front© 形在摄影

▼入口细节,Entrance detailed view© 形在摄影

午后塘萍路上穿过树影的阳光自由且温暖,我们希望配合着面包的香气可让美好无限延伸。于是阳光与温暖自由成为了关于设计的一切构想。
In the afternoon, the sunlight passing through the trees on Tangping Road is free and warm, and we hope to extend the beauty infinitely with the aroma of bread.So the idea of the design is all about sunlight, warmth, and freedom.
▼树影斑驳,Shadow of the trees© 形在摄影

▼室内空间概览,Interior view© 形在摄影

为了更好的留住阳光,我们在门头之上构建一处留白,让阳光可以生长,让自然给门头以时光的变化。我们结合造型用石材搭建一处可供户外休息的石台,希望在阳光美好的季节可以在户外享受面包的美味。
To better retain the sunlight, we leave a blank space above the door where the sunlight can grow and nature can change the look of the door with time. Combined with the shape, we build a stone platform for outdoor rest, so that our customers can enjoy the delicious bread outdoors in the sunny season.
▼从门头望向面包店内部,View from the entrance© 形在摄影


▼座位区域,Seating area© 形在摄影

为了将户外的光影同样可以更好的带入室内,我们在室内的门头下方设置了可以升降的纸屏风,于是一天的光影便可跃然于纸上,让室内的氛围多一份自然。
To better bring the outdoor light and shadow into the room, we install a paper screen that can be raised and lowered in the indoor door, so that the light and shadow of the day can be vividly displayed on the paper, making the indoor atmosphere more natural.
▼从室内望向纸屏风,View to thepaper screen from internal space© 形在摄影

▼室内光影,Light and shadows© 形在摄影


室内的设计为了可以更好的传达品牌包容自由的思想,我们打破面包店的传统售卖方式,将面包以中心展台的方式呈现,在提高互动性的同时,也让空间整体动线更加整体与自由。
▼轴测图,Axon© 喜叻空间研究

For the interior design, we break the traditional sales mode of the bakery and present the bread in the form of a central counter to better convey the brand’s idea of tolerance and freedom. While improving interactivity, it also makes the overall movement of the space more unified and freer.
▼面包以中心展台的方式呈现,Central counter for product display© 形在摄影

▼吧台和展示台,Bar counter and display area© 形在摄影



为了营造温暖与自然的空间氛围,让整体空间与面包有更好的融合,我们用天然洞石与桦木作为主要材料来构建整个空间。通过现浇混凝土搭建吧台与面包台,让空间中两个主要形体结构产生对比的同时,也给空间增添相对朴素的力量感。
To create a warm and natural space atmosphere and better integrate the space with bread, we use natural travertine and birch as the main materials to construct the entire space. The bar counter and the bread counter are built with cast-in-place concrete, which not only creates a contrast between the two main physical structures in the space but also adds a simple sense of strength to the space.
▼现浇混凝土材质的吧台与面包台,The bar counter bread counter are built with cast-in-place concrete© 形在摄影


▼室内细节,Interior view© 形在摄影


在空间的细部处理上,我们将空间中不同的展示区域保持基本形体统一的同时,赋予不同的细节处理,让视觉效果更加细腻丰富。
In handling the details of the space, we keep the basic shapes of different display areas in the space unified, and at the same time give them different details to make the visual effect more delicate and richer.
▼家具和材料细节,Furniture and material© 形在摄影




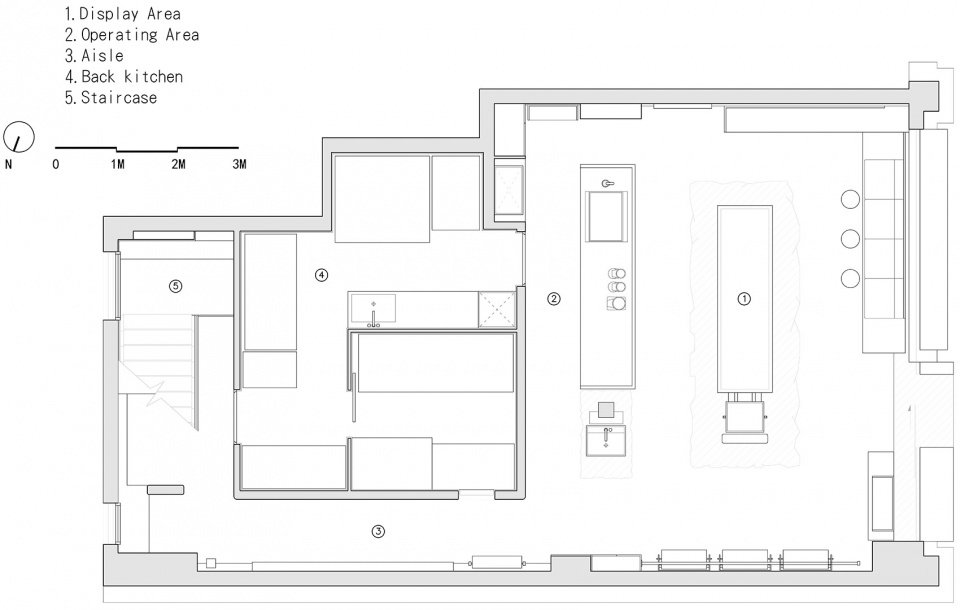
▼平面图,Plan© 喜叻空间研究

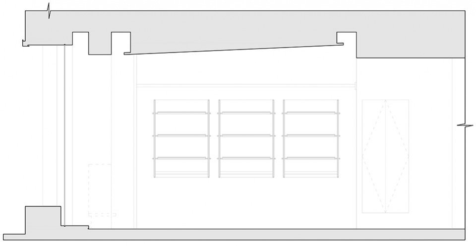
▼剖 -立面示意1,Section – elevation 1© 喜叻空间研究

▼剖 -立面示意2,Section – elevation 2© 喜叻空间研究

▼剖 -立面示意3,Section – elevation 3© 喜叻空间研究

▼剖 -立面示意4,Section – elevation 4© 喜叻空间研究

项目名称:lagom13
设计方:杭州喜叻空间研究
主设计:高成/张润
团队成员:高成/张润
设计&完成:2022/5-2022.10
项目地点:中国杭州
项目面积:120平方
空间摄影:形在空间摄影/贺川
主要材料:洞石/桦木板
公司地址:杭州市/拱墅区/景苑路30号,隐秀三宝创意园A210室
Project name:lagom13
Design:Shire Space Research
Contact e-mail:755430646@qq.com
Leader designer & Team: Gao cheng/Zhang run
Project location:HangZhou
Gross Built Area:120square meters
Photo credits:Here Space Photography/He chua
Main Material: Travertine/Birch board
Office address:Room a210, yinxiu Sanbao Creative Park, No. 30, Jingyuan Road, Gongshu District, Hangzhou
More:喜叻空间研究(联系邮箱:755430646@qq.com);更多关于:Shire Space Research on gooood