2012年,Gurdau酒庄于Kurdějov小镇的一片“绿地”上成立,并在小镇上方的山坡上种植了第一批葡萄藤。从历史的角度来看,Kurdějov小镇与葡萄酒颇有渊源,这座小村庄曾是Mikulov与Brno镇居民及摩拉维亚贵族宫廷最重要的葡萄酒供应地之一。而年轻的Gurdau酒庄则致力于发扬当地伟大的葡萄种植与酿造传统,恢复其历史上的辉煌。
Gurdau Winery was founded in 2012 on a “green field”, with the planting of the first vines on the slopes above the village of Kurdějov. The village was historically one of the most important wine suppliers to the townspeople of Mikulov and Brno, as well as to the aristocratic courts in Moravia. By adopting the historical name of the village, the young Gurdau Winery is claiming the great wine-growing heritage of the area.
▼项目概览,overall of the project© BoysPlayNice

景观中的涟漪
A Ripple in the Landscape
设计的核心理念旨在将酒庄布置在场地中有利的位置,以实现最高效的生产流程。因此,设计师将建筑体量规划在葡萄园的中心,这种布局既实现了以上的目的,又带有一丝回归田园的诗意,将酒庄从村镇的建筑环境中退后了一步,进而创造出舒缓和迷人的自然景观视野。酒庄坐落在开阔的乡村环境中,自然地将设计导向了建筑、景观的高度融合。
The initial ideas for the wine house considered the most operationally efficient location, literally in the centre of the vineyards. This is both purposeful and poetic, as it steps back from the village and offers soothing and enchanting views. To do so, the building’s location in the open countryside naturally brought with it high demands for architectural and landscape integration.
▼由葡萄园看建筑,viewing the building from the vineyard© BoysPlayNice

▼设有“开孔”的曲面屋顶,curved roof with “open holes”© Aleš Fiala

▼屋顶细部,details of the roof© Aleš Fiala


▼后部装卸区,back loading area© Aleš Fiala

景观环境以柔和的曲线形式表达在建筑的设计中,宛如景观中的涟漪,小山之间的小山。建筑师非常小心地将建筑融入地形,并将其与地区的文化和自然绿化紧密结合在一起。独特的曲线屋顶被构想为一片广阔的绿色空间,而建筑周围也种植了多达150种的灌木与乔木等。茂盛的植被从设有一系列洞口的屋顶中生长而出,随着时间的推移,新绿化对景观和建筑的整体影响和益处将变得越来越明显。
The landscape context is addressed in the form of a gentle curve – a wave in the landscape, a hill between hills. Great care has been taken to incorporate the building into the terrain and its connection to the cultural and natural greenery. The roof of the curve is designed as an extensive green, and the surrounding area of the building has been planted with 150 shrubs and mature trees, often growing through the “perforated” roof. The overall impact and benefit of the new greenery on both the landscape and the building will only become apparent as the years go by.
▼景观环境以柔和的曲线形式表达在建筑的设计中,the landscape context is addressed in the form of a gentle curve© BoysPlayNice

▼建筑融入地形与文化和自然绿化紧密结合在一起,the architecture is integrated into the topography and is closely integrated with the cultural and natural greenery© Aleš Fiala


▼绿色屋顶细部,details of the green roof© Aleš Fiala

▼地下生产空间入口,entrance to the basement production area© Aleš Fiala

有机建筑
Organic Architecture
建筑共包含了两个楼层,采用了钢筋混凝土的结构。地下部分用于葡萄酒的生产、储存和存档。地面层则设有品尝区、休闲座位区和销售区。此外,酒庄中还配备有两间公寓客房可供偶尔过夜。
The building itself is built in reinforced concrete, two storeys high. The underground part is used for producing, storing, and archiving wine. The ground floor is used for tasting, seating, and sales. Two apartments are available for occasional overnight stays.
▼户外露台与凉棚,outdoor terrace and pergola© BoysPlayNice


▼露台顶视图,top view of the terrace© Aleš Fiala

半地下的建筑形式来源于传统的酒庄建筑,将当地的设计理念与永恒的空间品质完美结合在一起。室内设计旨在营造出美丽,精致,绝对舒适的经验。裸露的混凝土、玻璃、金属、橡木和金合欢木等材料,以干净直接的空间印象与建筑的有机形式相互呼应。与此同时,对精密工艺和细节的关注也成为了设计中浓墨重彩的一笔。大面积的玻璃、宽敞的露台和倾斜的屋顶,在建筑与景观之间创造出直接的对话,同时也将季节的变化引入室内空间之中,为空间体验带来了各种自然的情绪。
The building’s in-ground setting is traditional for the winery, and its concept is utterly contemporary and timeless. The atmosphere of the setting is based on an experience of beauty, refinement, and absolute comfort. The use of materials such as exposed concrete, glass, metal, oak and acacia wood is clean and direct and supports the organic form of the building. At the same time, the utmost attention is paid to precision craftsmanship and detail.The direct contact with the landscape, enabled by large expanses of glazing, generous terraces, and a pitched roof, brings a variety of natural moods and seasons to the experience of the space.
▼接待空间,reception area© BoysPlayNice

▼品酒与休闲空间,tasting and seating area© BoysPlayNice

▼走廊,hallway© BoysPlayNice

▼葡萄酒桶,wine barrels© BoysPlayNice

通过将建筑嵌入地形之中,一种温馨的背景感油然而成,酒庄也与葡萄酒产地自然地融合在一起。人们可以在露台或由绿色屋顶形成的人造山丘上享受广阔的视野与清新的空气,在这里,人们能够远眺到Kurdějov的地平线,甚至还能隐约地看到从Pálava向奥地利延伸的广袤平原。而酒庄内部的氛围则是多变的,人们既能够在这里畅快社交,享受浪漫一刻,也能够找到独自品酒、安静沉思的角落。Aleš Fiala的建筑师们相信Gurdau酒庄的概念将为捷克共和国快速发展的葡萄酒和葡萄酒旅游文化做出重大贡献,同时也将以一种迷人的方式发扬当地的葡萄酒种植传统,增强人、葡萄酒以及自然景观的联系。
Embedding the buildingin the terrain creates a feeling of a welcoming background and a natural blending with the place from which the wine comes. The view and airiness can be enjoyed from the terraces and the artificial hill of the green roof, where one can enjoy the fabulous scenery of the horizons of Kurdějov, the Pálava looming in the distance and the plains stretching towards Austria. The spaces of the wine house are changeable and conducive to social, and romantic moments as well as quiet contemplation over a glass of wine. We believe that the Gurdau Winery concept will make a significant contribution to the rapidly growing and increasing wine and wine-tourist culture in the Czech Republic, and will support the growth of a new charming tradition of cultivated encounters and connections between man, wine and landscape.
▼由室外看客房,viewing the guest room from outside© BoysPlayNice

▼客房露台,terrace of the guest room© BoysPlayNice

▼露台与屋顶细部,details of the terrace and the eaves© BoysPlayNice

▼客房室内,interior of the bedroom© BoysPlayNice

可持续性
Sustainability
建筑的设计最大限度地尊重了周围的景观,内部的建筑空间完全被绿色屋顶所覆盖,当植被生长出来,从远处看,建筑将完全隐没于自然环境之中。此外,建筑周围还种植了大量新的灌木与乔木,以便在未来为场地创造最佳的微气候。
The building is designed with the utmost respect for the surrounding landscape. It is completely covered by a curved extensive green roof so that it is almost invisible in distant views once the vegetation has grown. The surroundings of the building are supplemented with a number of new shrubs and mature trees in order to also create an optimal microclimate in the future.
▼场地夜景鸟瞰,aerial view of the site at night© BoysPlayNice

▼建筑夜景鸟瞰,aerial view of the winery at night© BoysPlayNice

▼外观夜景,night view of exterior© BoysPlayNice


建筑坐落于葡萄园的中央,最大限度地减少了酒庄内原材料的运输成本、简化了工作人员的交通流线。生产区域位于地下空间中,消费者区域则通过大面积的玻璃幕墙向外部环境开放,同时也为室内引入了充足的自然采光,发挥出被动能源的潜力。为了防止室内空间于炎热的夏季过热的问题,设计采用了三层隔热玻璃,同时在窗前设置了橡木遮阳格栅,出挑的屋檐也能够在一定程度上控制入射的光线,露台区域则采用了防水油布为凉棚区域进行遮阳。供暖方面,本项目则采用了节能的空气水热力泵系统。此外,项目中还设有雨水收集系统,以用回收的水资源灌溉葡萄园。
The location of the building right in the vineyard minimizes the transport of raw materials and workers within the winery. The production areas are located under the terrain, while the customer areas are open to the sun through a glass façade, thus making use of passive energy. To prevent overheating in the hottest summer months, thermally insulating triple glazing is designed in combination with wooden oak slats in front of the windows, a sufficient overhang of the curved roof, and shading of the pergola in front of the façade with tarpaulins. An air-to-water heat pump is used for heating. Rainwater is collected in a storage tank and used for irrigation of the vineyard.
▼立面细部夜景,night view of the entrance facade© BoysPlayNice


▼露台夜景,night view of the terrace© BoysPlayNice

▼场地平面图,site plan© Aleš Fiala

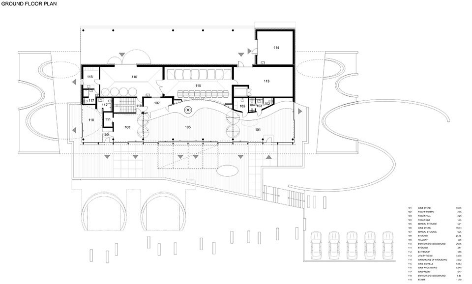
▼一层平面图,ground floor plan© Aleš Fiala

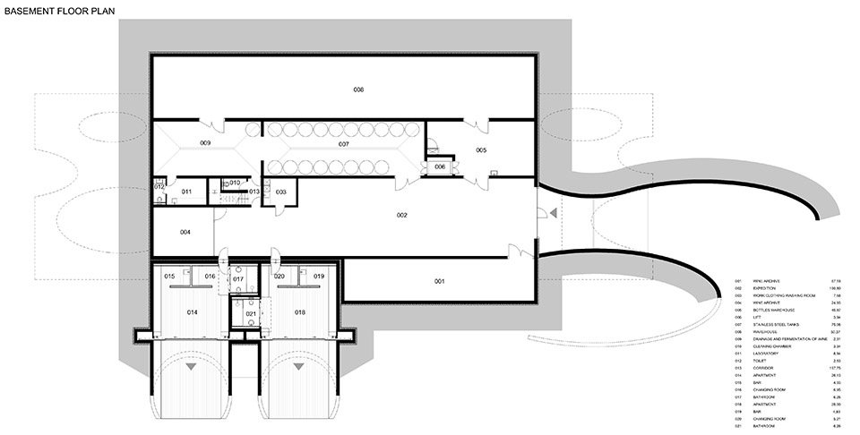
▼地下层平面图,basement floor plan© Aleš Fiala

▼立面图,elevations© Aleš Fiala




▼剖面图,section© Aleš Fiala

Studio: Aleš Fiala
Author: Aleš Fiala
Contact E-mail: alesfiala.arch@gmail.com
Website: http://www.alesfiala.com/
Studio address: Sochorova 3221/1, 616 00 Brno – Žabovřesky, Czech Republic
Co-author: Tomáš Bílek, Bronislav Bureš [civil engineers]
Project location: Kurdějov 300, 693 01 Kurdějov
Project country: Czech Republic
Project year: 2016–2020
Completion year: 2022
Built-up Area: 1260m²
Gross Floor Area: 1141m²
Usable Floor Area: 997m²
Plot size : 43099m²
Dimensions volume: 5300 m3
Client: Gurdau Winery
Client’s e-mail:info@gurdauvinarstvi.cz
Client’s website: http://www.gurdauvinarstvi.cz/
Photographer: BoysPlayNice, info@boysplaynice.com, http://www.boysplaynice.com/
Collaborator
Statics: OK ateliér,http://www.okatelier.cz/
MEP: Projekce TZB Prokeš, http://www.projekcetzb.eu/
Electrical installations and security system: CATEGORY, http://www.category.cz/
Landscaping: Zdeněk Sendler
Furniture design, interior details: Daniela Hradilová, http://www.danielahradilova.cz/
General contractor: Navláčil stavební firma, http://www.navlacil.cz/
Steel constructions: OMELKA, http://www.omelka.eu/
NEJEZ stavebně zámečnické práce, http://www.nejez.cz/
Ateliér Originál Hořánek,http://www.horanek.cz/
Joinery: DŘEVOSTYL [Libor Zeman], http://www.drevostyl.cz/
Bílek&Bílek truhlářství
Wooden floors and terraces: BELEVEY [Ladislav Sedláček], http://www.belevey.cz/
Materials
main structure – monolithic reinforced concrete
roof – extensive green
glazed areas – aluminium profiles, triple glazing
shading blinds – oak
terraces – acacia
floor screeds – cement, polyurethane
interior floors – oak
interior wall – slatted oak cladding
various details and elements – steel, glass
Products and Brands
window openings — Schüco\http://www.schueco.com/
lighting fixtures — Georg Bechter Licht\http://www.georgbechterlicht.at/
bent glass — bentglass\http://www.bentglass.cz/
concrete precast exterior elements — BETON-Těšovice\http://www.beton-tesovice.cz/
glued oak profiles, columns, blinds — DŘEVO-SPEKTRUM\http://www.drevo-spektrum.cz/
textiles — Habitat\http://www.habitat-cz.cz/
furniture — TON\http://www.ton.eu/
furniture — Dedon\http://www.dedon.de/
lights — Occhio\http://www.occhio.com/
beds — Vispring Beds\http://www.vispring.com/
seating furniture — Living Divani\http://www.livingdivani.it/
wine cosmetics — Caudalie\http://www.caudalie.com/
sound system — Bang & Olufsen\http://www.bang-olufsen-cee.com/
More:Aleš Fiala 更多关于他们:Aleš Fialaon gooood