奕凨尝试突破传统酒店严肃正统的空间叙事,打造一家适合现代旅行者,迎合全球千禧一代和Z世代顾客群体的旅居品牌。
考虑到可持续及经济适用性,空间设计以温暖,舒适,亲切的感觉为主,并强调设计的功能和质感。针对当下年轻人追求精致极简的主张,利用本土语境打造出充满活力的设计元素,赋予了室内空间独具魅力的风格。
Aiming to break the traditional hotel narrative of serious spaces and strict boundaries, Ying’nFlo is a lifestyle guesthouse for modern day travelers.
With ecological and economical efficiency in mind, the spaces are designed to have a warm, welcoming and familiar feel, emphasizing functionality and quality. Against this backdrop of curated simplicity is an edge of youthful attitude and local context, with vibrant elements giving the hotel its own unique flavour.
▼民宿主要公共空间概览,Overall of themain interior space© Jonathan Leijonhufvud


在 “奕凨之家” 理念的推动下,一层共享空间被设计成一系列旨在提供“居家般舒适”的房间,住客可以在这里互动交流,也可以与社区建立连接。
Driven by the idea of the ‘House of Ying’nFlo’ the Ground Floor social spaces are designed as a series of rooms aimed at providing ‘home comfort’. The Ground Floor is a communal space with a seamless flow, allowing connectivity between guests and the community.
▼首层接待处,Reception©Jonathan Leijonhufvud

▼接待处细节设计,Details of the reception©Jonathan Leijonhufvud


客人抵达后首先映入眼帘的是“收藏家室”,这是一个素净而有机的空间,内有精选排列的饰物,手工涂料墙面,木制板以及亚麻镶板橱柜。室内Mutina品牌的陶砖地面与室外露台地面无缝衔接。透过玻璃窗打造的景框可以看到室外露台中央的橄榄树和固定长椅。同时,室内特别设置了一张浅色橡木公用长桌供客人交流小憩。
Upon arriving one is greeted by ‘The Collectors Room’, a neutral and organic space with curated objects, hand rendered walls, timber paneling, linen cabinetry. Terracotta Mutina tiles pave the floor to create a seamless connection to the exterior terrace. Glazing frames the exterior courtyard, with a centralised olive tree and built in bench seating. A light oak communal table operates as a counter for guests to connect.
▼“游乐室” 与“收藏家室”,‘The Arcade’ and‘The Collectors Room’©Jonathan Leijonhufvud

▼素净而有机的空间,A neutral and organic space ©Jonathan Leijonhufvud


格纹木制屏风从外部一直延伸至电梯大堂,引导客人穿过并到达“游乐室”,这是一个聚会,放松和玩耍的房间。地面采用了带有纹路的瓷砖,俏皮的瓷砖与柔和的涂料墙面相互衬托,营造温暖亲密的氛围,木制百叶窗与折衷主义混搭的家具组合相得益彰。
A trellised timber screen extends from the exterior through to the lift lobby guiding guests through to the ‘The Arcade’, a room to gather, relax and play. The floor is clad in graphical tiles, shifting in pattern. The playful tiles are offset with soft rendered walls, timber shutters offering a sense of intimacy, and an eclectic mix of furniture.
▼“音乐室”,The ‘Music Room’ ©Jonathan Leijonhufvud

与“游乐室”空间相邻的是“音乐室”,这是奕凨之家的社交中心。赭色地砖,纹理石膏涂料,定制的橡木搁架系统以及精选的充满艺术感的饰物共同构建了这个房间。房间内的定制沙发,让客人在此能够拥有家外之家的舒适体验。
Adjacent to ‘The Arcade’ is the ‘Music Room’, this is the social hub of the House of Ying’nFlo. Ceramic tiles, textural plaster, bespoke oak shelving system and curated art and lifestyle objects frame the room. A custom sofa nestles within allowing guests to connect in their home away from home.
▼家具的使用提供舒适的体验,The use of furniture provides a comfortable experience ©Jonathan Leijonhufvud


宽敞的花园露台是一个大胆运用色彩的区域,与浅色调,自然材料及简洁线条的室内空间形成鲜明反差。外围的绿色植物包裹住露台,高低起伏的节奏与植物流动的线条打造出有趣的口袋空间,以及一个中心的凉台小屋。环形座椅上明黄色条纹图案与自然色系的瓷砖与郁郁葱葱的绿植形成有趣的对比。
Against the light tones, natural materials and clean lines of the interior, the generous Garden Terrace is a bold and colorful environment. A peripheral volume of greenery organically wraps the terrace, undulating to allow pockets of inhabitation and a centralised cabana. Circular seating in playful yellow stripped fabric contrasts with the natural ceramic tiles and abundant greenery.
▼花园露台,Garden Terrace ©Jonathan Leijonhufvud

▼大胆的配色,Bold and colorful ©Jonathan Leijonhufvud


客房简约而又不失奢华质感;清新,实用,舒适惬意。素净的浅色系涂料,木材,水洗白橡木和帆布材质提供了一个肌理丰富而经久耐看的居住环境。天花板的淡灰绿色给人以一种年轻俏皮的感觉,同时在细节精致丰富的空间中不会过于跳脱。绿色调同时延伸到窗框,飘窗区以及卫生间和厨房的手工釉面砖上。每个空间都被赋予了功能的多样性以及深思熟虑的考究细节。供客人办公,休息以及用餐的座椅区以及休闲家具使客房在全天内都得以高效利用,在不同的功能需求中灵活转换,打造愉悦的入住体验。
▼简约而又不失奢华质感的客房,Simple yet luxurious guest rooms ©Jonathan Leijonhufvud



The guest rooms are luxurious in their simplicity; fresh, functional and welcoming. A clean palette of plaster, wood, white washed oak and canvas provides a textured and timeless environment. The ceiling datum is painted in muted green providing a youthful edge and playfulness, without overpowering the sophisticated backdrop. The green tone extends to frame window seating nooks and hand glazed tiles in the bathroom and kitchen. Every space is utilized to offer variety in spaces and function along with considered detailing. Seating nooks and lounge furniture for working, relaxing or dining makes the rooms efficient & functional creating an enjoyable & seamless guest experience to be used at all times of the day.
▼客房卫生间,Bathroom©Jonathan Leijonhufvud

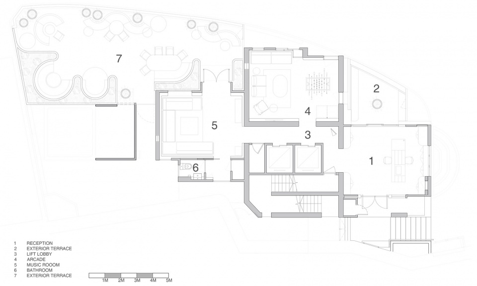
▼首层平面图,ground floor plan© Linehouse

▼客房层平面图,guest room floor plan© Linehouse

完成时间:2022
项目面积:1,800平米
项目客户:鹰君集团与朗廷酒店集团
建筑设计:联图Linehouse
设计主创:Briar Hickling
设计团队:Ricki-Lee Van Het Wout, Lara Daoud, Justin Cheung
项目地址:3-5 Wan Chai Gap Road, Wan Chai, Hong Kong
项目摄影: Jonathan Leijonhufvud
联图网站:linehousedesign.com
更多信息咨询可联系:info@linehousedesign.com
主要材料供应品牌:
Anta – Mutina Tiles (Pico & Tape)
Link Firm – Inax – Fabe OX Tiles (2/26N, 3/21N)
Wool Studio – St. Leo – Marble Plaster (Rue Bottero, Herluff Trolles Gade, Via Cenami)
Stone Design – Misc. Terrazzo
Caeser stone – 4004 Raw Concrete
Year of Completion: 2022
Area: 1,800 sqm
Client: Great Eagle Holdings and Langham Hospitality
Architect: Linehouse
Design Principle: Briar Hickling
Design Team: Ricki-Lee Van Het Wout, Lara Daoud, Justin Cheung
Project Address: 3-5 Wan Chai Gap Road, Wan Chai, Hong Kong
Photography: Jonathan Leijonhufvud
Architect Website: linehousedesign.com
For more information, contact: info@linehousedesign.com
Key Suppliers:
Anta – Mutina Tiles (Pico & Tape)
Link Firm – Inax – Fabe OX Tiles (2/26N, 3/21N)
Wool Studio – St. Leo – Marble Plaster (Rue Bottero, Herluff Trolles Gade, Via Cenami)
Stone Design – Misc. Terrazzo
Caeser stone – 4004 Raw Concrete
More:联图建筑设计。更多关于他们:Linehouse on gooood