由MEE事务所设计的Nikolaj Kunsthal咖啡馆与精品店位于哥本哈根,由一座老教堂改造而成。这座教堂建于1912年,但其历史渊源可以追溯到1200年代早期。几个世纪以来,教堂经历了多次改造,并于1981年被哥本哈根市政府采纳为当代艺术空间。2022年,MEE事务所受邀在教堂内改造一处生动而实用的空间,以补充其目前的展览功能。
MEE Studio was commissioned to create a new café and boutique at Nikolaj Kunsthal, a church in Copenhagen that was built in 1912 but dates back to the early 1200s. The church has gone through many transformations over the centuries and was adopted as a contemporary art space by the municipality of Copenhagen in 1981. In 2022, MEE Studio was tasked with creating a lively and functional space that would complement the exhibition function of the church.
▼项目概览,overview of the project© Paolo Galgani

项目涉及修复和改造两个部分,设计旨在融合历史与现代技术,以尊重现有建筑为前提为教堂内部赋予当代的空间氛围。建筑师重新打造了教堂的大门以及开窗,墙壁上的丙烯酸涂料被剥离,取而代之的是透气的石灰质涂料。这种改造策略不仅沿用了传统的涂料,同时也将建筑的完整性放在了设计改造的首位。
The project involved a partial restoration and partial transformation, fusing historical techniques and respect for the existing architecture with contemporary elements. The grand door and window openings were reestablished, and the acrylic paint was stripped off the walls and replaced with breathable lime-based paint, respecting the original paint used in the past and prioritizing the integrity of the building.
▼教堂入口,entrance of the church© Paolo Galgani


此外,建筑师还在特定的室内区域内添加了隔音石膏板,以改善声学环境,并在这个过程中将数十年的临时电线、管道和建筑装饰细部整合在一起。全新的供水和污水处理装置为在咖啡馆中设置厨房提供了可能性,进而为空间创造出新的用途。
Acoustic plaster was added in select areas to improve the acoustic environment, and the technical installations were completely redone, tidying up decades of ad-hoc electrical wiring, piping, and decorating. New water and sewage installations made a café and kitchen possible, inviting new uses for the space.
▼由咖啡馆看精品店,viewing the boutique from the cafe© Paolo Galgani

▼咖啡馆吧台与座位区,bar and seating area of the cafe© Paolo Galgani


▼座位区,the seating area© Paolo Galgani


▼座椅细部,details of the seating© Paolo Galgani


酒吧区采用没有经过任何处理的原始铜片作为后挡板,这种选材参考了教堂屋顶的材料,随着时间的推移,铜的肌理将在氧化作用下变得更加美丽。长长的酒吧吧台作为咖啡馆的中心与服务台,与安排合理的座位区一起,为室内营造出亲密愉悦的休闲氛围。
The bar area features raw copper sheeting as a backsplash, which references the copper roofing material of the church and will patinate beautifully over time. A long bar serves as the café centerpiece and ticket counter, and seating arrangements are fitted to the niches of the space to provide an intimate and convivial atmosphere.
▼黄铜吧台后挡板,the bar area features raw copper sheeting as a backsplash © Paolo Galgani

▼吧台细部,details of the bar© Paolo Galgani



▼家具木工细节,carpentry detail of furniture © Paolo Galgani


在与PSLab Antwerp的合作下,MEE事务所还为教堂设计了全新的照明方案,灯具的设计参考了传统的教堂铁艺配件,为访客们带来了温暖亲切的灯光氛围。射灯被巧妙地集成到天花板和墙壁中,这种设计不仅使建筑空间更加完整,同时也能更加精密地调整整个空间的氛围。如雕塑一般的全方位扬声器则进一步丰富了人们在室内空间中的感受。
In collaboration with PSLab Antwerp, MEE Studio also designed a lighting scheme that references traditional church iron fittings and provides warm, welcoming lighting. Spotlights were delicately integrated into the ceiling and walls to complement the architecture and add technical lighting with a higher level of control over the atmosphere. Sculptural omnidirectional speakers were also installed to enhance the ambiance.
▼精品店区,boutique area© Paolo Galgani

▼展台,display shelves© Paolo Galgani


▼展台细部,details of the shelves© Paolo Galgani


▼细部,details© Paolo Galgani


除了打磨设计中的各种空间参数外,MEE工作室还为项目设计了所有定制的实心橡木家具,这些家具让人不禁联想到经典的教堂长椅和橡木橱柜。在大部分的家具中,人们都能清晰地观察到制作过程中采用的细木工工艺,角落里镶嵌的熏橡木突出了家具的构造。座椅与长椅配有由Kvadrat Raf Simons制作的靠枕,鲜艳的酒红色参考了整个教堂历史的悠久。
In addition to honing the spatial parameters of the project, MEE Studio designed all of the furnishings bespoke for the project in solid oak wood, reminiscent of the classic church benches and oak cabinetry found throughout the building. Most of the furniture was constructed with visible joinery techniques in fumed oak, highlighting their tectonics. The chairs and benches are fitted with pillows upholstered in fabric by Kvadrat Raf Simons, which references the historic burgundy red colors used throughout the church.
▼光影,light and shadow© Paolo Galgani


▼灯具与音响等设备细部,details of the lighting and omnidirectional speakers© Paolo Galgani



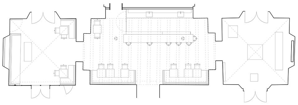
▼平面图,plan© MEE Studio

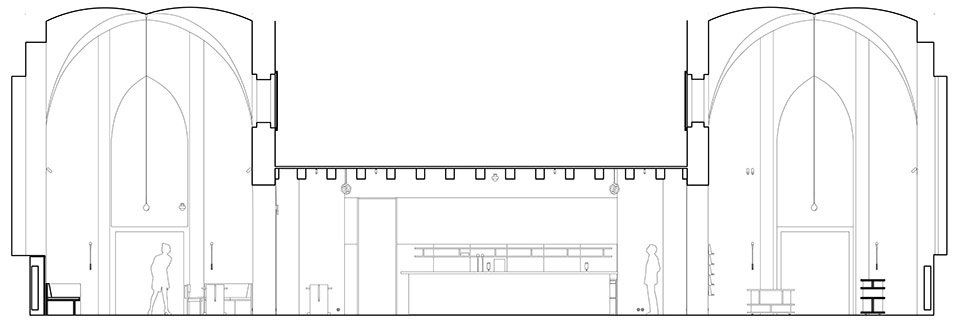
▼剖面图,section© MEE Studio

Architect: Morten Emil Engel / @morten.emil.engel / https://mee-studio.com/
Photographer: Paolo Galgani / @paologalgani / https://paologalgani.com/
Sponsors: PSLab, Kvadrat, REN Maling, Wexøe, https://Neonsign.dk/
More:MEE Studio。更多关于他们:MEE Studioon gooood