咖啡即是咖啡
COFFEE IS COFFEE
成立于北京的Grid Coffee是一个定位于精品咖啡的线下连锁品牌,单一产地咖啡品牌是一个相对新颖的定位,专业严谨纯粹理性的态度是Grid Coffee团队内部发展的共识。Grid 认为面向未来,或许回到原点,专注在品牌所理解的咖啡之中,用最优质的产品满足大部分人的每天所需,是一件值得坚守且具有长期价值的事。
Grid Coffee, founded in Beijing, is an offline chain brand that focuses on specialty coffee. As a single-origin coffee brand, it is a relatively innovative positioning. Within the Grid Coffee team, a professional, rigorous and purely rational attitude is a consensus for internal development. Grid believes that, looking towards the future, perhaps returning to the basics and focusing on the coffee that the brand understands, using the highest quality products to meet the daily needs of most people, is something worth adhering to and has long-term value.
▼店铺概览,Overall view© 汪敏杰

单一产地咖啡
SINGLE ORIGIN COFFEE
目前市面上还没有一家主打单一产地(SOE)的连锁咖啡品牌,但人们并不会对此陌生,而Grid Coffee正是看到这样的机会和市场,只出售单一产地的咖啡,而非更普遍的拼配做法,其产品也打磨的更加极致。
Currently, there is no single-origin (SOE) chain coffee brand on the market, but people are not unfamiliar with this concept. Grid Coffee saw this opportunity and market, and only sells single-origin coffee instead of the more common blending method. Their products are also crafted to be more refined.
▼门店宣传视频,Promotional video© YUAN STUDIO
Grid Coffee只提供最经典的咖啡品类:黑咖啡和牛奶咖啡。这与市面上主流的做法不同,为迎合消费者,很多咖啡品牌会把咖啡和茶、水果做融合进行创新。「咖啡不应该没有边际,它应该更具有专业精神。」
「一支富有性格的咖啡豆」是Grid Coffee所追求的风味审美。Grid 不仅严控咖啡生豆选品,每一款咖啡豆均符合 SCA 杯测标准 84 分以上,同时用专业定制的烘焙曲线激发豆子的风味潜能。
Grid Coffee only offers the most classic coffee categories: black coffee and milk coffee. This is different from the mainstream practice on the market. To cater to consumers, many coffee brands will innovate by blending coffee with tea, fruit, and other ingredients. “Coffee should not be boundaryless, it should be more professional,” said Grid.
“A coffee bean with a distinctive personality” is the flavor aesthetic pursued by Grid Coffee. Grid not only strictly controls the selection of green coffee beans, but also ensures that each coffee bean meets the SCA cupping standard of 84 points or above. They also use professionally customized roasting curves to stimulate the flavor potential of the beans.
▼概念分析动图,concept analysis animation © DAS Lab

300×300
300×300
2022年8月Grid Coffee在北京三里屯太古里开出「The Black Spot」的黑色快闪咖啡车,在第一个48小时就卖出1068杯黑咖啡,而Grid Coffee望京中国锦店作为Grid Coffee在日常里的形态,Gird回归品牌绿色(PANTONE 5753 C ),方格是整体设计元素的重要组成。
In August 2022, Grid Coffee opened “The Black Spot”, a black flash coffee truck in Beijing’s Sanlitun Taikoo Li. In the first 48 hours, they sold 1,068 cups of black coffee. As Grid Coffee’s daily form, the Grid Coffee China Jin store in Wangjing returns to the brand’s green color (PANTONE 5753 C), and the grid is an important element of the overall design.
▼黑色快闪咖啡车,”The Black Spot”© Grid Coffee



当我们第一次跟Grid Coffee接洽时,我们是以一种类似于恋人般的初次了解和不断摸索对方的喜好。我们惊叹于绝佳的场地条件——70㎡的场地里有着14米的建筑层高,相当于一个4层楼高的盒子。
▼门店模型分析图,store model analysis diagram © DAS Lab

When we first contacted Grid Coffee, it was like getting to know a lover and exploring each other’s preferences. We were amazed by the excellent venue conditions – a 70 square meter space with a building height of 14 meters, equivalent to a four-story box.
▼门店外观,Exterior © 汪敏杰

我们经过和Grid Coffee团队的不断摸索,从品牌的态度和理念出发,围绕着品牌的LOGO展开空间的叙事。以300×300作为空间的基准尺度进行延展,界定了空间、吧台和道具的尺度,是空间的秩序,也是Grid Coffee对咖啡的严谨态度。
在买咖啡这么放松的时刻,我们希望Grid Coffee是一个适合被很多人想起的地方,或是行色匆匆自提一杯咖啡,也可以小坐和驻足,走神或摸鱼。
Through continuous exploration with the Grid Coffee team, we started from the brand’s attitude and philosophy and developed a spatial narrative around the brand’s logo. Using 300×300 as the benchmark scale of the space, we defined the scale of the space, bar, and props. It is the order of space and also reflects Grid Coffee’s rigorous attitude towards coffee.
In this relaxed moment of buying coffee, we hope that Grid Coffee is a place that many people will remember, a place where you can quickly pick up a cup of coffee or sit and linger, get lost in thought, or daydream.
▼通高的空间,Full height space © 汪敏杰


无序&有序
Disorder & Order
进入空间,你会被秩序与细节所吸引。
In entering the space, you will be drawn to the order and details.
▼点单区,Order area © 汪敏杰

正如Gird的品牌关键词“纯粹”“专业”和“快速”,空间基于理性而精确的考量,Das Lab将空间的重点和中心全部放置在核心的操作吧台的区域,我们结合咖啡师的工作习惯和设备的硬性条件,对吧台进行推敲,以此来打造出一个极具专业且高效的专业吧台,并结合天花的格子灯箱,形成品牌视觉嵌入消费者的记忆点。
▼店铺体块分析图,mass analysis diagram © DAS Lab

As with Grid’s brand keywords “pure,” “professional,” and “fast,” the space is based on rational and precise considerations. Das Lab placed the focus and center of the space on the core operational bar area. We carefully considered the bar based on the working habits of the baristas and the equipment’s rigid conditions. This resulted in the creation of an extremely professional and efficient bar. We also incorporated a grid lightbox into the ceiling to create a brand visual that would embed in consumers’ memories.
▼操作吧台,Operational bar area © 汪敏杰

▼操作吧台细部,Details of the operational bar area © 汪敏杰

▼客座区,Guest area© 汪敏杰

▼客座区细部,Details of the guest area© 汪敏杰

在道具上Das Lab更专注于材料最真实,最纯粹的表达。产品陈列架以一定尺度和模数化的组成,每个陈列架的底部嵌有品牌Grid的“G”的吸铁石,既能作为品牌和道具的细节出现,也能让展架排列时更加有序,可自由拆卸的模块来服务于产品的多样式展示和刺激消费者的成交量。
▼产品陈列架分析图,product display rack analysis chart © DAS Lab

In terms of props, Das Lab focused on expressing materials in their most authentic and pure form. The product display shelves were composed of a certain scale and modular design. The bottom of each display shelf had a brand Grid “G” magnet embedded, which served as both a detail of the brand and props and allowed for a more orderly arrangement of the shelves. The freely detachable modules serve to display products in various styles and stimulate consumer transactions.
▼模数化的产品陈列,modular product display © 汪敏杰

▼产品陈列细节,Details of theproduct display © 汪敏杰

桌几和卡座,Das Lab通过结构拆分和有序重组,以“融合”的姿态增加整体的丰富度和细节感,意在表达一种超越一杯咖啡之外所附加的情感体验和视觉感官上的无限丰盈。
▼桌几分析图,tables and boothsanalysis diagram© DAS Lab

For tables and booths, Das Lab used structural disassembly and orderly recombination to increase the overall richness and detail of the space in a “fusion” manner. This is meant to express an emotional experience and visual richness beyond just a cup of coffee.
▼桌几与卡座细节,Details of tables and booths © 汪敏杰


▼品牌产品图,Products© 汪敏杰

我们不想用过多的言语去形容空间的华丽,我们更希望去表达的是Das Lab对于产品的理解,市场的洞察,品牌的诠释。
We don’t want to use too many words to describe the space’s luxury. We hope to express Das Lab’s understanding of the product, market insight, and brand interpretation.
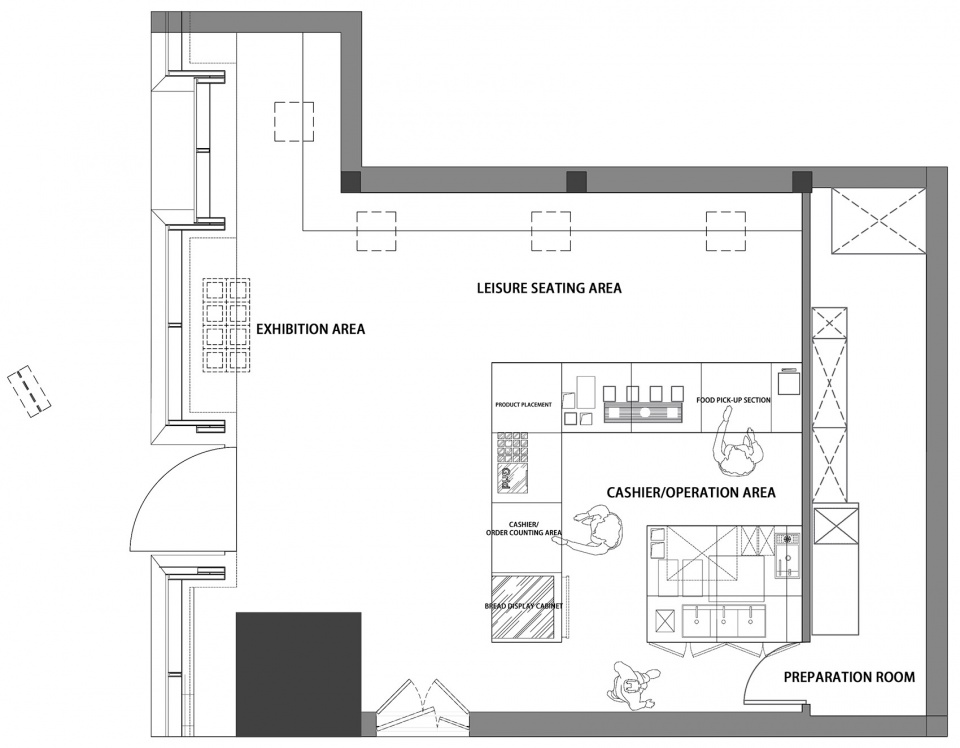
▼平面图,plan© DAS Lab

▼构造大样图,Construct diagram © DAS Lab

项目名称丨Grid Coffee
项目地址丨北京 朝阳
业主团队丨北京单一起源咖啡有限公司
室内设计丨DAS Lab
道具设计丨DAS Lab
软装设计丨DAS Lab
灯光设计:Delicht有束光照明设计
动效团队丨YUAN STUDIO
完工时间丨2022年10月
项目面积丨70 ㎡
项目摄影丨汪敏杰
Project Name: Grid Coffee
Project Location: Chaoyang District, Beijing
Owner Team: Beijing Single Origin Coffee Co., Ltd.
Interior Design: DAS Lab
Props Design: DAS Lab
Soft Decoration Design: DAS Lab
Lighting Design: Delicht Lighting Design
Motion Design Team: YUAN STUDIO
Completion Time: October 2022
Project Area: 70 sqm
Project Photography: Wang Minjie
More:DAS Lab。更多关于:DAS Lab on gooood