1972年,EB1 nº36 学校开始设计构思。它的建设始于1974年,1975年中断,1982年恢复,最终于1984年落成。建筑师Fernando Gomes da Silva署名了该设计,尽管其作者应是建筑师Raul Ceregeiro。
In 1972 Escola EB1 nº 36 was designed. Its construction began in 1974 and was interrupted in 1975 and resumed in 1982 and in 1984 it was inaugurated. The architect Fernando Gomes da Silva signed the architecture design although its author had been the architect Raul Ceregeiro.
▼项目概览,overview of the project © Nuno Almendra

▼从侧面看向主要入口,lateral view of main entrance © Nuno Almendra

▼主要入口,main entrance© Nuno Almendra

▼增建部分的立面,facade of the extension part© Nuno Almendra

这座学校遵循玛丽亚·蒙台梭利 (1870 – 1952) 开发的教学模式——蒙台梭利方法的特点是关注孩子的有限制的独立和自由,尊重身体、社会和心理技能的自然发展。它的建筑设计受到了英国和瑞典的类似经历的影响。EB1 nº36 学校建筑是理念的遗产,因为它将玛丽亚·蒙台梭利创建的教学模式转化为正式的建构语言,并且更主要的是其建筑组织理论与该教学模式的原则相一致。
The school follows the teaching model developed by Maria Montessori (1870 – 1952) – the Montessori Method is characterized by focusi ng on the child’s independence and liberty with limits and respect for the natural development of physical, social and psychological skills. Its architecture influenced by similar experiences performed in the United Kingdom and Sweden. Escola EB1 nº 36 is a building of patrimonial relevance because it is a constructive and formal expression of the teaching model created by Maria Montessori and mainly because the architectonic answer is coherent with the principles defined by the teaching model.
▼原始建筑立面, facade of the original building© Nuno Almendra

▼室外活动空间,outdoor space© Nuno Almendra

从进入教室入口伊始,建筑就是一系列的开放和交流的空间。教室直接与室外联系,加强了建筑的开放特征。尽管方案的一些初始条件改变了,但项目的建筑质量仍然可见一斑。
The building is a succession of open and communicating spaces from the moment of the entrance to the classrooms. The classrooms have a direct relationship with the exterior reinforcing the open character of the building. Although some initial conditions of the proposal were changed, the architectural quality accomplished by the architecture project is still evident.
▼室内大厅概览,overview of the interior hall© Nuno Almendra

▼大厅的阶梯座位,amphitheatre in the hall© Nuno Almendra

▼主要走廊,main corridor© Nuno Almendra

▼从走廊平台望向大厅,view from the corridor terrace to the hall© Nuno Almendra

▼图书室走廊,corridor bibliotheca© Nuno Almendra

在教室和走廊之间的交流区域,墙壁没有抵到天花板,因而学校具备优良的通风,也有着喧哗的声音。在学校的所有空间中的类似开口——尽管它在空间上非常丰富,有利于自然通风——从一开始就导致了声学问题以及课堂的正常运作。
In the communicating areas between the classrooms and the corridors, the walls do not reach the ceiling and therefore the school was permeable regarding ventilation and sound. The condition created by this opening in all spaces of the school – although it is quite spatially, rich and beneficial regarding natural ventilation – have since the beginning led to acoustic problems as well as the proper functioning of classes.
▼原始建筑的天花设计丰富空间,但也带来了声学问题,original ceiling design is spatially rich as well as leads to acoustic problem© Nuno Almendra

▼新加建的带屋顶室外活动区,new extended exterior covered recreation area © Nuno Almendra


▼带屋顶室外活动区入口细部,detail of entrance to the covered exterior recreation space© Nuno Almendra

▼加建的健身室,new gym© Nuno Almendra

从学校开始规划设计的1972年到现如今,教育和学校建筑的许多范式都发生了变化。为了解决学校的主要缺陷,我们提议建设了3个新的项目区域: 健身室,食堂/厨房,带屋顶的室外娱乐活动区。新的健身室和食堂的建设解决了现有的声学问题。这一策略使我们能够尽可能少地干预现有的学校建筑,从而不改变其最初的目的。
Since 1972, the year that Escola was planned until nowadays many paradigms have changed in education and in the school building. To solve the main situations of malfunctioning of the school we propose the construction of 3 new program areas: Gym, Cafeteria/Kitchen, Exterior Covered Recreation Area. The construction of a new Gym and Cafeteria solves the existing acoustic problems. This strategy enabled us to interfere as less as possible in the existing school so as not to change its initial assumptions.
▼入口区域,entrance area© Nuno Almendra

▼教室,classroom © Nuno Almendra

▼教室入口,entrance of the classroom© Nuno Almendra

▼增建过程示意,process of extension© JAA

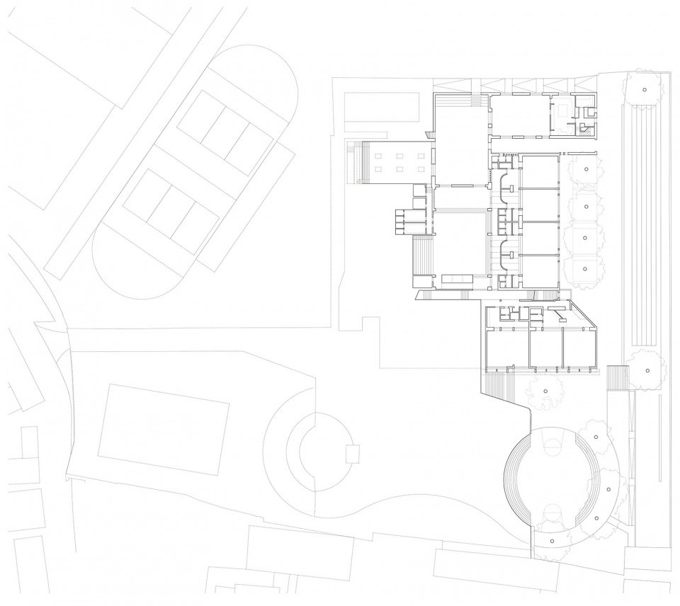
▼原始一层平面图,original first floor plan© JAA

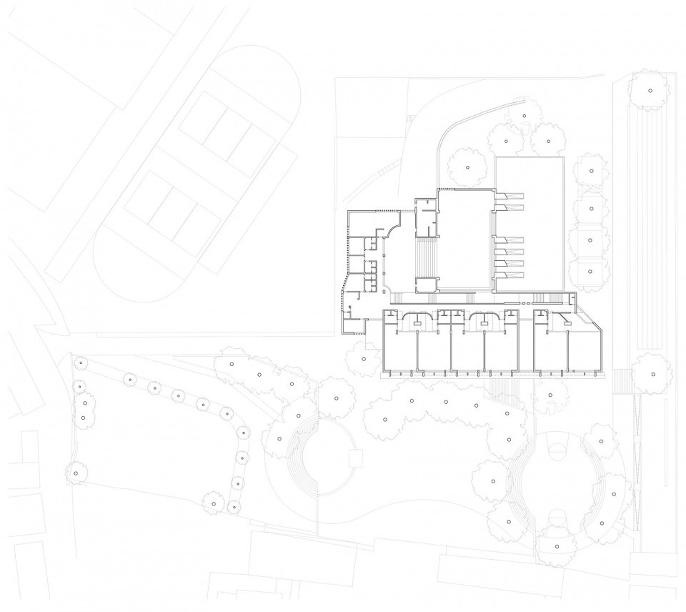
▼改造后一层平面图,first floor plan after renovation© JAA

▼改造后负一层平面图,-1F plan after renovation© JAA

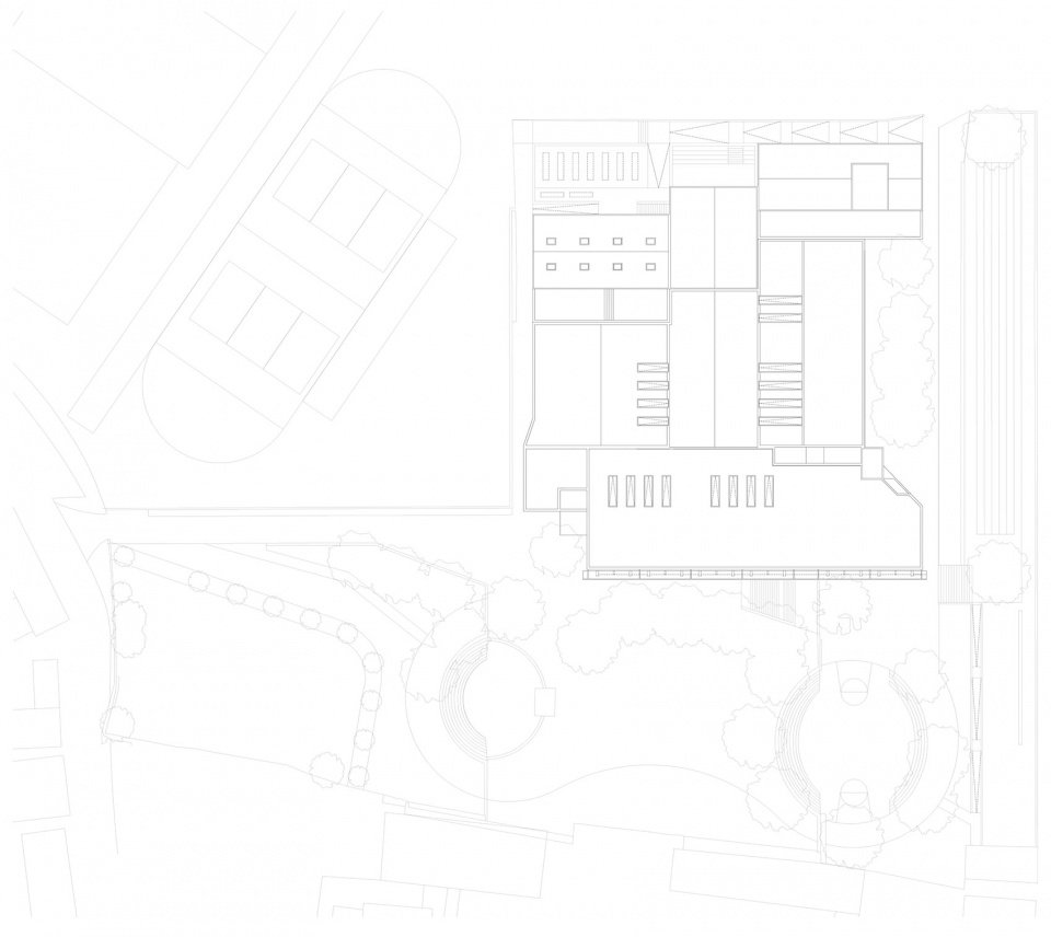
▼改造后屋顶平面图,roof floor plan after renovation© JAA

▼改造后剖面图,section after renovation© JAA

Project´s Name: Escola EB 36
Year: 2019
Área: 9.730 m2
Location: Calçadinha dos Olivais, Lisboa, Portugal
Program: School
Studio: JAA – José Adrião Arquitetos
E-mail: info@joseadriao.com
Adress: Rua Gilberto Rola, nº 41 Lisboa, Portugal
Website: https://joseadriao.com/
Instagram: https://www.instagram.com/joseadriaoarquitetos/
Facebook: https://www.facebook.com/joseadriaoarquitectos
Architecture:
General manager: José Adrião
Project leader: Carla Gonçalves
Team: André Matos, Ana Grácio, Ana Isabel Santos, Benedita Zamith, Carolina
Calmon Bosworth, Diego Fortun, Gonçalo Ponces, Francisco Silva, Ivo Batista,
João Albuquerque Matos, Margarida Farinha, Paulo Palma, Ricardo Aboim
inglez, Tiago Ferreira, Tiago Mota, Tomás Forjaz
Landscape arhitecture: Maria Teles com HAHA Arquitetura Paisagista
Structural engineer: Ara – Alves Rodrigues Associados
Services engineer: Pensamento Sustentável
Constrution: Norcep Construção
Photography
Photography credits: Nuno Almendra
Website: https://nunoalmendra.com/pt/
E-mail: na@nunoalmendra.com
Instagram: https://www.instagram.com/nunonalmendra/
Facebook: https://www.facebook.com/Nuno-Almendra-Fotografia-1157993690945592
More:José Adrião Arquitectos。更多关于他们:José Adrião Arquitectos on gooood