孩子与孩子、孩子与父母之间的交流与互动往往是相通的,良好的互动有助于为一个大家庭建立起坚实的情感生态系统,这也是本项目设计的灵感来源。
The way of communication, direct interaction between children, children and parents, the interaction is often connected, helping to build a solid emotional ecosystem for the extended family is the inspiration for us to design this project.
▼住宅远景,viewing the house from distance© Lonton Studio


项目坐落于越南东奈区Trang Bom镇,居住者包括屋主人夫妇与他们的三个孩子。这家人都是天主教徒,因此他们的家也坐落于当地的天主教堂附近。
The Gather House project is a house in Trang Bom town, Dong Nai district, Vietnam. Full residents include parents and 3 children. The family is Catholic and the house is close to a catholic church.
▼住宅入口立面,the entrance facade of the house© Lonton Studio

▼住宅入口立面细部,details of the entrance facade of the house from distance© Lonton Studio

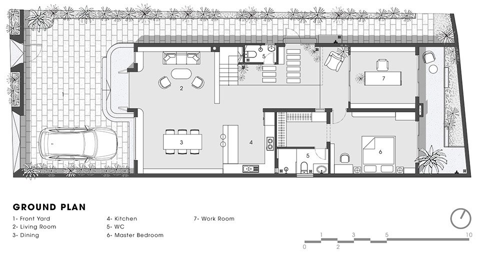
住宅底层的前部为停车场,停车场的屋顶由板层制成,具有良好的通风性能,且不会阻挡住宅内部空间的景观视野。其余底层空间内则包含了客厅、厨房、餐厅、父母卧室以及办公室。
▼剖面分析图,analysis section© Story Architecture

The ground floor in front is a car park with a roof made of lamellar to have ventilation and not to block the view of the interior spaces. Inside includes living room, kitchen, dining room, parents bedroom and office.
▼入口玄关,entrance of the house© Lonton Studio


▼工作室,office© Lonton Studio

▼起居大厅概览,overall of the living area© Lonton Studio


▼通高的中庭将光线引入室内,
the double height atrium introduce the natural light into the house© Lonton Studio

▼通高中庭下方的厨房与餐厅,kitchen and dining area in the atrium© Lonton Studio

▼厨房与餐厅,kitchen and dining area© Lonton Studio


▼一层楼梯入口,entrance of the staircase of the ground floor© Lonton Studio

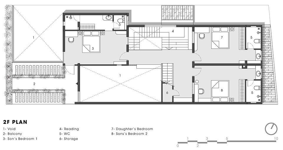
二层是孩子们的专属空间,共包含了3间卧室。卧室的入口均面向通高的大厅中庭与公共走廊,宽敞明亮的公共空间促进了子女之间的互动,增强了家人之间的联系。建筑师特意将楼梯平台空间设计得很大,可以作为阅读区,宽阔的走廊上还设有书吧,进而为孩子们创造出舒适的学习与休闲场所。无论是从起居大厅、走廊、还是从二层和三层的楼梯上,居住者都能够通过通高的中庭空间看到连接到厨房的客厅区域。这样孩子们就可以看着妈妈做饭,感受食物的味道。
Up to the 2nd floor is the space for the children, including 3 bedrooms, these bedrooms face the lobby and common corridor, an area where the children can interact and connect regularly. The stair landing space is designed to be large to combine as a reading area, the wide corridor also incorporates a bar to relax together.And from the lobby, corridor, stairs of the 2nd and 3rd floors, you can observe and connect the kitchen and living room areas thanks to the atrium. so that the children can watch the mother cook, and feel the taste of the food.
▼俯瞰二层楼梯平台与走廊,
overlooking the landing and the corridor© Lonton Studio

▼楼梯平台上设有书吧,reading area on the staircase landing© Lonton Studio


▼相互交错的交通流线,interlocking circulation lines© Lonton Studio

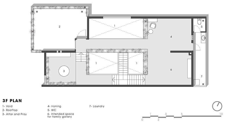
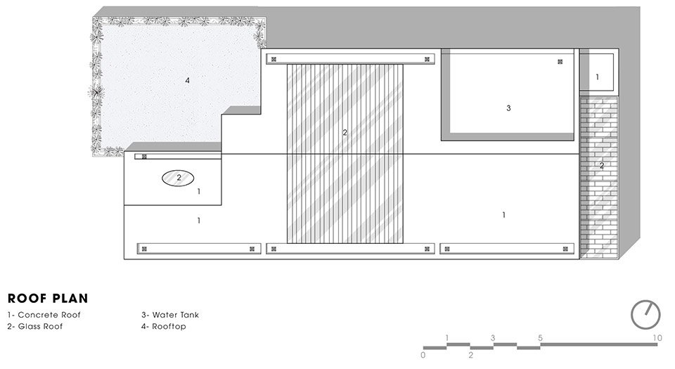
三层的前部空间为家庭祈祷静修区,大面积的玻璃窗将教堂的景观引入室内。此外,三层还通向一处种满绿植的屋顶休憩露台。三层的后部空间尚未得到明确的规划,将在未来根据家庭的需要转化为纪念画廊或晾晒空间。住宅中部的屋顶由混凝土板条与玻璃材质结合而成,有助于引入自然光,同时也与天主教徒家庭的精神相契合。“当上帝创造这个世界时,便创造了光。”因此,自然光线在本项目的设计中至关重要。不同位置的开口与门窗,与建筑中央的玻璃屋顶共同作用,在墙壁上投下交替的光影,使空间变得富有趣味性。
The front 3rd floor area is a family prayer retreat area with a window overlooking the church, and a terrace for trees and relaxation. Behind is the space planned to be developed as a gallery for family memorabilia, and a space for drying.The roof space in the middle of the house is made of concrete slats combined with a glass roof to help bring in natural light, and with the spirit of a Catholic family When God created this world, created light. Therefore, natural light is very important, the cutting of many doorways in different positions combined with the glass roof in the middle of the house creates many alternating light rays on the wall to make the space interesting.
▼三层空间概览,overall of the third floor© Lonton Studio

▼三层走廊,corridor of the third floor© Lonton Studio


▼建筑中央的玻璃屋顶创造出有趣的光影,the glass roof in the center of the building creates interesting light and shadow© Lonton Studio


金字塔形状的天窗与立面与附近的教堂相互呼应,创造出与周边环境完美相融的建筑外观,则住宅室内的设计则偏向于简单与直接。自然光线作为空间中的亮点,创造出时时变化的动态氛围,为居住者创造出有趣且充满活力的生活环境。
The roof windows and façade have a pyramidal design to match the shape of the nearby church, creating a harmonious whole on the exterior, while the interior is designed to be simple and straightforward. Using natural light as the highlight, the light will change every hour so we don’t get bored.
▼底层父母卧室,parent’s bedroom on the ground floor© Lonton Studio


▼一层平面图,1f plan© Story Architecture

▼二层平面图,2f plan© Story Architecture

▼三层平面图,3f plan© Story Architecture

▼屋顶平面图,roof plan© Story Architecture

▼立面图,elevation© Story Architecture

▼剖面图,section© Story Architecture

Project name: Gather House
Architect’s Firm: Story Architecture
Website: https://www.facebook.com/storyarchitecture.vn
Contact e-mail:Returnarchitecture@gmail.com
Project location: Trang Bom district, Dong Nai province, Viet Nam
Completion Year: 2022
Gross Built Area (square meters or square foot):
260m2
Lead Architects:
Other participants: local builder
Photo credits: Lonton Studio
More:Story Architecture。更多关于:Story Architectureon gooood.