徐家汇书院是魔法
Zikawei library: Basilica in library
▼视频,Video©CreatAR Images
2023年元旦,wutopia lab历经4年设计的徐家汇书院正式开放。它成为上海这两个月最轰动的文化旅游地标。也是第一次在工作室官宣之前就满城尽知的项目。因此,这篇姗姗来迟的工作室官宣作文在某种意义上变成了总结。
With the beginning of 2023, the Zikawei Library, designed by Wutopia Lab for four years, was officially opened. Coming to be the most sensational cultural landmark in Shanghai, it was also the first time that the project was known to the whole city before the official announcement from the studio. Now, this article is more like a summary instead of its unveiling.
▼项目概览,Overall view©CreatAR Images

我接手这个项目的时候,还不是徐家汇书院。戴卫·奇普菲尔德事务所完成的是一个书店的设计。后来书店退出,这个建筑在完成外立面和土建后便空置。在经历了第二家书店的退出后,这栋建筑才被确定作为徐汇区图书馆新址并命名为徐家汇书院。
Before it became the Zikawei Library, the building was designed as a bookstore by David Chipperfield Architects. Unfortunately, just after the facade and the structure of the building were completed, the building was left vacant. After two investments of the bookstore had bowed out, this building was eventually designated to be the public library in Zikawei District and named the Zikawei Library.
▼建筑外观和周围环境,Exterior view and the context©CreatAR Images

Wutopia lab的魔法
Wutopia Lab’s Magic
作为建筑师的Wutopia lab有自己的室内设计原则。从不在原有的空间上涂脂抹粉。我们总是用基于项目特点发展出一种新的空间叙事结构植入或者消弭原来的建筑结构,从而创造出一种被称为魔幻现实主义的新的体验。
Wutopia lab, as an architectural firm, wants to do interior design from a different perspective. Rather than putting makeup on the original structure, we develop a new spatial narrative based on the characteristics of the project to implant or dissolve the original architecture, thus creating a nouveau experience known as magical realism.
▼主立面,Main facade©CreatAR Images

不过大卫留下了三层通高并两侧有夹层的中庭。这个古典气质的中庭占据着中轴线的中心位置,无法回避。我需要避免被它诱导去建立一个古典的叙事结构,也不能无视它而完全建立一个新的叙事结构。
Robert Macfarlane在他的《Underland: A Deep Time Journey》一书中观察到“核反应堆铀废料的掩埋:人们把废弃铀芯块封在锆棒里,锆棒封在铜柱里,铜柱封在铁缸里,铁缸包裹在膨润土浆里,最后将它们存储在地下深处的岩层里,放入数千英尺深的片麻岩、花岗岩或岩盐之中。“这似乎是人类社会收藏重要物品的普遍程序。这就是层层嵌套的“中国套盒”式结构。“中国套盒”激发了我的灵感。
The original building has a three-story atrium with a mezzanine on both sides. This classical atrium occupies the center of the central axis. We want to avoid this classical-centered narrative, nor do we want to completely neglect it.
In his book Underland: A Deep Time Journey, Robert Macfarlane observes that the burial of uranium waste from nuclear reactors: people seal the spent uranium cores in zirconium rods in copper columns, which are embeded in iron cylinders, at the same time, iron cylinders encased in bentonite slurry, and finally store them deep underground in rock formations, thousands of feet deep in gneiss, granite, or rock salt. This seems to be a common procedure in human societies to preserve important objects. This is the structure of the “Chinese boxes within boxes” with its nested layers, which inspires me to implement the classical centered order as well as create a new narrative.
▼具有古典气质的三层通高中庭,The classical, three-story atrium©CreatAR Images

我决定在徐家汇书院建立一个来源于中国传统的子奁盒的“中国套盒”结构。套盒的最外层是大卫薄薄的外立面。第二层是图书馆主要的功能区比如咖啡,各种阅览区,演讲厅,展览厅等。第三层是回形走道,第四层是作为图书馆阅读大厅的中庭,而最里面则是作为套盒结构中最后保护的宝藏即图书馆的核心心装置。
这个叙事结构转化到空间上,可以把第2,3层看成一个A部分,第4,5层看成一个B部分。至于最外层的立面作为套盒外皮,里面的套盒则可以在设计上独立表达而不必受其建筑语汇的影响。而第五层的宝藏不构成空间意义,但如果没有,中庭这层盒子就是空心的,那么套盒的象征意义就不存在。
▼设计示意动图,Concept (gif.)©Wutopia Lab

We create a “Chinese nested box” structure in the Zikawei Library, which is derived from the traditional Chinese trousseau box in the Han Dynasty. The first layer of the box is the thin façade designed by DCA; the second layer consists of the main programs of the library such as coffee, various reading areas, lecture halls, exhibition halls, etc; the third layer is the donut-shaped aisle; the fourth layer is the atrium that serves as the library’s reading hall; and lastly, the heart of the library, the last protected treasure of the box structure.
This narrative structure translates into space, where the 2nd and 3rd layers can be seen as part A and the 4th and 5th layers as part B. As for the outermost façade as the outer skin of the set, the inner set can be expressed independently in design without being influenced by its architectural language. And the treasure on the fifth layer does not constitute a spatial meaning, but it does exist to complete the symbolic meaning of the box set.
▼中庭,Atrium©CreatAR Images

那么确立什么物件作为套盒所收藏的宝物呢。徐家汇书院一度要整合土山湾博物馆,所以把代表土山湾的牌楼放进来是合乎逻辑的。不过书院毕竟是图书馆,最后确认放入图书馆的标志——阅读桌。这是一张接近30米的,上海最长的阅读桌。它们两合在一起强化了中轴线也成为中国套盒里最重要的宝藏。
Then what could be the treasures collected in this set box? Since the Zikawei Library was once going to integrate the Tou-Se-We Museum, the pagoda from the Tou-Se-We was introduced here. As a library, it should also contain its own iconic representation, a reading table. We put in a reading table which is close to 30 meters, the longest in Shanghai. Together they both reinforce the central axis, also becoming the most important treasure in the Chinese nested boxes.
▼俯瞰中庭阅读区,Aerial view to the atrium©CreatAR Images

▼上海最长的阅读桌,The longest reading table in Shanghai©CreatAR Images

按照 Wutopia lab的对偶策略,当AB两个主结构被梳理出来后。AB就可以互为上下句。作为保护套盒的A,可以用混凝土,水磨石和涂料表达坚固。作为收纳套盒的B,则可以用到顶的温暖的木材表达爱惜。
According to Wutopia lab’s dualism strategy, once the two main structures of A and B are sorted out, part A and B can be used as opposing sentences of each other. A, as a packaging set of boxes, can express solidity with concrete, terrazzo and paint. B, as a storaging set box, can express lovingly with the warm wood tone.
▼嵌套关系,The nested layers ©CreatAR Images


在A区,也要用铺地和灰色变化精细地区分出第2和第3层。也需要在作为图书馆主要功能区里嵌套更小的套盒。一楼咖啡区是圆形的岛台,儿童阅读区是圆形的集中席地阅读区,二楼则嵌入了取材土山湾玻璃工艺的彩色玻璃盒子作为休息区。三楼则把大卫留下的天窗结合照明设计成23层套盒之间的休息沙发位。
In the A area, it is also necessary to finely distinguish the 2nd and 3rd layers with paving and gray variations and nest smaller boxes in the main functional area as a library. On the second floor, the cafe is a round island, the children’s reading area is a round centralized seating reading area, and on the second floor, a stained glass box taken from the glasswork of Tou-Se-We is embedded as a resting area. On the third floor, the skylight left by DCA combined with lighting is designed as a resting sofa between the 2nd and 3rd layers of boxes.
▼阅读区,Reading area©CreatAR Images


▼儿童阅读区,Kids reading space©CreatAR Images


▼天光下的休息沙发位,Resting sofa©CreatAR Images

而在B区,则把中庭两侧的夹层设计成尺度亲切的阅读和展示区。这样丰富了层层嵌套的结构。为了强化视觉,在AB区的交界,地坪和天花都做了除了,让AB两个区域不粘连,而形成独立的视觉表达。
In the B section, the mezzanine on both sides of the atrium is designed as an intimate scale reading and display area. This enriches the structure of the nested layers. In order to strengthen the visual, at the junction between the two areas, the flooring and ceiling are made besides, so that the two areas could each form an independent visual expression.
▼夹层阅读区,Mezzanine reading space©CreatAR Images


收纳宝藏的B区展现出了神圣性。就此建筑师借用书院邻居天主教教堂的典型空间类型巴西利卡来神圣化中庭。将中庭天花设计成拱形而完成图书馆作为当代人知识圣殿的象征意义诠释。并把拱形形式语言在一楼复制形成连续的拱形空间进一步把室内叙事结构和外立面构造逻辑剥离而更符合中国套盒的叙事。而因为土山湾博物馆最后并没有纳入书院,也就无法把牌楼引入中庭。最后大家决策决定用3D打印的方式打印一个现代设计改写过的牌楼作为轴线的高潮。这样,西方的巴西利卡和东方的牌楼,传统的木结构和现代的打印技术作为一组巧妙地完成了命题作文,中西合璧,古今交融。从而把徐家汇作为中国现代科学的源头的象征意义在层层嵌套的中国套盒的结构中得到升华。
这就是建筑师的魔法,Basilica in library.
The B area, where the treasures are collected, exhibits a sacredness. In this regard, the architects borrowed the basilica, a typical spatial type of Catholic churches in the neighborhood of the library, to sanctify the atrium. The atrium ceiling is designed as an arch to complete the symbolic interpretation of the library as a temple of knowledge for people nowadays. The arch-form language is replicated on the first floor to form a continuous spatial expression, further divorcing the interior narrative structure from the facade construction logic to better fit the narrative of the Chinese set box. And because the Tou-Se-We Museum did not end up incorporating the library, we didn’t introduce the pagoda into the atrium. In the end, the decision was made to print a modern design rewritten pagoda in 3D printing as the culmination of the axis. In this way, the Western basilica and the Eastern pagoda, the traditional wooden structure and the modern printing technology as a pair cleverly completed the proposition, combining East and West and blending the ancient and the modern. Thus the symbolic meaning of Zikawei as the source of modern Chinese science is sublimated in the structure of the nested Chinese set of boxes in layers.
▼中庭内的3D打印“牌楼”,A modern design rewritten pagoda in 3D printing©CreatAR Images

图书馆的魔法
Library’s Magic
作为建筑师的Wutopia lab认为任何室内设计都是建筑设计,去积极触动城市。徐家汇书院是个区级图书馆,不算严格意义的研习型图书馆。它更面对社区居民,有一定的社交性。所以徐家汇书院不应该是个封闭内向型的文化场所,它更应该是开放的,不仅需要吸引读者,更需要吸引原来不怎么阅读的人。
开放性就需要中庭需要能在立面上向城市展示出来。所以在面临主立面广场这一侧,室内并没有布置复杂的功能,而宏伟温暖的中庭能够透过玻璃和柱廊显现出来。散发着光辉的中庭仿佛大海中安抚旅人的岛屿。
Wutopia lab believes that any interior should be designed from an architectural perspective, to actively interact with the city. The Zikawei Library is the public library in the Zikawei district, rather than a research library. It should be designed to build a stronger connection within the community. Therefore, instead of a closed and inward-looking cultural place, the Zikawei Library should be more welcoming, not only to attract people who read, but also to those who don’t.
The atrium showing from the facade would be a good opportunity to welcome people. We designed the atrium to be a warm lighting open space, visible through the colonnade behind the translucent facade, to offer a soothing island for people who travel in the unsettling sea of the metropolitan.
▼主立面夜景,Main facade night view©CreatAR Images

开放性不能伤害阅读,所以建筑师利用了大卫留下的宽阔的阳台设计了台阶座位引流。书院面对的是一个精致的城市街心广场。建筑师把广场看成舞台,台阶座位就是剧场,读者可以在这里看风景。更重要的是,“你在桥上看风景,看风景的人在楼上看你“。两者的互动,让严肃的立面具有开放性。
The openness in a library should not jeopardize the reading experience, therefore, we took advantage of the wide balcony left by David Chipperfield and changed it into a step seating area to provide more public reading spaces. The bookstore faces an exquisite city street square. We looked at the square as a stage and the stepped seating area as a theater where readers sit as audience. As “You stand on the bridge viewing the sight; You’re beheld by the viewer from height” (Part of Article, Bian Zhilin,1935), the interaction between the two interrupts the rigid façade.
▼台阶座位,The step seating area©CreatAR Images

有关部门希望藏在柱廊后面的阳台能够挑出来。但这会破坏原来的立面。经过思考。建筑师紧紧在二楼的阳台两侧设计了一步小阳台。别小看这一小步,一步跨出去,仿佛凌空,而融合在这个城市风景之中。人生常常需要一小步,去改变什么。
The client asked for a cantilevered balcony from the colonnade , which would break the rhythm of the original façade. After a lot of testing and deliberate thinking, we designed a tiny step on the side of the balcony on the second floor for people to step out. This tiny step provides a vast view into the city, as if in the air, just like the tiny step we took to change our whole perspective to life.
▼临向广场的柱廊,The colonnade facing the square©CreatAR Images

一个开放的图书馆才能激活一个社区,才能让城市真正更新。徐家汇书院受欢迎的程度超过我想象,两个月18万人次包括许多从没来过图书馆的读者涌入图书馆,这是有史以来,第一次是一个公益场所成为城中第一最热的地标而带动了已经很久没有进入城中视野的徐家汇商圈,让其再次受到关注。这就是图书馆的魔法。这就是上海的魔法。
A welcoming library re-activates the community and renews the city. The Zikawei Library was more popular than we expected, with 180,000 people flocking to the library in two months, including many who had never been to the library before. For the first time ever, a place of public interest became the first and hottest landmark in town and drove the Zikawei business district, which had not been in the city’s view for a long time, into the spotlight again. That’s the magic of a library. This is the magic of Shanghai.
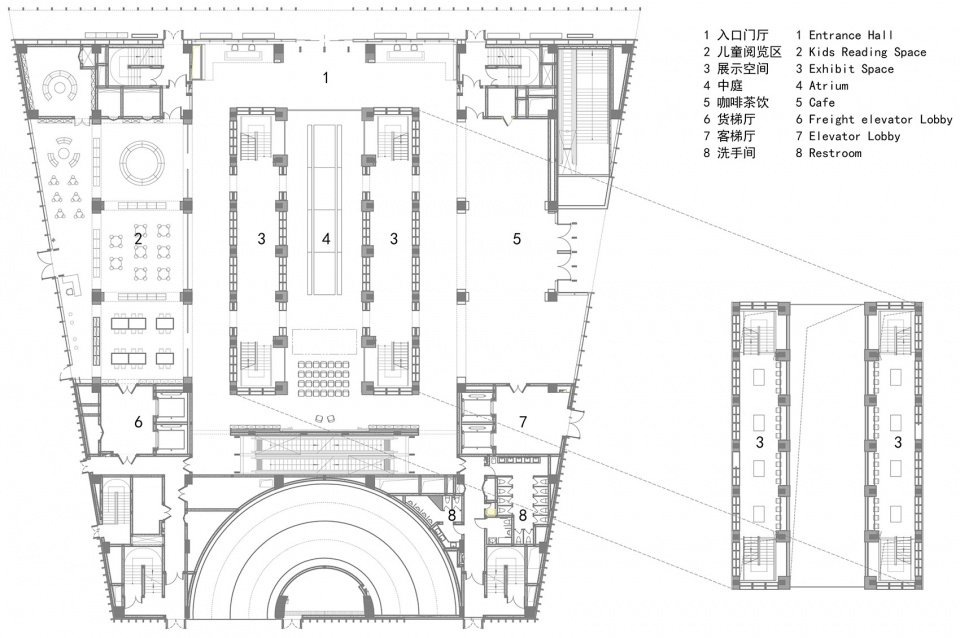
▼一层平面图,Plan 1F© Wutopia Lab

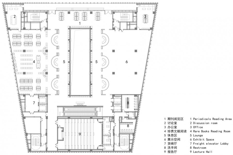
▼二层平面图,Plan 2F© Wutopia Lab

▼三层平面图,Plan 3F© Wutopia Lab

项目名称:徐家汇书院
室内设计公司:Wutopia Lab
主持建筑师:俞挺
项目经理:濮圣睿
前期项目建筑师:李明帅
后期项目建筑师:濮圣睿
图书馆阶段设计团队:亢庆贺、蒋雪琴、安安、陈骏、陈少芬、王晶
设计咨询:上瑞元筑设计顾问有限公司
书店阶段设计团队:金瑞、潘晖、王丽洋、潘大力、余婧
照明顾问:张宸露、蔡明洁、尉诗羽
空间标识设计:MEEM DESIGN(秀子,陈思雨)
展陈设计:上海美术设计有限公司
装置设计与建造:上海一造科技有限公司
装置照明顾问:张宸露、杜雨轩、李文海
施工图设计:上海现代建筑装饰环境设计研究院有限公司
摄影:CreatAR Images
视频:CreatAR Images
出镜:iz
建设单位:徐汇区文化和旅游局、徐汇区图书馆
施工单位:上海现代建筑装饰环境设计研究院有限公司
项目地址:中国,上海市,徐汇区
建筑面积:18650㎡
设计时间:2017.5-2021.12
竣工时间:2022.12
Project Name:Zikawei Library
Design Firm:Wutopia Lab
Principal Architect:YU Ting
Project Manager:PU Shengrui
Pre-Project Architect:LI Mingshuai
Post-Project Architect:PU Shengrui
Library Phase Design Team:KANG Qinghe、JIANG Xueqin、AN An、CHEN Jun、CHEN Shaofen、WANG Jing
Design Consultation:S5 Design Co., Ltd
Bookstore Phase Design Team:JIN Rui、PAN Hui、WANG Liyang、PAN Dali、YU Jing
Lighting Design Consultant:ZHANG Chenlu、CAI Mingjie、WEI Shiyu
Graphic Design Consultant:MEEM DESIGN(XIU Zi,CHEN Siyu)
Exhibit Design Consultant:Shanghai Art-Designing Co., LTD.
Installation Construction and Design:Fab-Union Technology
Lighting Design Consultant for Installation:ZHANG Chenlu、DU Yuxuan、LI Wenhai
Construction Drawing:Arcplus Architectural Decoration & Landscape Design Research Institute Co., Ltd.
Photo Credits / Video Credits:CreatAR Images
Model:Iz
Client:Xuhui District Administration of Culture and Tourism、Xuhui District Library
Constructor:Arcplus Architectural Decoration & Landscape Design Research Institute Co., Ltd.
Project Location:Xuhui District,Shanghai,China
Building area: 18650㎡
Design year & Completion Year:2017.5-2021.12
Construction Completion Year:2022.12
More:Wutopia Lab。更多关于他们:Wutopia Labon gooood