位于上海的gagaCoast餐厅运用海岸元素,打造出极具地中海风情的餐饮空间。经由联图改造设计,一幢三层楼建筑化身为精致田园风餐厅,为客人们呈上别具一格的用餐体验。三个楼层各具特色,富有变化的色调与材料质感描绘出故事中的不同层次。首层的草绿色连接着花园与露天咖啡馆,二层的绯红色呼应着身为餐厅焦点的烧烤架,三层的黑色烧杉木则与白色水洗冰川纹石墙以及房屋原有的传统木结构屋顶形成鲜明对比。
The gaga coast restaurant in Shanghai recalls a deep connection with coastal elements and Mediterranean soul. Linehouse transformed a three storey building into a vertical journey of refined rusticity across three floors of the restaurant giving visitors unique and distinct spaces to dine. Colours and materials throughout the three floors change telling a different part of the story; green earthy tones on the ground floor link the garden to the open café space, the red fire tones of second floor reflect the dining room centered on the parilla grill, the black yakisugi wood of the third floor contrasts against the white washed flanked stone walls and existing traditional timber trussed ceiling.
▼项目概览,overall of the project©Wen Studio

首先是一层:白天,这里是一家咖啡馆,到了晚上则化身为酒吧。绿色釉面火山岩墙面覆上了手工打造的铜绿色光泽。打开木窗,映入眼帘的是种有橄榄树的花园。最引人瞩目的吧台则由天然木材打造而成。
Beginning on the ground floor; a daytime café transitioning into an evening bar. The walls are clad with lava stone with a green glaze creating a handmade patina. The timber framed windows open up to the garden outside lined with olive trees. Natural timbers are used for the centerpiece bar counter.
▼一层空间概览,overall of the ground floor©Wen Studio

▼绿色釉面火山岩墙面与木窗,
the green glazed volcanic rock walls and wooden windows©Wen Studio

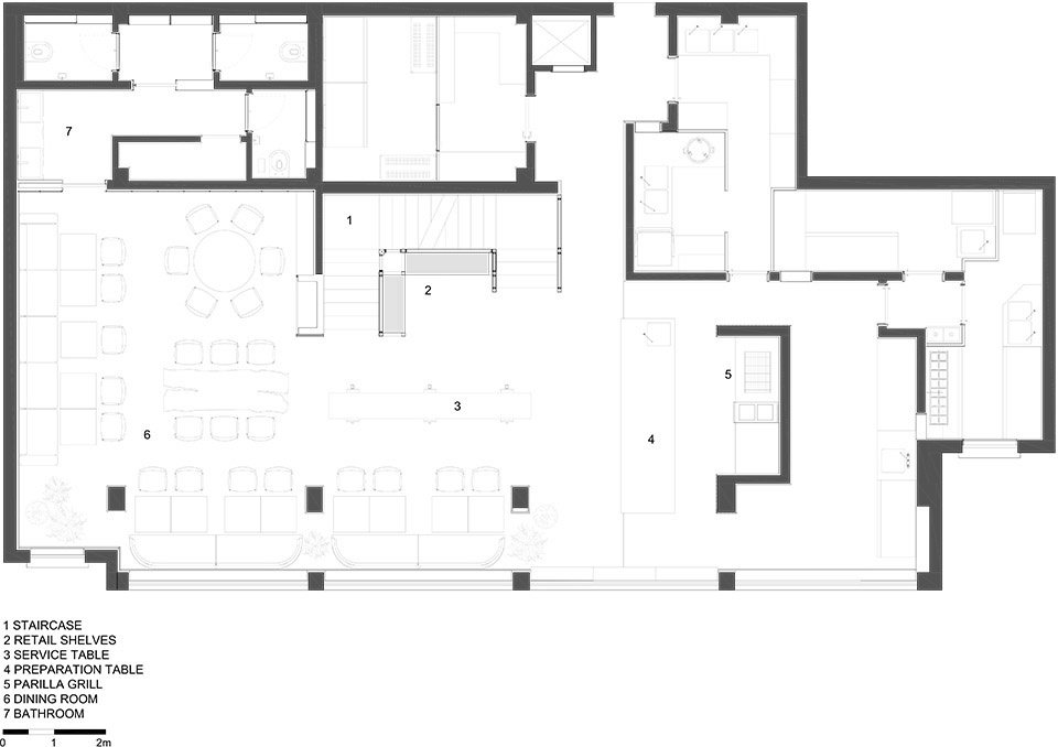
二层是温馨而私密的餐厅,装饰着白色水洗冰川纹石墙与木壁板。烧烤架与长餐桌是二层空间的亮点。开放式厨房则贴上了由研磨咖啡制成的瓷砖。错落有致的木质天花板配合着不同私密度的用餐区域,窗边则是舒适的沙发座。二层还摆放了一张尺寸较大的圆桌,Santa & Cole出品的纸质甜甜圈造型灯笼悬挂在圆桌上方。
Second floor is an intimate dining room lined with white washed flank stone and timber paneling. The parilla grill and chefs table is the focal piece in the room; the open kitchen is lined with tiles made of ground coffee. Layered timber panels line the ceiling creating different intimate dining nooks with sofa banquettes running along the windows. A larger round table features a Santa & Cole paper donut lantern hanging.
▼二层开放式厨房,
the open kitchen on the second floor©Wen Studio


▼就餐区,seating areas©Wen Studio

▼窗边舒适的沙发座,sofa banquettes running along the windows ©Wen Studio

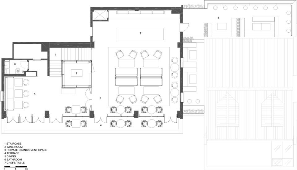
三层是一个雅致的木结构空间,上方的斜屋顶铺有传统的中式灰瓦。白色水洗冰川纹石墙面在三层再度登场,配上对比鲜明的黑色烧杉木,成为了衬托长餐桌的背景图。宽敞的第三层空间可用于举办私人晚宴或活动。同样位于三层的大阳台则能俯瞰新天地的热闹景象。
The third floor is a lofty timber trussed space with a pitched roof lined in traditional Chinese grey roof tiles. The walls again features white washed flank stone but contrasted with black burnt yakisugi wood as a backdrop for the chefs table. The large dining room can be used for private dinners or events and a large balcony overlooks the bustling neighbourhood below.
▼三层空间概览,overall ofthe third floor©Wen Studio

▼雅致的木结构空间,lofty timber trussed space on the third floor ©Wen Studio

▼三层空间可用于举办私人晚宴或活动,
the large dining room can be used for private dinners or events©Wen Studio

▼白色水洗冰川纹石墙面,
the walls again features white washed flank stone©Wen Studio

一座楼梯将三层空间串联为一个整体。楼梯间的墙面饰有抽象造型海洋生物石膏画。编织绳将楼梯结构层层包裹。三楼的楼梯顶部则有一间木板围成的藏酒室,吸引客人们品尝精选美酒。
▼楼梯轴测图,axonometric drawing of the staircase© 联图建筑设计

A staircase weaves through the three floors. The walls are lined with a cast graphic of abstracted exoskeletonsof sea animals. Panels of woven rope line the staircase structure. Reaching the top of the staircase on level three the timber paneling encloses a wine room which invites guests to peruse the wine selection.
▼楼梯间细部,details of the staircase©Wen Studio


联图设计的定制家具在餐厅里随处可见,另使用了Santa&Cole出品的纸灯笼以及StudioKAE出品的咖啡灯。联图也为餐厅设计了全新的视觉识别体系。通过排版、间隔与涂鸦等方式,新的视觉元素给人以变化与律动之感。加入一丝随性、令人玩味的元素,宛如穿越海岸的旅人日记。品牌标志则是一幅手绘的铅笔画,代表了gaga品牌的“g”。
Custom furniture pieces designed by Linehouse are used throughout the restaurant with feature paper lanterns by Santa & Cole, and coffee lights by Studio KAE. Linehouse also designed the new visual identity for the restaurant. The graphics elicit a sense of change and movement, through layout, spacing and scribbles. Like the journals of a wanderer through the coast – adding an element of relaxed musings. The icon is a handrawn pencilmark reflecting the g of the gaga brand.
▼Santa&Cole出品的纸灯笼以及StudioKAE出品的咖啡灯,paper lanterns by Santa & Cole, and coffee lights by Studio KAE ©Wen Studio


▼夜景,night views©Wen Studio


▼材质细部与logo,material and logo© Wen Studio / 联图建筑设计


▼一层平面图,1f plan© 联图建筑设计

▼二层平面图,2f plan© 联图建筑设计

▼三层平面图,3f plan© 联图建筑设计

建成时间:2022年
面积:620平米
建筑设计:联图
设计负责人: AlexMok
设计团队:Francis del Felice, Mia Zhou, Fei Wang, Cherngyu Chen
项目地址:新天地,上海
建筑师网站:linehousedesign.com
如需获得更多信息,请联系: info@linehousedesign.com
照片版权属于©Wen Studio
Year of Completion: 2022
Area:620 sqm
Client: gaga
Architect: Linehouse
Design Lead: Alex Mok
Design Team: Francis del Felice, Mia Zhou, Fei Wang, Cherngyu Chen
Project Address:Xintiandi, Shanghai
Architect Website:linehousedesign.com
For more information, contact: info@linehousedesign.com
photo credit ©Wen Studio
More:联图建筑设计。更多关于他们:Linehouse on gooood