oslo-based architecture firm spacegroup has introduced a sustainable cabin development situated in hagefjorden, norway. the project comprises 16 wooden structures that have been constructed with minimal intervention on the natural terrain. with the pandemic outbreak limiting travelling activity for everyone, the‘movikheien cabin’complex makes for an attractive, approachable local destination for all norwegians.

all images courtesy of spacegroup
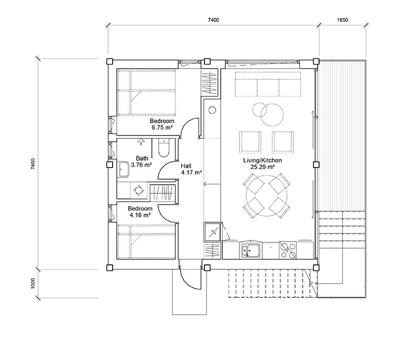
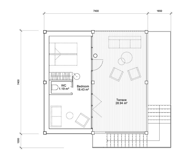
the innovative zoning plan for the‘movikheien’project breaks the disturbing pattern of oversized cabins with large carbon footprints, recklessly cutting large swaths of forest, and grossly manipulating the terrain. spacegroup‘s proposal is premised on a traditionally but forgotten‘light-touch’: small units (64 m2), 100% wood construction, carefully placed in the landscape; environmentally friendly, and socially inclusive.

typically in norway plots for cabin neighborhoods are completely partitioned into sellable properties based on different value propositions. here, the cabins stand on columns above the terrain, each one owning only their projected footprints, while collectively sharing the landscape that connects them, providing a basis for cultivating social capital while protecting the natural assets of the region.

a major principle that was followed during the planning phase was that no car access would be provided on the site. as roads require major terrain intervention, such an operation on a particularly hilly, dense site, would turn out to be highly destructive to the plot’s natural qualities. the design provides access to the site via a hiking trail, designed on-location by walking (and mapping) the site with the client, an arborist, a rock climber, and the architects. all building components are of a dimension that can be easily transported and handled without heavy machinery.





project info:
name: movikheien cabins
architects: spacegroup
location: hagefjorden, norway
designboom has received this project from our‘DIY submissions‘feature, where we welcome our readers to submit their own work for publication. see more project submissions from our readers here.
edited by: myrto katsikopoulou | designboom