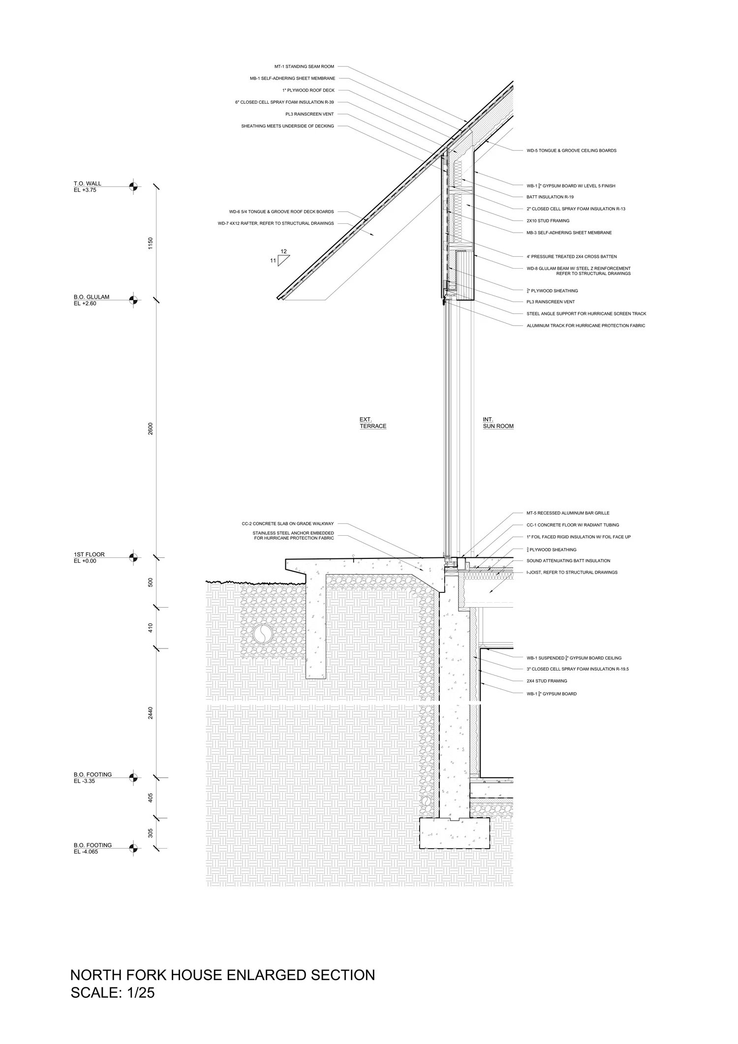
on a 20-acre site described as‘a collage of disparate landscapes’, SO – IL has completed a new york retreat that comprises four gable volumes. located on long island, the home’s four wings each serve a different function and have different relationships with the land.‘sited into a slope, we organized a simple cruciform of gable volumes to frame a collection of varied views instead of a singular panorama,’ explain the architects.‘the house seeks to sample the lively terrain, bringing together different qualities of light, landscape, and vista to define interior spaces.’

image © iwan baan (also main image)
SO – IL, who collaborated on the‘north fork house’with shenton architects, positioned the glazed living areas above a soft clearing that slopes down towards the water. meanwhile, the more private bedroom volumes are tucked into the woods. the four wings are united at the center of the home with a communal dining area and a library. externally, a deep roof overhang results in a continuous porch that wraps around the perimeter of the property. the curved zinc-clad roof defines a large outdoor living area for dining and entertaining.

image © iwan baan
meanwhile, the upper level includes a private roof terrace positioned between the four gable volumes. landscape designer patrick cullina worked with existing topography, which includes woods, hills, clearings, and coastal brush, while carefully introducing new elements that highlight the natural beauty of the terrain. see more images of the project, taken by photographer iwan baan, below.

image © iwan baan

image © iwan baan

image © iwan baan

image © iwan baan

image © iwan baan

image © iwan baan

image © iwan baan

image © iwan baan

image © iwan baan
project info:
name: north fork house
location: long island, NY
client: private
program: house
design: 2013
completion: 2019
project area: 600 sqm / 6,450 sqf
SO – IL design team: florian idenburg, jing liu, ted baab, seunghyun kang, emma silverblatt,
collaborator: shenton architects LLP
main contractor: taconic builders
consultants —
structural: silman
MEP: 2LS engineering
civil: D.B. bennett
landscape: patrick cullina
interior design: charlap hyman & herrero
photography: iwan baan











