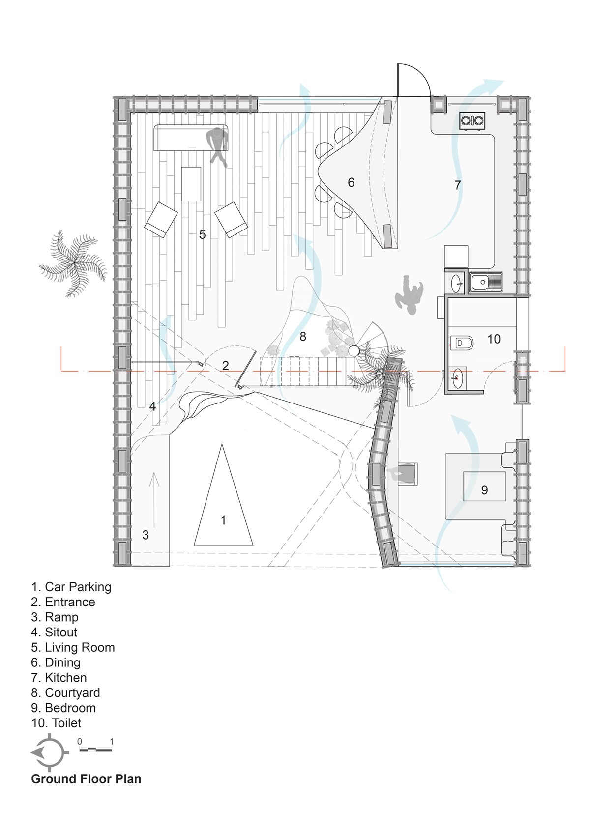
indian architecture studio wallmakers realizes its sculptural pirouette house in the center of india’s urban and crowded city of trivandrum. the dwelling, constructed of undulating brickwork, is sited along a small plot that had been suffocated by other residential projects from all four sides. with the pirouette house, the design team seeks an inward facing dwelling with all interior spaces facing inward, whose views are funneled toward a central courtyard. the house is oriented along an east-west axis with continuous openings at each end to facilitate maximum cross-ventilation.

all images by jino sam
wallmakers introduces its breezy and luminous‘pirouette house’with influence from british-born indian architect laurie baker. the 20th century designer famously made use of similar passive cooling strategies and a perforated brick material palette. the new construction is designed as a modification of his language, iconic among the trivandrum area. the team employs a masonry strategy that the late architect had introduced known as the‘rat trap bond’technique in which bricks are laid with a rotated vertical orientation, creating a cavity within the wall that increases thermal efficiency and cuts down on the total volume of bricks used.

the design team at wallmakers further develops this masonry technique to sculpt the pirouette house’s defining slanting walls. these dynamic elements dance from left to right, converging only to support the ferrocement shell roof. each staggered wall has been individually crafted to most efficiently divide the interiors of the house, resulting in larger volumes and an element of privacy. scaffolding pipes left behind from the construction stage were repurposed to form the central staircase and the grillwork. discarding nothing as‘waste,’the wooden scaffolding planks were also pieced together to form part of the flooring in the living areas.












project info:
project title: pirouette house
architecture: wallmakers
location: maruthamkuzhi, trivandrum, kerala
lead architect: vinu daniel
client: mr. kiran
engineering: adcons infrastructure
landscape: vinu daniel and team
fabrication team: kunjumon james and team, j.k steels
carpenters: sarath prasad and team, shivadas
masons: ezhil and team, deepu and team
completion: 2020
photography: jino sam | @jino_sam_




