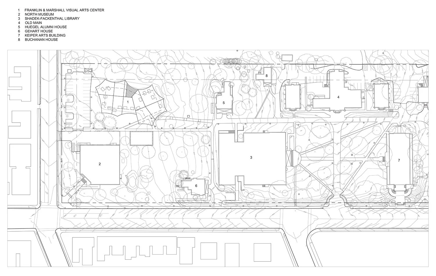
steven holl architects has completed a new building on the historic campus of franklin & marshall, a liberal arts college in lancaster, pennsylvania. appearing as raised pavilion, the distinctive shape of the‘winter visual arts building’is derived from the campus’oldest elements — its trees. designed to be the center of creative life on campus, the building brings students together to collaborate on a variety of arts projects.

image courtesy of paul warchol (also main image)
steven holl architects designed the lightweight building in contrast to the brick architecture of the franklin & marshall college campus. activating the southern end of the site, a gradual exterior ramp leads to an entrance on the new building’s second-floor, which is elevated within the trees. meanwhile, the porous ground level, which remains open to the rest of the campus, has its own entrance that faces the newly formed‘arts quad’.

image courtesy of paul warchol
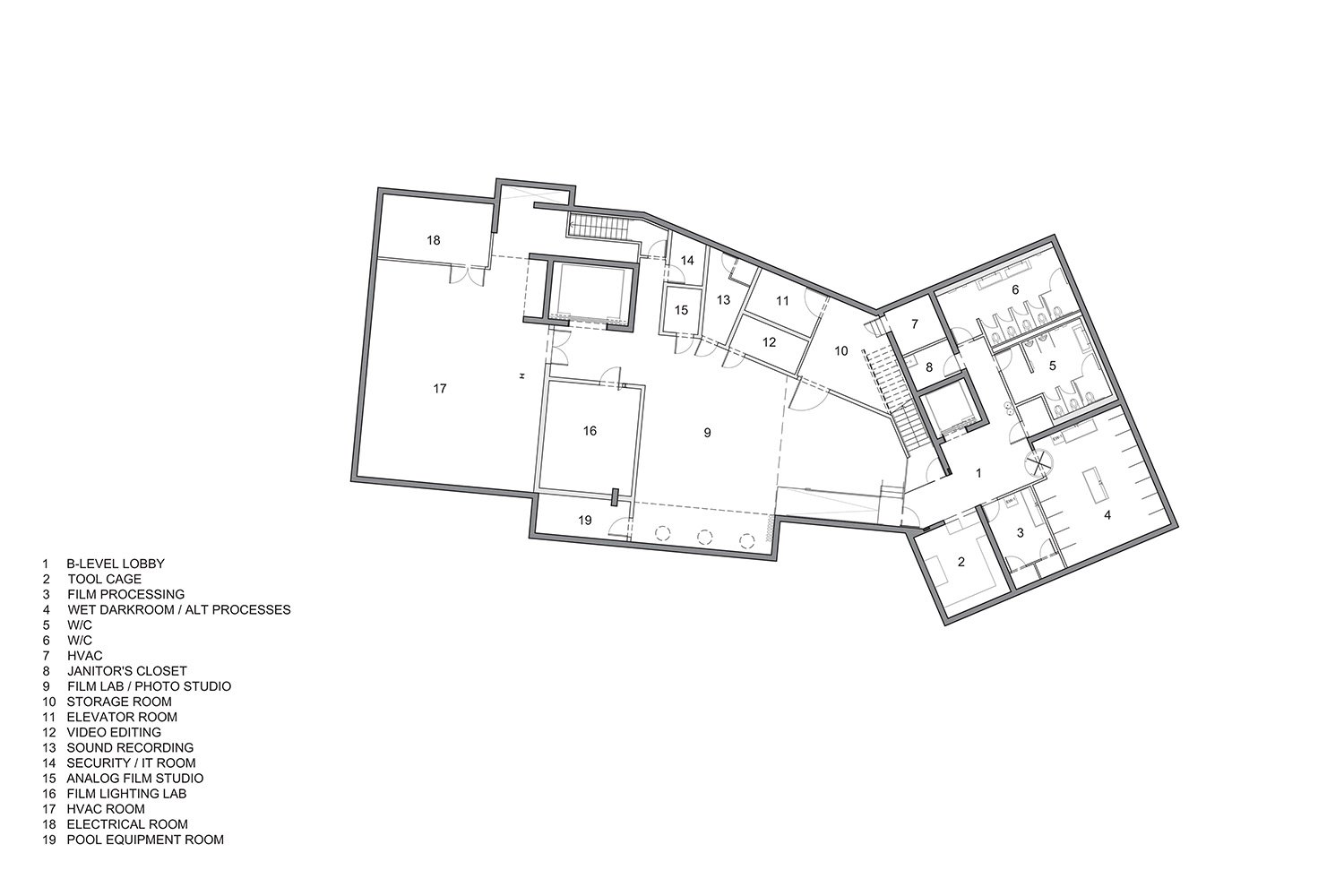
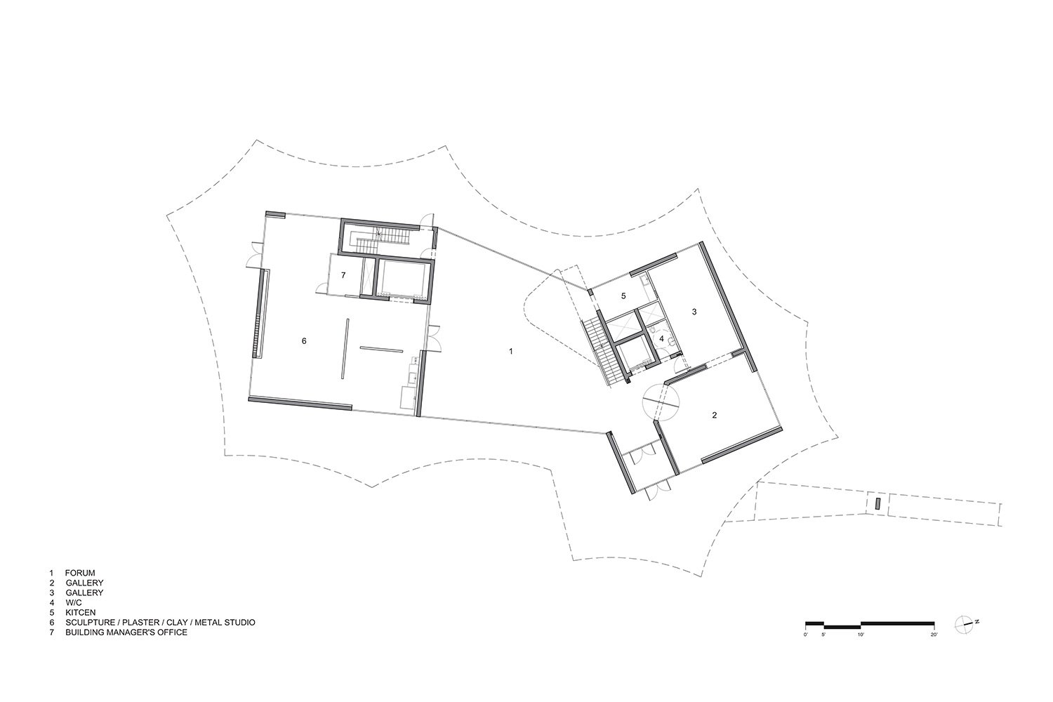
on the ground floor, a forum and suite of galleries draw in the surrounding community of lancaster to engage with the college around arts events and exhibitions. sculpture studios, involving heavy objects, are adjacent to ground floor loading and an open-air sculpture yard. meanwhile, digital labs, which require minimal light, are located below grade. these spaces receive a daylight glow from round skylights positioned overhead.

image courtesy of paul warchol
the second floor studios — for drawing, design, printmaking, painting, woodworking, and cinema — are efficiently organized around a‘commons’gathering space for students that doubles as an informal presentation area. all studios receive natural light through the translucent façade and have an operable viewing window and skylights. faculty studios and art history seminar rooms are set on a mezzanine overlooking the teaching studios.

image courtesy of paul warchol
the decision to maintain and preserve the site’s trees informed the building’s curved geometry. the design team also points out that maintaining the indigenous plant life results in minimum maintenance and minimum disturbance to the existing ecology. meanwhile, a large pool reflects the hovering building — an effect that is particularly profound by night.

image courtesy of paul warchol
the building’s lightweight, two-story‘box-kite’steel frame sits on two ground floor concrete rectangles to create dramatic cantilevers and an arced geometry. thin truss frames sit within the second floor studio walls and support bent steel tubes spanning between them. the architects used 3D modelling to develop and coordinate the construction documents with the team, allowing contractors to build the complex geometry efficiently and precisely.

image courtesy of paul warchol
the entire roof structure is exposed, and the steel tubes are rolled at one radius and then tilted in place to create the roof’s curved geometry. the three-inch-deep, tongue and groove fir planks that rest on the bent tubes are fastened to the top of the bent steel and, given the tolerance of wood, create a soft, billowing ceiling.

image courtesy of paul warchol
the building’s curved translucent glass walls are formed by a double-layer, U-plank structural glass system filled with translucent insulation for high thermal performance and 19% light transmission — ideal for studio light. natural illumination and ventilation along with active slab heating and cooling contribute to the project’s LEED gold status.
as the franklin & marshall campus has opened for the academic year, the building is currently in use by students. the project allows for COVID-19 necessities such as social distancing with generous social and circulation spaces. the two main entries on different levels enable one-way flow when needed, while abundant daylight and natural ventilation are found throughout. terraces also provide important outdoor space within the design. see designboom’s previous coverage of the project here.
steven holl explains how he developed the project’s design
video courtesy of steven holl architects | cover image © iwan baan

image courtesy of steven holl

image courtesy of steven holl

image courtesy of steven holl

image courtesy of steven holl
project info:
name: winter visual arts building, franklin & marshall
location: lancaster, PA
construction: 2018- 2020
area: 33,000 gross square feet
client: franklin & marshall college
architect: steven holl architects: steven holl (design architect, principal); chris mcvoy (partner in charge); garrick ambrose (project architect, senior associate); carolina cohen freue (assistant project architect); dominik sigg, marcus carter, elise riley, michael haddy, hannah lasota (project team)
project manager: casali group, inc, thomas murray; and franklin and marshall college, sheldon wenger
structural engineers: silman associates
MEP engineers: ICOR associates
civil engineers: david miller associates
climate engineers: transsolar
landscape architects: hollander design
façade consultants: knippers helbig advanced engineering
lighting consultants: l’observatoire international
acoustical consultants: harvey marshall berling associates
pool consultants: aqua design international


















