austin maynard architects designs a vibrant and playful residential intervention in melbourne, australia. with atypical, yet subtle angles and voids, the design team meets its match in working together with its enthusiastic client — a diverse and dynamic family of five. the owners comment:‘there are spaces to be shared and spaces for seclusion; there are levels that are split, transparent and modular; there are features that are dramatic and playful… it continues to delight our family and friends, almost as though it has its own sense of humor.’

images by derek swalwell
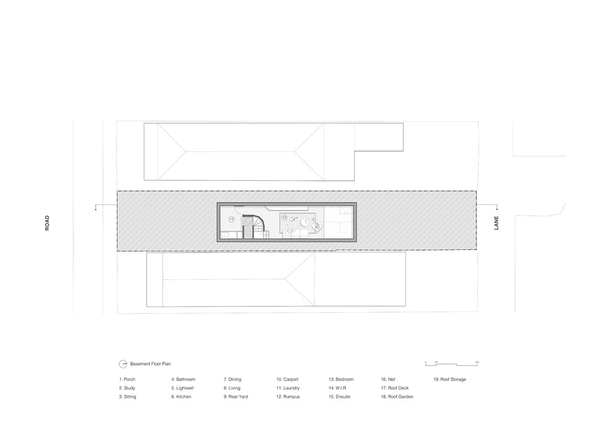
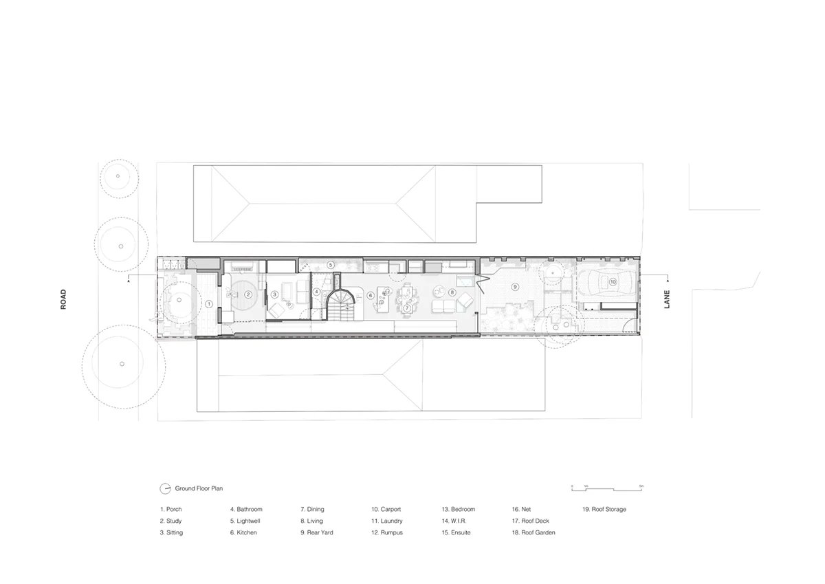
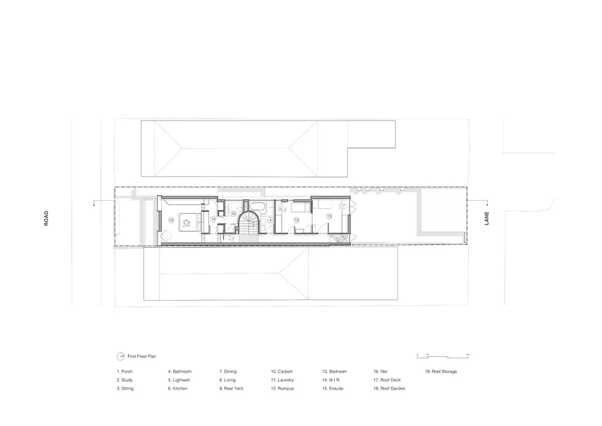
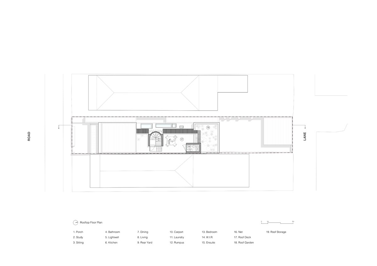
with its union house, austin maynard architects preserves the historic brick dutch gable of the pre-existing structure, incorporating the cottage facade into the otherwise entirely new dwelling. in this way, the project directly layers one moment of time atop another. organized within a narrow plot measuring nearly 18 feet wide, the union house fits four bedrooms, three bathrooms, a study, basement, roof deck and carport. with such restricted space, the dwelling does not feel tight and cramped as spaces merge into other with various, sometimes surprising configurations.

austin maynard blurs the volume of its union house’s rooms using height, sliding walls, voids and openings. the standard house layout of cells and corridors has been subverted. instead the spaces are defined with ramps, slopes, concealed steps, bookcases that split apart and a molded fibreglass blue bathroom. intriguing and imaginative ideas arose during client conversations, including the playful concept of an alternate route though the house. along with a black steel winding staircase, with part perforated treads, the team includes additional routes from the basement to the rooftop. a ramp, a glazed trap door, a series of climbing holds and nets enable this energetic family to climb up walls without ever interacting with the stair.













project info:
project title: union house
architecture: austin maynard architects
location: brunswick, melbourne, australia
design team: mark austin, natalie miles
builder: CBD contracting
engineer: vistek
landscape: bush projects
green roof: fytogreen
building surveyor: steve watson and partners
completion: january 2020
photography: derek swalwell






