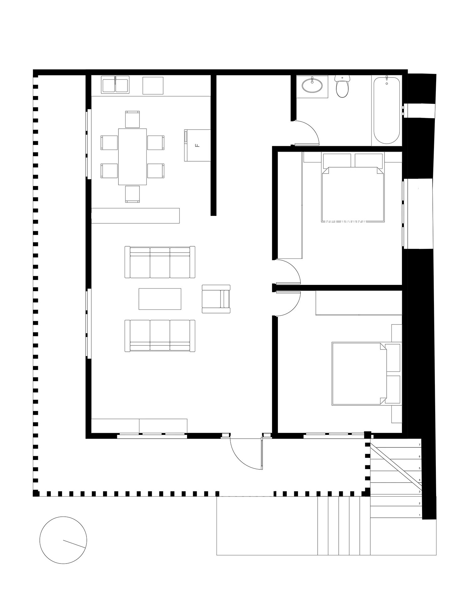
aldana sánchez architects has completed a building in central mexico that comprises catalan vaults, herringbone walls, and structural brick lattices. the project is located in a rural part of hidalgo state, which has an indigenous hñähñu population and less than a thousand inhabitants in total. the scheme comprises a two-bedroom home at ground level, with a multipurpose room above that provides technological services.

all images by marcos betanzos | video by miguel aldana
aldana sánchez architects explains that the concept behind the‘hñähñu multimedia center’is that of a terraced gazebo that responds to the location’s specific climate and views. the architects employed experimental construction systems throughout the scheme, including the semi-circular arched vaults that top the building. meanwhile, the brick lattices that enclose the lower level have been strengthened with concrete nodes.

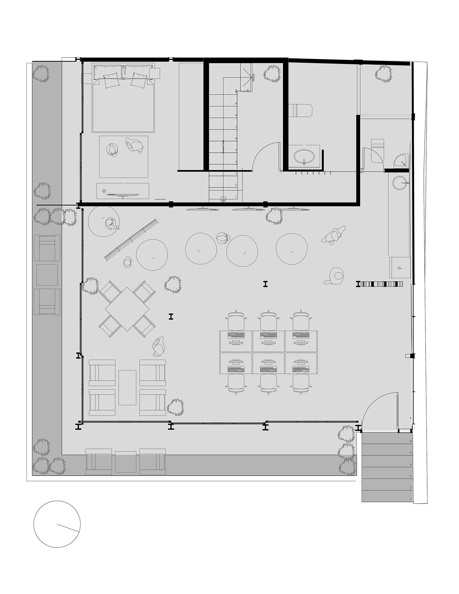
above the ground floor apartment, which has its own independent access, the upper storey serves as an internet café and offers gaming and cell phone services. foosball and pool tables are also included. this space, lined with herringbone brick walls, results in a communal setting that welcomes people of different ages. see other recently featured projects in mexico on designboom here, including a social housing project by SO – IL.










project info:
name: hñähñu multimedia center
location: cenobio ramirez #8 ocotza, julian villagrán, ixmiquilpan, hidalgo, mexico
architecture firm: aldana sánchez architects
architects: miguel aldana / patricia sánchez / thania palma
design team: diana díaz, andrea molina, alberto landero
client: exatech
engineer: juan aras, claudi jean baptiste, alberto hernández
collaborators: sandra león, jessica león, edgar álvarez
date of construction: december 2020
constructed surface area: 92 sqm / 990 sqf
photography: marcos betanzos
video: miguel aldana







