architecture and interior design firm DELUTION has completed a distinctive residence in indonesia known as‘the twins’. the project, located in cipulir, south jakarta, was built on a plot measuring just 70 square meters (753 square feet) in a densely populated residential area. in fact, the house can only be accessed on foot or by motorcycle. realized on a modest budget, the project was conceived as a‘growing house’that was constructed in three separate phases.

all images by fernando gomulya
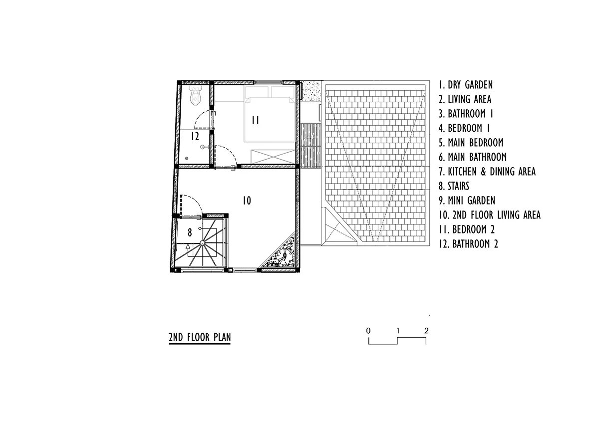
appropriately titled‘the twins’, the residence comprises two buildings of different sizes. DELUTION explains that one house contains accommodation for four people with two bedrooms and shared living spaces, while the other house has one bedroom with a bathroom and a family room. these two volumes are connected by glass doors that can be opened at any time to create a large multipurpose space.

the client asked for a house that included vegetation that was easy to maintain. in response, the architects planted trees in the corner of both houses, allowing them to protrude outside the envelopes of the two dwellings. this integration of greenery has a number of benefits for the residents, filtering air and providing increased levels of oxygen in a congested urban environment. another project by DELUTION featured on designboom is a red brick building called ‘the equalizer’.









project info:
name: the twins
 location: cipulir, south jakarta, indonesia
 architect: DELUTION
 design architect: muhammad egha, hezby ryandi, fahmy desrizal
 engineer: muhammad egha
 contractor: DELUTION build (ex CRI)
 site area: 70 sqm / 753 sqf
 building area: 85 sqm / 915 sqf
 dates: 2018-2019
 status: complete
 photographer: fernando gomulya
 
                             
                         
                                    














