beachside treehouses by atelier nomadic
perched on coconut palms overlooking the surf, these six bamboo treehouses are the latest accommodation offerings from playa viva, a luxury eco-resort in juluchuca, mexico. designed by rotterdam based atelier nomadic, the angular roof profile of the huts takes inspiration from the wing-like fins of mobula rays.
as well as taking inspiration from nature, the treehouses are also shaped by bioclimatic design principles. the large eaves provide ample shade from the hot sun and shelter from heavy rains while the façade louvers allow for natural cross ventilation.

image © kevin steele, courtesy of playa viva (main image © AVABLU, courtesy of playa viva)
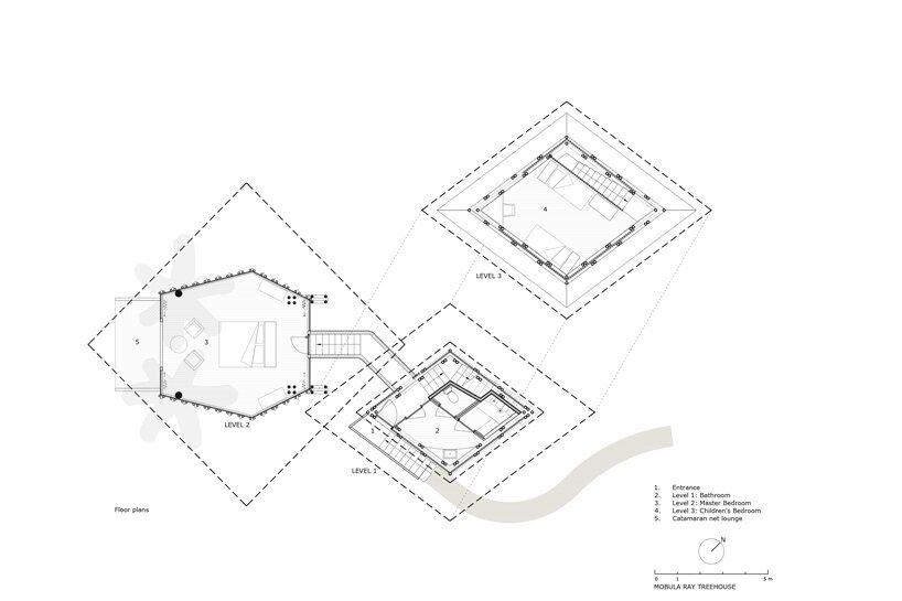
each treehouse is composed of two staggered structures over three levels. the annexed structure at the rear contains a bathroom on level one and a second bedroom or lounge upstairs. the master bedroom is contained within the front treehouse and boasts a large opening that frames beach views from bed.
the structures are built mostly from local bamboo, one of the fastest-growing renewable building materials in the world. strong guadua bamboo poles were used for the main structure and roof structure, section strips were used in the façade louvers, and flattened bamboo panels form the ceiling. phyllostachis aurea bamboo poles and dowels were utilized for the wall and façade panels in the annex building. the flooring is made from sustainably grown local cumaru timber. (see the construction unfold in the video below).

image © kevin steele, courtesy of playa viva
as part of playa viva’s environmentally conscious and regenerative ethos, the treehouses are all completely off-grid, powered 100% by the sun. playa viva is also working to support the health and education of the local community, and restore and revitalize the surrounding land. the resort is the founding member of the regenerative travel organization and founded and supports the la tortuga viva turtle sanctuary.
architect atelier nomadic says, ‘the holistic design was intended to align with the expected post COVID travelers’desire to stay in exciting, healthy accommodation, immersed in the natural environment. after months of isolation and lockdowns, here, guests can be submerged and re-connect with the natural environment: listen to the sound of the waves, bath in the warm sunset tones, feel the breeze sway through the palm leaves and taste the salt air, unmasked, as they lounge on the hammock suspended over the beach, staring at the stars.’

image © kevin steele, courtesy of playa viva

image © kevin steele, courtesy of playa viva

image © kevin steele, courtesy of playa viva
project info:
name: bamboo treehouse village
program: treetop dining pods, yoga pavilion, 5 two-bedroom treehouses
location: playa viva, juluchuca, mexico
client: playa viva
architect: atelier nomadic
design team: olav bruin, with louis thompson, luca fiammetta, maddalena losindaco
bamboo design & construction consultant: jorg stamm
site architect: roger martinez
landscape regeneration design: bill reed and regenesis group
year: 2021
drawings & sketches: atelier nomadic
photography: AVABLU, kevin steele, christian krantz
















