这是为一对正过着二次人生的已婚夫妇设计的周末度假别墅。位于广岛神石,距离福山以北约一个半小时车程,别墅坐落在海拔约400至700米的高地上,俯瞰着美丽的风景。
A weekend house design for a married couple living their second life, located in Jinseki, Hiroshima, about an hour and a half north of Fukuyama, sitting atop a plateau with an elevation of about 400 to 700 meters, overlooking a beautiful landscape.
▼屋顶与远山,rooftops and distant hills© Yoshiro Masuda

▼住宅外观仍保留着贺茂地区独特的“居藏造”外观,exterior look of the building remains the unique Igura-zukuri style of Kamo© Yoshiro Masuda

主屋、附属屋和谷仓从东到西被建成一排,这次的设计重心集中在对主楼和谷仓的改造上。主楼已经建成100余年,如何充分利用现状是这个项目的关键点。在检查过程中我们发现,虽然建筑有二层,但却没有楼梯,只能爬上一个老旧木梯才能进入,而在建筑的外面,有一高一低两个屋顶直到几年前还覆盖着红瓦。在判断原房屋是按照广岛贺茂地区传统“居藏造”风格建造的之后,我们决定着手改造,将其转变为开放式平面,从外面看像有两层,实际内部只有一层。我们把谷仓设计成客房,过去是用来存放家畜的,不像主屋,它的表面既非竖直也不水平。木框架结构也相当粗糙,这使得规划设计变得极其困难。
The main house, annex, and barn are built in a row from east to west, and the design this time mainly focused on renovating the main house and barn. Over 100 years have passed since the main house was built, and one key point of this project was how to make the most of its existing condition. During the inspection, we found that although there was a second floor, there are no stairs, and it is only accessible by climbing an old wooden ladder, and on the outside, there was an upper and lower roof which had been covered with red roof tiles until a few years ago. After judging it to be built in the Igura-zukuri style of the Kamo region in Hiroshima, we decided to start the renovation by returning it to a one-story house with an open floor plan, that from the outside looks like it has two-stories. The barn, which we designed as a guest room, was used for cattle in the past, and unlike the main house, it has no vertical and horizontal planes. The wooden frame was also constructed rather roughly, making planning the design extremely difficult.
▼夜晚室内全景,panoramic view of interior at night © Yoshiro Masuda

▼入口玄关,entrance area© Yoshiro Masuda

▼从客厅方向望向入口玄关,entrance area viewing from living room© Yoshiro Masuda

对于主住宅的平面规划分区,我们利用了居藏造的特点,即四个房间布置在方形之中,彼此之间由滑门分隔,入口和浴室则布置在东南侧的下沉素土地面。位于西北侧的厕所被移到浴室附近,更符合现代生活需求。为了充分利用四个分布在方形中的空间,我们设计了一个餐厅,包含一个带有10个座位的桌子,可以与大群人一起享受美食;一个带有下沉被炉桌的下沉壁炉空间,连接未曾改变的旧日场景;一个扩展的客厅区域,走廊上铺设名栗木雕刻的地板;还有一个和室,带有抬升的榻榻米地板,用于茶道或演奏三味线。我们请来了黑谷和纸的造纸工人Wataru Hatano,将日本纸安装到到天花板、墙壁和滑动门上。对于厨房和浴室,我们使用了十和田石的自然绿色,与黑色和米色的色调形成对比,创造有机效果。
For the floor plan zoning of the main house, we made use of the Igura-zukuri characteristics of having four rooms arranged in squares partitioned by sliding screen doors, and an entrance and bath near the earthen floor in the southeast side. The toilet that was located on the northwest side was moved near the bath, more considerate of modern living. To make the most of the four spaces arranged in squares, we designed a dining room with an original 10-seat table to enjoy meals with large groups, a sunken hearth space with a sunken kotatsu table, providing a connection with the unchanging scenes of the past, an expanded living room area, with Naguri chiseled flooring on the veranda, and a Japanese-style room with a raised tatami floor for tea ceremony or playing the shamisen. We brought in Wataru Hatano, a papermaker from Kurotani Washi, to apply Japanese paper to the ceiling, walls, and sliding screen doors. For the kitchen and bathroom, we used the natural green color of Towada stone to contrast with the black and beige tones for an organic effect.
▼主要室内区域概览,main interior area overall© Yoshiro Masuda

▼从和室内望向主要生活区,main interior area viewing from Japanese style room© Yoshiro Masuda

▼厨房、餐厅与下沉被炉区,kitchen, dining room and sunken kotatsu area© Yoshiro Masuda

▼桌面细部,detail of the table© Yoshiro Masuda

原本支撑整个通高8米的开放空间的柱子、梁枋已经被壁炉的木炭熏成黑色,我们保留了这种样貌,并用深色木炭染色剂将它们全部涂黑。乍一看,该区域似乎被分成四个独立的方形区域,但我们通过地板材质和家具布置的重叠交错,将它们升华为一个连成整体的单一空间。通常在改造这种风格的日式老房子时,照明设计的标准方法是在已有的横梁上安装线路轨道,通过安装聚光灯产生直射光。然而,我们采取的做法是在现有横梁上铺设古铜色的伪梁,在上面散布朝下的射灯,既作为直接光也作为间接光来使用,通过这种现代技术来引领更丰富的生活方式。
The pillars, beams, and kamoi that support the entirety of the 8m open space had been smoked black by the charcoal from the hearth, and we followed this style by finishing them in a dark charcoal stain.
At first glance, the area is separated into four separate squares, but we overlapped the floor material and furniture placement to sublimate them into a single connected space. The standard method for lighting design when renovating this style of old Japanese house is to install wiring duct rails on existing beams and create direct light using spotlights. Instead, we scattered downlights along copper-colored pseudo-beams placed between the existing beams to serve as both indirect and direct light, using this modern technique to lead the way to richer living.
▼厨房细部,原有的木头横梁被全部涂黑,detail of kitchen with wooden charcoal-stained beams© Yoshiro Masuda

▼和室,带有射灯的古铜色的伪梁穿插在黑色木梁之间,Japanese style room with copper-colored pseudo-beams placed between the existing beams with scattered downlight© Yoshiro Masuda

▼浴室细部,detail of the bath© Yoshiro Masuda

在设计谷仓平面时,我们在调整谷仓中不均匀的地面高度时,将必要的低梁安装到主跨中,以供铺设线路。接下来,我们按规划布置了必要的家具,悬挂在中心的大梁成为了这个受古人启发而创造出的空间的象征。1350mm高的床头板可通过转动曲柄调节成U型,将卧室区域围起来,增强睡觉时的私密性;它的目的是轻柔地划分空间。各处摆放的一枝花的花瓶,是由之前主屋的下沉壁炉顶板上的灰褐色竹子进行砍伐再利用做成。
When planning the barn, the beams had to be set low for the conducting wire. We made the necessarily low set beams into the main span by a process of adjusting the uneven floor level height in the barn. Next in our planning we placed the necessary furniture, and the large beam hanging in the center became the symbol of the space which was created with our ancestors’ help. The 1,350mm high headboard in the bed area can be adjusted with a crank to a U-shape, enclosing the bed area and enhancing the sense of privacy when sleeping; its purpose is to gently divide the space.
The single-flower vases placed here and there were made by cutting and reusing the soot-colored bamboo from the ceiling of the former sunken hearth in the main house.
▼卧室区域概览,overall of the bedroom area© Yoshiro Masuda


▼低矮的大梁横亘室内中心,the low-set large beam hanging in the center © Yoshiro Masuda

▼床头板围合出的区域增强睡眠私密性,headboard enclosing the bed area and enhancing the sense of privacy when sleeping© Yoshiro Masuda

▼卧室区域次要入口,secondary entrance to the bedroom area© Yoshiro Masuda

▼由原有木质梁檩和作为灯具的伪梁形成的框架结构,frame structure consisting of original wooden beam and the pseudo beam as the light © Yoshiro Masuda

▼卧室一角,bedroom corner© Yoshiro Masuda

场地南北的主花园和内部花园计划作为第二阶段的建设,将在雪季之后进行。
The main and inner gardens in the north and south of the grounds are planned as the second phase of construction, which will begin after the snowy winter season.
▼卫生间细部,detail of the toilet© Yoshiro Masuda

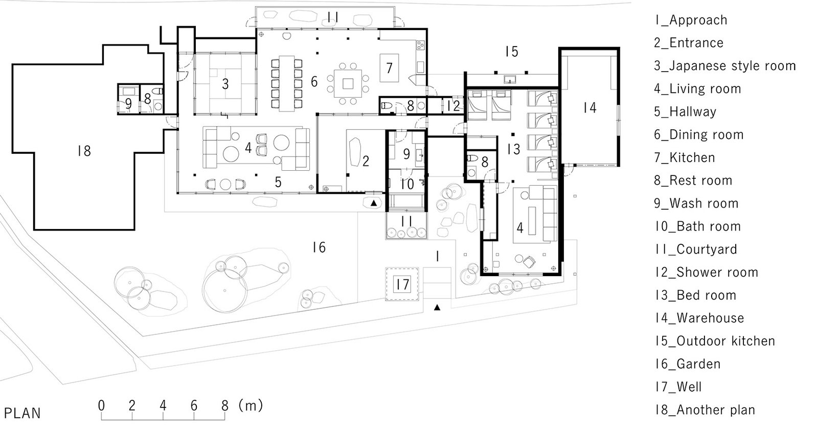
▼平面图,plan© REIICHI IKEDA DESIGN

Project Name House in Zinseki / 神石の家
Type of Project Interior / 内装設計
Use Residence / 住居
Location Hiroshima, Japan / 広島県
Date Nov. 2022 / 2022年 11月
Design REIICHI IKEDA DESIGN / 池田励一デザイン
Constructor Maeda Construction / 前田建設
Washi Wataru Hatano / ハタノワタル
Photographer Yoshiro Masuda / 増田好郎
MORE:REIICHI IKEDA DESIGN,更多请至:REIICHI IKEDA DESIGNon gooood