一条玻璃步道将16世纪三个不同的居住空间连接起来,反映旧的事物,宣布新的开始。随着昼夜的时间推移,玻璃走廊从反射光线转变为半透明的状态。
Reflecting the old and announcing the new, a glazed walkway links three distinct 16th century dwelling spaces, shifting from reflection to translucency as the day progresses from morning to night.
▼项目概览,Overallview © Ramon Portelli

▼住宅和周边建筑环境,The house and surrounding environment © Ramon Portelli

▼建筑入口,Entrance© Ramon Portelli

磨坊之家的设计解决了连接I级和II级保护建筑群的需求,其中包括一个可以追溯到16世纪中后期的磨房。项目将新的凝聚力量引入建筑之中并创造了新的未来之家,设计以室外庭院为连接点,使不同空间都能够享受的阳光的沐浴。
The design of the Mill House addresses a need to link a cluster of Grade I and II Listed buildings, including a mill room dating to around the mid-to-late 16th century. Introducing new cohesion between the buildings to create a future family home, the design positions an outdoor courtyard as a connecting agent, allowing the disparate spaces to each communicate with the sun-soaked hearth of the home.
▼通往室外庭院的连接处,Connection tothe courtyard © Ramon Portelli


▼室外庭院,Courtyard© Ramon Portelli

玻璃走廊作为三个体量之间的连接通道,从街道的视角是看不到的,走廊既隐蔽又大胆,反映了新与旧的对比。它沿着内部空间的两侧形成了光滑的边缘,让使用者能够从一栋建筑通向另一栋。玻璃走廊在一天中从镜面反射过渡到完全半透明状,其不透明的程度随着太阳光线的变化而减弱。早上的时候,玻璃映照着庭院黄色的石头和周围村庄的景色,在这个单一方向的连接处呈现出细长的带状。到了晚上,走廊的内部开启照明,照亮了下面泳池的区域和居民在不同房间内的活动。
A glazed walkway curates this connection, functioning as a binding passage between the three volumes. Invisible from the street, the walkway is both hidden and boldly announced, conceived as a reflective layer of contrast between old and new. It forms a lustrous perimeter along two internal facades, carrying its users from one living block to another. The walkway graduates from solid reflection to sheer translucency throughout the day, its opacity moderating with the sun’s changing light. In the morning, it reflects the courtyard’s yellow stone and the sights of the surrounding village, appearing as an elongated band that elbows at a single juncture. At night, its glazed corridor is internally lit, illuminating the pool area below and revealing movements of its inhabitants as they travel from one bedroom to another.
▼连接三个体量的玻璃走廊,Theglaszed walkway connecting the three volumes © Ramon Portelli

▼镜面反射的玻璃,Mirror-reflecting glass © Ramon Portelli

▼随着光线变化而半透明的玻璃,Glass that becomes translucent as light changes © Ramon Portelli

▼夜晚的灯光照亮走廊下方的泳池,Night lights illuminate the pool below the walkway © Ramon Portelli

建筑的首层面向庭院,作为住宅的餐厅和起居室。主要的房间在能见度上也发挥着作用——高大的橱柜装饰着空间的边缘,犹如极简的巨石一般,有时也能够作为通往相邻房间的门。
The ground level, which looks out to the courtyard, is home to the dining and living areas. Its main room also plays on grades of visibility – tall cabinets punctuate the edge of its space, resembling minimalist boulders that at times double as doorways to tangential rooms.
▼由起居室望向门口,Looking from the living room to the door © Ramon Portelli

▼起居室内的厨房,Kitchen© Ramon Portelli

▼通往主要房间的走廊,Hallway leading to the main room © Ramon Portelli

▼主要房间,The main room© Ramon Portelli

▼楼梯细节,Details of the stairs© Ramon Portelli

▼首层洗手台,Ground floor wash basin © Ramon Portelli

▼二层洗手台,First floor wash basin © Ramon Portelli

▼首层平面图,ground floor plan© Valentino Architects

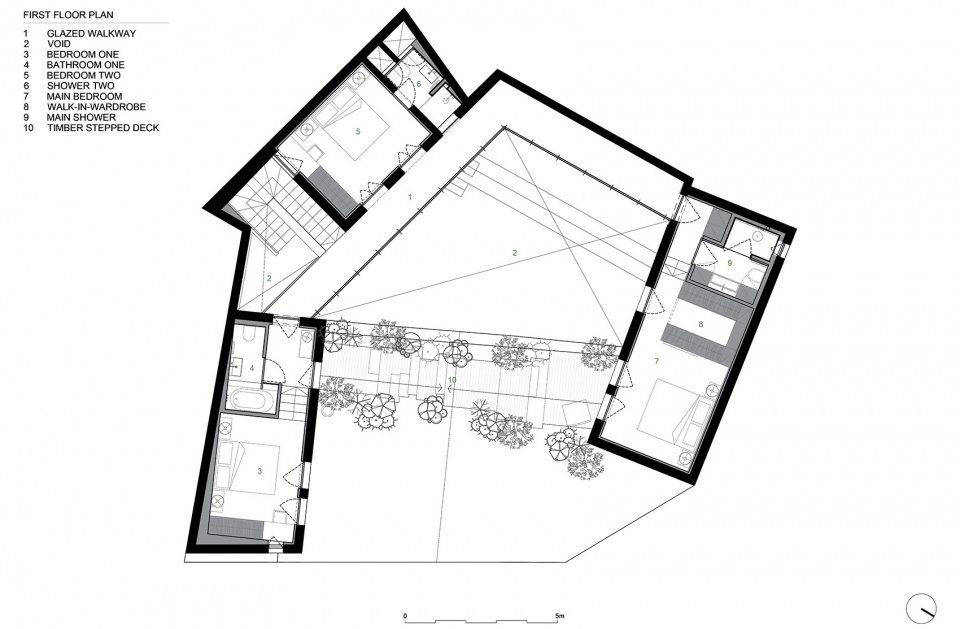
▼二层平面图,first floor plan © Valentino Architects

Program: Residential Conversion
Location: Attard, MALTA
Status: Completed, 2022
Structural Design: Perit Ivan Muscat
Photography: Ramon Portelli
Text: Ann Dingli
More:Valentino Architects。更多关于:Valentino Architects on gooood