儿童看护中心旨在对为未来几代人的生存环境产生积极的影响。
The Child Care Center is born from a set of intentions directed to create an impact on future generations.
▼项目鸟瞰,Aerial view© Federico Cairoli

▼建筑远景,Distant view© Federico Cairoli

建筑作为物质、空间、光以及与自然的融合,保持了最本质的状态。
泥土作为原材料构成了部分墙壁,并定义出内部的生活空间。这种具有原始气息的材料能够与我们的记忆和感官建立连接,使人体验到纹理、色彩、气味和变化的情绪。这也将有助于儿童在发育初期形成丰富的感知。
Architecture as matter, space, light and its integration to nature. Only the essential.
Earth, as raw material grouped in walls, draws the floor plan to create the living spaces. This material, which contains primitive and elemental information, linked to our memory and our senses, allows us to experience textures, colors, smells and a set of emotions that enrich perception and learning in early childhood.
▼外观,Exterior view© Federico Cairoli


▼建筑入口,Entrance to the Center© Federico Cairoli



一个内向且内敛的房间由此被创造出来,作为一个充满生命力的孵化空间。从外部看,泥土制成的体块隐藏并保护着室内的环境,而从内部看时,情况则截然不同:实体空间中穿插着一系列开放的空隙。
This way, an introspective, inward-looking construction is created, as an incubator of the very life that takes place there. On the outside, earth volumes hide and protect the interior. On the inside, quite the opposite occurs. Solids build space and assemble the voids.
▼中心庭院,Central yard© Federico Cairoli

▼内部露天花园,Patios inside the building© Federico Cairoli


交叉通风、绿化屋顶、充足的阳光以及低环境影响的材料,这些都被纳为建筑设计的考量因素,以保证为用户提供理想的热舒适度。
Cross ventilation, green roofs, adequate sunlight, the use of low environmental impact materials, are all considerations that are incorporated into the architectural design to guarantee the proper thermal comfort of the users.
▼连续又通透的空间体验,Transparent and interconnected spaces© Federico Cairoli



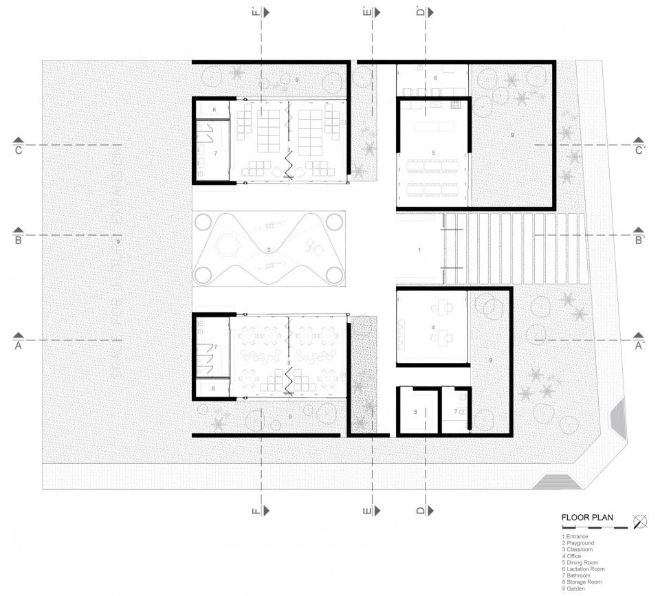
看护中心主要分为4个大空间:两个大型教室(可各自分为两间小教室)、餐厅以及行政办公区域。每个空间的两侧都设有庭院,使室内从视觉上与环境贯通,打破了教室作为封闭空间的概念。
The Center consists of 4 large spaces: two large classrooms, which are subdivided into 2 each, a dining room and an administrative area. Each space, overturned on both sides to patios, visually communicate with the environment, eliminating the concept of the classroom as a closed space.
▼大教室,Large classroom© Federico Cairoli


▼庭院使室内从视觉上与环境贯通,Each space is visually communicate with the environment© Federico Cairoli


中央庭院被用作儿童游戏区,成为整个建筑群中的焦点。这里是不同年龄段儿童的交流场所,其地面以不同的材料铺设,实现了玩耍和学习体验的结合。
The central courtyard, which functions as the children’s play area, becomes a focal point of the ensemble. It is a meeting point for different ages, a floor with various textures and materials, where you learn by playing and you play to learn.
▼中央庭院,Central courtyard© Federico Cairoli


▼花园景观,Garden landscape© Federico Cairoli

该项目展示了一个普通而平凡的郊区街角如何转变成知识与学习的中心。它就像是一块播撒了种子的土壤,随着时间的推移,终将向世界展示它的丰硕成果。
This is how a common and ordinary suburban city block corner becomes the center of knowledge, center of learning, sower of the seeds that one day were planted there, and that little by little, the world will witness its fruits.
▼夜景,Night view© Federico Cairoli


▼建筑墙面细节,Wall detailed view©Equipo de Arquitectura


▼场地平面图,Site plan© Equipo de Arquitectura

▼平面图,Floor Plan© Equipo de Arquitectura

▼剖面图,Sections© Equipo de Arquitectura

▼节点,Detailed Drawing© Equipo de Arquitectura

Project Name: Child Care Center
Office: Equipo de Arquitectura
Web: www.equipodearquitectura.com
E-mail: info@equipodearquitectura.com
Country: Paraguay
Architects: Viviana Pozzoli, Horacio Cherniavsky y María Paz Sánchez
Year: 2021
Location: Villeta, Paraguay
Area: 450 sqm
Client: Las Tacuaras S.A.
Photographer: Federico Cairoli
Photographer’s Web Page:http://www.federicocairoli.com/
Photographer’s Mail: contacto@federicocairoli.com
Structural engineering: Federico Taboada
Landscape: Lucila Garay
More:Equipo de Arquitectura。更多关于:Equipo de Arquitecturaon gooood