本案为旧房改造项目,位于北京市朝阳区,建筑面积93㎡。夫妻二人希望拥有开放、明亮的起居空间,能够贴合二人居的都市生活需求。
Therenovation project is located in Chaoyang, Beijing, with floor area of 93㎡. The client wants to have an open and bright living space with fulfilled requirements.
▼空间轴线上的穿行动线,Circulation on axis of the space © 立明

入户后,一侧为玄关柜,存放衣物;一侧为三分离卫生间,镜面幽灵门节省开启空间,同时可作为穿衣镜,为走廊起到视觉延伸的作用。
▼空间轴侧图,Axonometric diagram © 辰境设计

After entering the apartment, one side installs entryway cabinets, other side is bathroom with mirrored door, which saves space for corridor and provides visual extension.
▼玄关,Entryway © 立明

▼玄关细部,Entryway details© 立明

▼玄关卫生间镜面幽灵门,Bathroom mirrored door © 立明


以LDK(客厅、餐厅、厨房)形式进行多空间组合的处理,使空间之间相互连通,彼此渗透。扩大居住活动面积的同时,改善室内通风及采光。
We organized living space with LDK (living room, dining room, kitchen) layout, makes the spaces interconnected each other. While expanding the living area, also improving indoor ventilation and lighting.
▼客厅、餐厅、厨房一体化的开放式生活空间,LDK with living room, dining room, kitchen © 立明

▼由客厅看厨房,Viewing the open kitchen from the living room© 立明

▼慵懒的空间氛围,Cozy vibe © 立明

悬空的电视柜一面内嵌屏幕,一面用来收纳,隐藏设备、线路,保证空间的整洁。置入电视柜后,使动线产生不同方向之间的变化,穿行自由的空间格局使生活场景丰富多变。
The overhanging TV cabinet embeds screen on one side, and store on the other side to hide equipment and wire, ensure the neatness of the space. The overhanging cabinet creates diverse circulations and changeable living scenes.
▼开阔、明亮的起居空间,Living room© 立明

▼悬吊的电视柜丰富空间动线,
Overhanging cabinet enrich circulation © 立明

开放厨房与餐厅结合,形成餐、厨一体空间。所有厨房电器嵌入式设计,并按照业主烹饪习惯布置,保证操作动线便捷、合理。
The open kitchen is combined with dining area to form an integrated space. All cooking appliances are embedded and arranged according to the operation habits for using convenience.
▼餐岛一体,Dining area© 立明

餐桌、岛台由米色超白天然洞石定制而成,表面封洞处理,避免油污的渗透。整个居室以白色打底,搭配天然石材,增添了空间的温润感、肌理感。
The dining table and island are made of beige stone. The surface is sealed to avoid oil penetration. The apartment adopts with whitish color and natural stone for a sense of warmth and tactility.
▼餐桌岛台细部,Details of thedining table and island© 立明


玄关左侧、电视柜后方设置洗漱区、清洁区。悬吊的电视柜对洗漱区进行了有效的视线遮挡,且形成功能上的分流动线。清洁区具备充足的储物空间,收纳家用电器、清洁用品等,有效避免杂物堆积,保持过道整洁、通畅。
We put cleaning area on the left side of the entryway and rear of TV cabinet. The overhanging TV cabinet blocks the sight effectively and creates branched circulation. The cleaning area has sufficient storage space for household appliances and supplies to keep the corridor clean and unobstructed.
▼清洁区位于电视柜后方,
Cleaning area is rear of the TV cabinet© 立明

▼天然石材洗漱池,Natural stone sink © 立明


移动卧室门位置为主卧预留整墙收纳,满足生活储物需求。卧室阳台改为飘窗形式,台面下方同样具备收纳功能,倚靠窗前,看都市繁华。卧室延续白色纯净的空间氛围,至简安宁。
We relocate the bedroom door for more storage space. The balcony of the bedroom has been changed into floating window, with storage under the countertop. Overlook the city view by leaning against the window. The bedroom address pure atmosphere, keep simplicity and tranquility.
▼卧室看向窗外,Looking outside from bedroom © 立明

▼纯粹、宁静的空间氛围,Pure and serene vibe © 立明


次卧设置办公区可作为独立书房,满足男主人居家办公的需求。空间暗藏收纳和临时床位,为亲朋留宿提供便利。
The guest room can transform into an independent study by adding working desk, provide opportunity for working from home. The space conceals storage and folding bed, provides convenience for families and friends stay overnight.
▼次卧、书房,Guest bedroom/Study © 立明

▼收纳体系分析图,Storage system diagram © 辰境设计

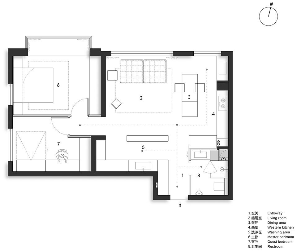
▼平面图,Plan© 辰境设计

项目名称:行间
项目地点:北京市朝阳区
项目面积:93㎡
主创设计师:刘俊辰,翟双权
设计团队:辰境设计
竣工时间:2022.11
主要材料:乳胶漆,爱格板,石材,瓷砖
摄影:立明
Project: Betweenthelines
Location: Chaoyang, Beijing
Floor area: 93㎡
Principal designer: LIU Junchen, ZHAI Shuangquan
Design team: CHENJING DESIGN
Completion: 2022.11
Materials: Latex paint,EGGER plate, Stone, Tile
Photograph:LI Ming
More:辰境设计(联系邮箱:3300199011@qq.com),更多请至:CHENJING DESIGNon gooood