阿尔费雷斯之家最初的设计概念来源于森林中的保护性庇护小屋和其浪漫的坠落姿态。设计者希望让房子看起来像一个跌倒在树丛中的立方体。
The origin of the concept of Alferez house comes from the idea of a cabin in the wood and its romantic felling of a protective shelter in the middle of the forest. I wanted the house to look like a cube which would have crashed on the floor, among the trees.
▼与世独立的房子,An isolated house ©Rory Gardiner

▼项目概览,Overall view© Rory Gardiner

设计该项目基于以下三个要点:
第一,项目回应了在森林中建造一个与世独立的房子的想法,同时重视了业主对安全感的强烈需求;这是一栋像金库一样的房子,由混凝土建造而成,保护并照顾着其中的居住者。由此便得到了一种混合的表达方式——一方面,房屋表达了项目浪漫的部分,另一方面,堡垒一样的建筑结构提供了简单直接的保护作用。
The design of the house is based on 3 points:
1. The project responds to the idea of an isolated house in the forest, without ever losing sight on the need for a strong feeling of security ; a house like a vault, made of concrete that protects and cares for its inhabitants. The result is a mix of languages, on one hand the cabin as the romantic part of the project and the other hand the fortress as the brutalist protective part of the project.
▼丛林掩映的小屋,Jungle-shelteredhouse©Rory Gardiner


房子的首层几乎是不通透的,窗户都被设置在了非常高的地方,人们无法从室外触碰到它们,这是为了获取通向天空和周围的松树林的视野。
The ground floor is almost blind , meanwhile the windows are placed on a very high level where you can’t reach them from the outside, opening views toward the sky and the pine trees on the inside.
▼被设置在高处的窗,The windows are placed on a very high level ©Rory Gardiner

第二,该项目的用地非常紧凑,这是为了避免由于地形原因而导致的复杂且昂贵的地基成本,设计者的想法是增加房屋的高度——在房顶建造第二个首层,作为树木间悬浮的露台。屋顶露台是上午使用的区域,原有的首层在下午使用。小屋像是一个不稳定的盒子掉落在自然的斜坡上,其南端伸出悬挑结构,北端则是下沉式的。
项目重新塑造了一个悬挂在自然地形之上的房屋。其结构表达了这一矛盾的特点,小屋轻盈的质感与堡垒混凝土的厚重感之间产生了强烈的对比。
2. The structural project has a very compact footprint, in order to avoid a complex and expensive foundation due to the topography of the land, with the idea to grow the height of the house to create a second ground floor on top of the house, the suspended rooftop terrace in the middle of the trees. The rooftop is the morning area , meanwhile the natural ground floor is the afternoon area .The house seems like dropped as un unstable box on top of the natural slope of the land, cantilevered on its south corner, and sunken on the opposite north corner.
The project recreates the feeling of a cabin suspended on top of the natural topography of its land. The structure expresses this contradiction , generating a singular contrast between the feeling of lightness of a cabin, balanced by the weight of the concrete and the fortress personality of the house.
▼从室外看向房屋内部,View from outside towards the interior of thehouse©Rory Gardiner

▼小屋入口,Entrance ©Rory Gardiner

▼入口处的悬挑结构,Suspended structures at the entrance ©Rory Gardiner

第三,房屋享受到从树木间洒下的阳光,并与周围雄伟的松树树冠建立了某种联系。遵循其用地9 x 9米的逻辑,项目意图垂直向上发展,而非水平,这样一来,能够允许人们触摸到那些高大松树的树枝。
3. The house is looking for the light among the trees and a relationship with the crown of those majestic pine trees. Following the logic of its compact footprint of 9 x 9 meters , the purpose of the project has been to grow vertically, instead of horizontally, to allow people to touch the branches of the tall pine trees.
▼内部的双层高度,Double height design ©Rory Gardiner



房屋的结构从其双层高度的一半处被重新设计,使房子的内部拥有大教堂般的尺度和感觉,光线透过高耸屋顶处的天花板和天窗洒到屋子内的每个角落,紧接着弥散在整个内部空间,弥补了首层缺少窗户的遗憾。
The configuration of the house has been developed in half levels organized around a double height, giving the house this cathedral feeling and proportion on the inside, with light entering everywhere from the top, through those very high windows and skylights in the ceiling. Then the double height diffuses the light through the entire inner space and compensate the loss of windows on the ground floor.
▼厨房和餐厅,Kitchen and dining room©Rory Gardiner


▼卧室空间,Bedroom ©Rory Gardiner

▼卧室空间细部,Details of the bedroom©Rory Gardiner


▼浴室和更衣区,Bathroom and dressing area ©Rory Gardiner


▼新建的露台,The rooftop terrace ©Rory Gardiner

▼房屋的材料与结构细节,Details of the stucture and materials©Rory Gardiner

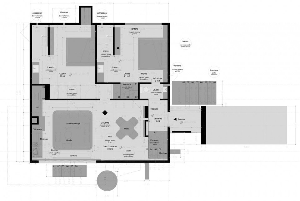
▼平面图,plan© Ludwig GodefroyOffice

▼平面图与设计细节,plan and other design details© Ludwig GodefroyOffice

▼立面图,elevation © Ludwig GodefroyOffice

▼剖面图,section© Ludwig GodefroyOffice

House area: 150 m2
Built year: 2022
More:Ludwig Godefroy Office。更多关于:Ludwig Godefroy Office on gooood.