在纽约州北部的北塞勒姆农场,Worrell Yeung工作室为其客户设计了新的建筑,同时也对既有的建筑实施了改造。该项目延续了工作室通过简化元素来表达建筑体量的工作方法,将一座家庭住宅与威彻斯特县的农业景观融为一体。
Worrell Yeung’s North Salem Farm project, the design and renovation of acollection of new and existing buildings for a family in upstate New York, continues the studio’s interest in expressing architectural volume through a simplification of the elements. Set within the agrarian landscape of Westchester County, this family home was designed to be thoughtfully integrated into the landscape.
▼项目概览,Overall view© nahokubota

▼主屋外观,Main house exterior view© nahokubota

Worrell Yeung的设计将三个独立的建筑汇聚在8.7英亩的三角形地块的西北侧,该地块从街道向池塘和山坡的方向倾斜,并逐渐变得宽敞。在与Raft景观事务所的紧密合作下,设计团队为场地制定了一套策略,使主屋隔绝于街道一侧,并将每座建筑的视野引向景观。在场地的入口处,一条新修的车道和棱角分明的碎石场将一棵成熟的白玉兰树环绕起来,为整个项目引入了极简且抽象的美学特征,同时也为传统的坡屋顶形式增添了细腻的质感。
▼场地轴测,Axon – site© Worrell Yeung

Worrell Yeung’s design gathers three separate structures at the narrow, Northwest side of the 8.7-acre triangular lot, which widens and slopes softly downwards from the street towards a pond and hillside. Working closely with Raft Landscape, the team developed a site strategy that shields the main house from the abutting street and focuses views from each structure towards the landscape. At the entrance, a new driveway and angular entry gravel court, arranged around a mature Magnolia tree, introduce a minimal, abstract aesthetic that runs through the project, adding texture to traditional gabled forms.
▼三座独立的建筑,Three separate structures© nahokubota

▼主屋和工作室,Main house and studio© nahokubota

主屋最初是由一座乳品仓库改造而来,在该项目中得到了全面的翻新和扩建,并在此基础上增加了一座附属的地面车库/工作室,以及一座spa小屋。这三座建筑从新的层面上诠释了美国谷仓典型的坡屋顶形式,并通过不同的覆层和材料细部与旧有的结构相互区分。
The studio gut renovated and expanded the main home (originally a converted dairy barn) and added a ground-up garage/studio, and spa shed. The three buildings iterate on the archetypal gabled form of the American barn while also distinguishing themselves with varying approaches to cladding and material detail.
▼主屋外观局部,Mainhouseclose-up view© nahokubota


主屋的特点是采用了深色金属屋顶和定制的深绿色柏木护墙板,并通过不同的板条拼接方式来呼应和更新场地的农业环境和氛围。“外墙的配色灵感源于被深绿色苔藓覆盖的谷仓,为此我们特别制作了一款染色剂,能够根据光线和季节的变化而呈现出不同的效果,同时又能将柏木的特点体现出来。”Yeung补充道:“入口一侧是带有铰接式雨棚的坚固墙面,后侧则是新安装的大尺寸窗户,可以看见池塘的全景。”
Echoing and updating the agrarian vernacular, the main house is characterized by dark metal roofing and custom dark green stained cypress wood siding in a varied batten pattern. “The exterior palette was inspired by dark mossy covered barns and so we came up with a custom stain that takes on different readings depending on the light and season while still imbuing the character of the cypress wood,” says Yeung. The approach side is defined by a mostly solid facade with an articulated dormer, while the rear features new enlarged windows with panoramic views trained towards the pond.
▼主屋入口之一,One of the entrances of the main house© nahokubota


在主屋内部,大型的木质坡屋顶结构横跨整个体量,创造出一个开放而开阔的中央公共空间。Worrell Yeung工作室与Silman工程公司合作,将原本裸露在外的椽子等比放大以配合桁架结构的尺寸,因此最终只有钢制的拉杆是清晰可见的。这一做法让房屋的天花板变得统一、简洁、直白而又优雅。
Inside, a large timber gabled roof structure stretching from one end to the other, creates an open dramatic central communal space. Working with Silman Structural, Worrell Yeung scaled up exposed rafters to match the truss member sizes, so that only the steel tie rods are visible. The result is a uniform, minimal, and starkly elegant ceiling.
▼主屋起居空间,Living room© nahokubota


▼餐厅,Dining area© nahokubota

▼从餐厅望向起居室,View to the living room from the dining area© nahokubota

▼大型的木质坡屋顶结构横跨整个体量,A large timber gabled roof structure stretching from one end to the other© nahokubota

▼阁楼两侧,Spaces at the two ends of the loft structure© nahokubota


▼厨房,Kitchen© nahokubota

▼厨房细节,Detailed view© nahokubota


▼客卧,Guest bedroom© nahokubota

▼客卧,Guest bedroom© nahokubota


▼楼梯,Stairs© nahokubota

▼地下层社交空间,Social space on thebasement floor© nahokubota

▼社交空间外观,Exterior view© nahokubota

主屋之外新修建了一个摄影工作室兼车库,其朝向与主屋相同,从而创造出一条将住宅与街道相隔开的屏障。这座建筑坐落在被保留在场地中的四棵高大的雪松之间,为中央入口庭院提供了一个阴凉的空间,并连接至主屋的客厅区域。摄影工作室所在的部分使用了花旗松木胶合板和带有磁性的可钉墙板,包含一个开放的小厨房、一体式工作台、阁楼卧室以及浴室。
Beyond the main house, a new photography studio and garage is oriented in the same direction as the main house, creating a barrier shielding the home from the street. Nestled between four dramatically tall cedar trees that Worrell Yeung worked to preserve and maintain, the studio/garage also creates space for a sheltered central entry court that connects to the main home’s living room. The studio portion of the structure is lined with Douglas Fir plywood and magnetic pinup walls and contains an open pantry, integrated workstation, sleeping loft, and bathroom.
▼摄影工作室/车库与主屋朝向相同,Photography studioand garageis oriented in the same direction as the main house© nahokubota

▼摄影工作室/车库侧面,Photography studioand garage – side facade© nahokubota

▼工作室内部,Interior view of the studio© nahokubota


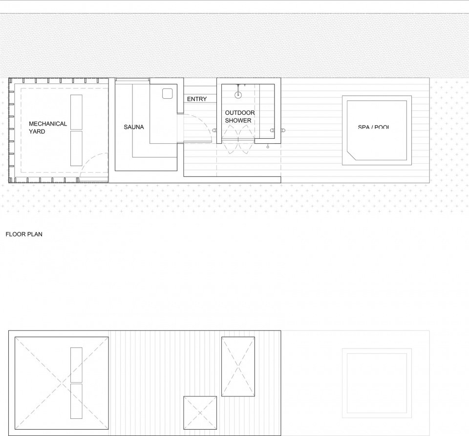
在主屋和工作室东侧,还有一座新建的spa小屋,它由一条带有再生花岗岩边衬的碎石小路连接。小屋采取了半山墙的造型,虽然它延续了主屋和工作室的屋顶类型,但在色调上与后者保持了差异。spa小屋配备了热水浴缸和桑拿室,墙壁覆盖以颜色较浅、经过风化处理的灰色防雨柏木板材。
Completing the collection of structures, a smaller-scale spa shed was constructed to the East of the main home and studio/garage, connected by a crushed gravel pathway lined with reclaimed granite pieces on one edge. The spa shed reads as a half-gable form. While it continues to iterate on the gabled typology introduced by the main house and garage/studio, it departs from the central buildings in palette. Containing a hot tub and sauna, the spa shed is clad in a lighter, weathered gray cypress rain screen.
▼新建的spa小屋,The new-addedspa shed© nahokubota



▼淋浴室和桑拿室,Shower and sauna© nahokubota

▼项目整体外观,Overall view of the project© nahokubota

▼场地平面图,Site plan© Worrell Yeung

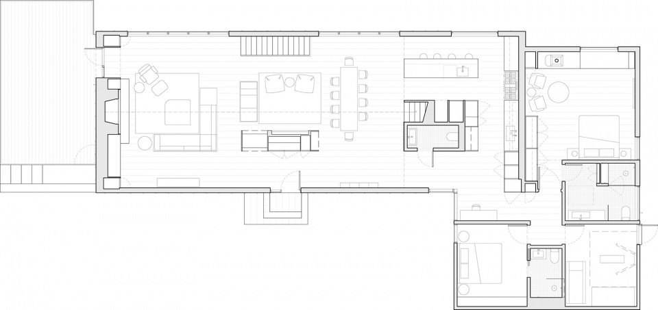
▼一层平面图,1st floor plan© Worrell Yeung

▼spa小屋平面,Spa shed floor plan© Worrell Yeung

Main House: 5185 SF (previously 4640 SF)
Garage/Studio: 1400 SF
Property: 8.7 acres
Client: Dr. Chandra Sen and Sharmila Sen
Architect: Worrell Yeung (Jejon Yeung, Max Worrell, Yunchao Le, Cohen Hudson, Bryan
Cordova)
Interiors/FFE: Worrell Yeung
Landscape Architecture: RAFT
Meadow Consultant: Larry Weaner Landscape Associates
Structural Engineer: Silman
Civil Engineer: Insite Engineers P.C.
MEP Engineer: Altieri Sebor Wieber LLC
Builder: L&L Builders, Belmont Land Design
Products/Materials
Siding: Custom stain Cypress by JA Custom Millwork
Flooring: Dinesen Douglas Fir, Forbo
Windows/Doors: Marvin Modern
Stone: BAS Stone
Kitchen: Custom Zinc Paneling by JA Custom Millwork
Door hardware: Pitella + Ize
Dining Room Light: Lambert e Fils
Bathroom vanities and fixtures: Brooks Custom, Kast, Fantini and Kohler
Bathroom Tiles: Stone Source, Cle, Zia, Ann Sacks
More:Worrell Yeung对gooood的分享。更多请至:Worrell Yeung on gooood