这所幼儿园位于巴黎第10区的圣路易斯医院。项目选址在遗产区,占地350平方米,和现有的为医院工作人员提供的幼儿园相邻,并与之共享一座花园。新建的幼儿园能够容纳48张婴儿床。为了响应巴黎市对建筑可拆卸的要求,建筑师选择了干式施工法和预制木结构以及可拆卸的组件,使得结构的解构和在其他地方重新利用成为可能。
The kindergarten takes place in Saint Louis’s hospital in the 10th district of Paris. Located in a heritage area, the project is established on a 350㎡ plot, next to an existing kindergarten for hospital’s staff which garden will be shared between the two structures and will host 48 cribs. As the city of Paris requested the building to be dismountable, the architects have opted for dry construction methods and prefabricated wooden structures and dismountable assemblies, allowing a possible deconstruction and a future reuse of the building on another site.
▼项目位于历史区,Located in a heritage site © Benoit Florençon

▼项目概览,Overall view © Benoit Florençon

幼儿园的用地由一条弯曲的道路和一个现存的花园所限定,这也确定了建筑的形状。
The proposed plot for the project delimited by a curved road and an existing garden define the shape of the building.
▼场地轴测图,axonometric© Benoit Florençon

本项目的特点是建筑拥有不同特点的“面”:
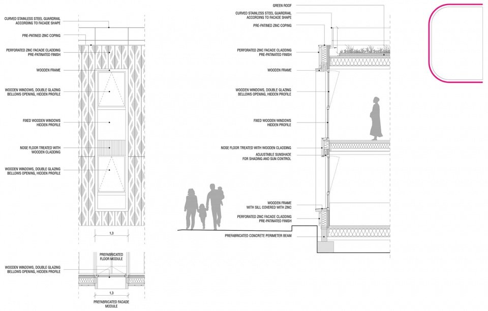
第一个“面”是一个被预风化的锌覆层覆盖的立面,与公共空间相连,使建筑能够更好的融入巴黎的环境之中。这层锌覆层起到了保护围护结构的作用,并且引入了带有现代气息的网状图案,这种图案的灵感来自用地旁圣路易斯教堂的窗户。木质双层高的窗户框架重新定义了建筑前面窗户的尺寸,与网状图案一起,在最大程度上缩小了建筑的规模。
The building is characterized by different faces :
The first face of the building, connected to public space, is covered with pre-weathered zinc cladding for a better integration in the Parisian environment. This cladding plays the role of a protective envelope and brings a contemporary note with perforated pattern that takes inspiration from windows of the Saint-Louis chapel next to the plot. The double height windows with wooden frame reinterprets the front building’s windows and helps to minimize the scale of the building also thanks to mesh pattern.
▼被锌覆层覆盖的立面,Façade covered with zinc cladding © Benoit Florençon

▼具有现代气息的网状图案,Modern mesh pattern © Benoit Florençon

▼双层高的木质窗户,The double height windows © Benoit Florençon


第二个“面”是建筑面向幼儿园的花园的立面,这个面隐藏在内侧。对这个立面的处理方式与其他面不同——被设计的更加透明,渗透性也更强,与共享花园建立直接的关系,使光线穿过儿童们的空间。玻璃材质的立面还展示了建筑的木质结构(胶合木柱和梁)以及模数的框架。首层的建筑后退距离创造了一个部分被覆盖的室外露台。
The second face is hidden from outside view and opens toward a protected garden of an existing kindergarten. Its treatment contrasts with the rest of the building: more transparent and permeable, creating a direct relationship with the shared garden, it brings the light go through the children’s spaces. The glazed façade reveals also the timber structures of the building (glulam posts and beams) and frames modules. The setback on the first floor creates an outdoor terrace partially covered.
▼面向花园的立面,Facade facing the garden © Benoit Florençon

▼更加通透的立面,Facade which is more transparent © Benoit Florençon

▼木质结构,Wooden sturture © Benoit Florençon

▼模数的框架,Modulus frame © Benoit Florençon

▼建筑后退形成的室外露台,Outdoor terrace formed by building setback © Benoit Florençon


第三个“面”是建筑的绿色屋顶,在这里重新打造了项目之前医院里的花园。这个屋顶花园有助于保存水分、保护生物多样性,为鸟类和昆虫提供了生存空间。
The 3rd face is the green roof of the building that recreates the garden present in the hospital before the project. It contributes to water retention and preserves biodiversity, offering a space accessible to birds and insects.
▼从半覆盖的室外露台看向花园,Looking out to the garden from the semi-covered outdoor terrace © Benoit Florençon

项目在空间上围绕着一条位于轴线上的室内中央街道展开,这条街道连接通向两个楼层的主要出入口。由于每层楼都设置了一个日托单元,这种空间循环型的布置使需要额外空间的守时活动得以进行。中央街道在西侧与锌覆层立面、办公室、员工空间以及技术部分相连,另一侧则为花园的儿童专用空间提供了通道。从中央街道向上还可以通往露台。
The project’s spatial organization revolves around a central indoor street straight in the axis of the main access connecting the two floors, each one hosting a daycare unit. This wide circulation allows punctual activities when extra space is needed. It serves, on the west side in connection with the zinc façade, offices, staff spaces as well as the technical parts. On the other side it gives access to the spaces dedicated to children opening onto the garden. Upstairs it also gives access to the terrace.
▼通向花园的出入口,Entrance to the garden © Benoit Florençon

▼相互连接的循环空间,Interconnected circulation spaces © Benoit Florençon




▼通向二层的楼梯,Stairs leading to the first floor © Benoit Florençon

▼从二层楼梯处望向首层,View from thefirst floor to thegroundfloor © Benoit Florençon

▼木结构细部,Wooden stucture details© Benoit Florençon

在如此特殊背景下进行该项目,设计团队面临了多方面的挑战——他们需要使建筑融入受监管的历史环境中;在建筑施工期间维持医院正常的运转;以及极其有限的工地使用面积。
The specific challenges of carrying out the project in such a context were multiple : integration into a regulated historical environment, maintain hospital activities during the construction, as well as a very limited worksite footprint.
▼夜幕中的幼儿园内部,Kindergarten interior at night © Benoit Florençon

▼幼儿园夜览,Kindergarden at night© Benoit Florençon

圣路易斯幼儿园被标记为BBC Effinergie +,并在2021年时获得了地区木结构建筑奖。
The building is labelled BBC Effinergie + and won Regional timber construction award in 2021.
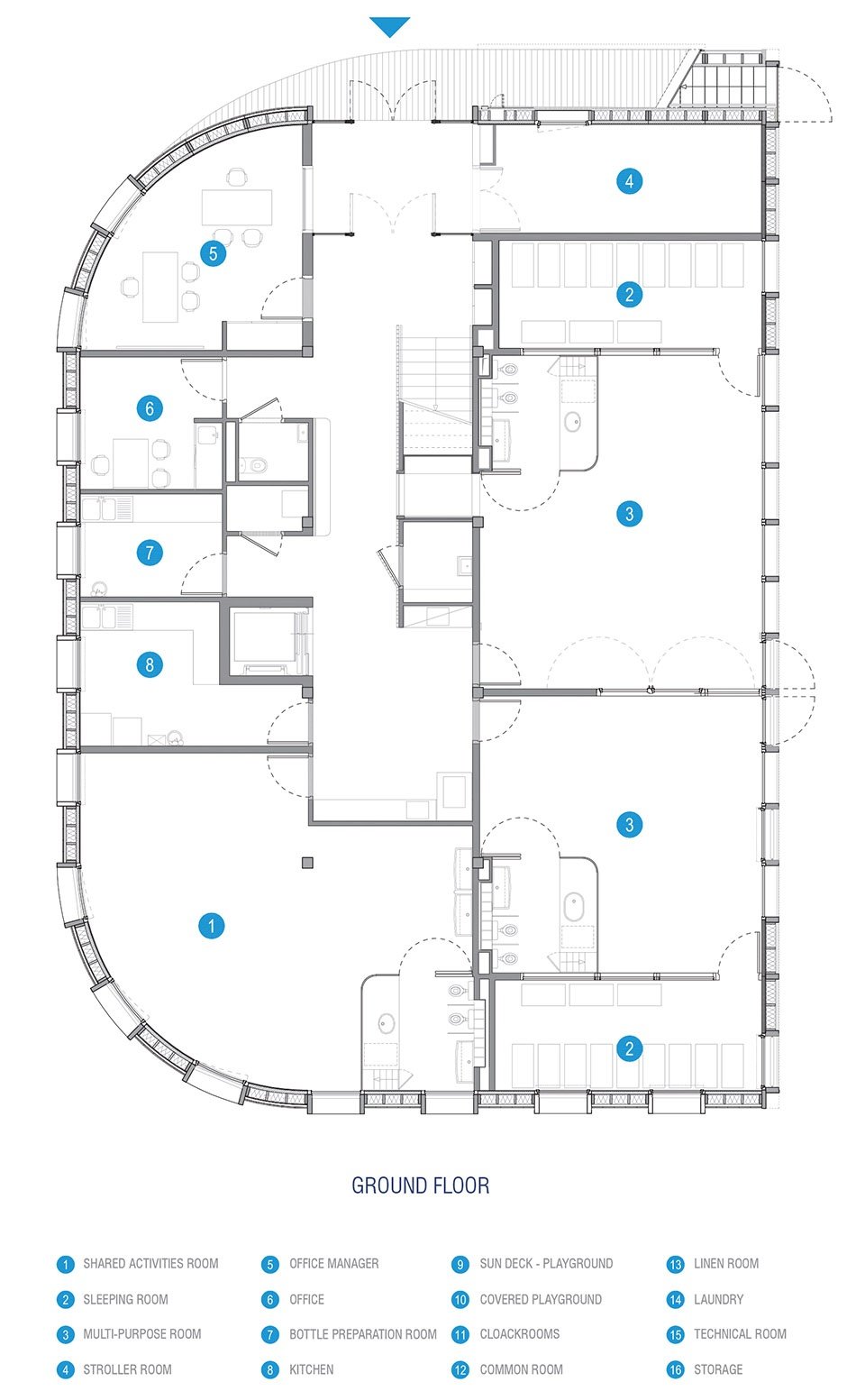
▼首层平面图,ground floor plan © Janez Nguyen Architects

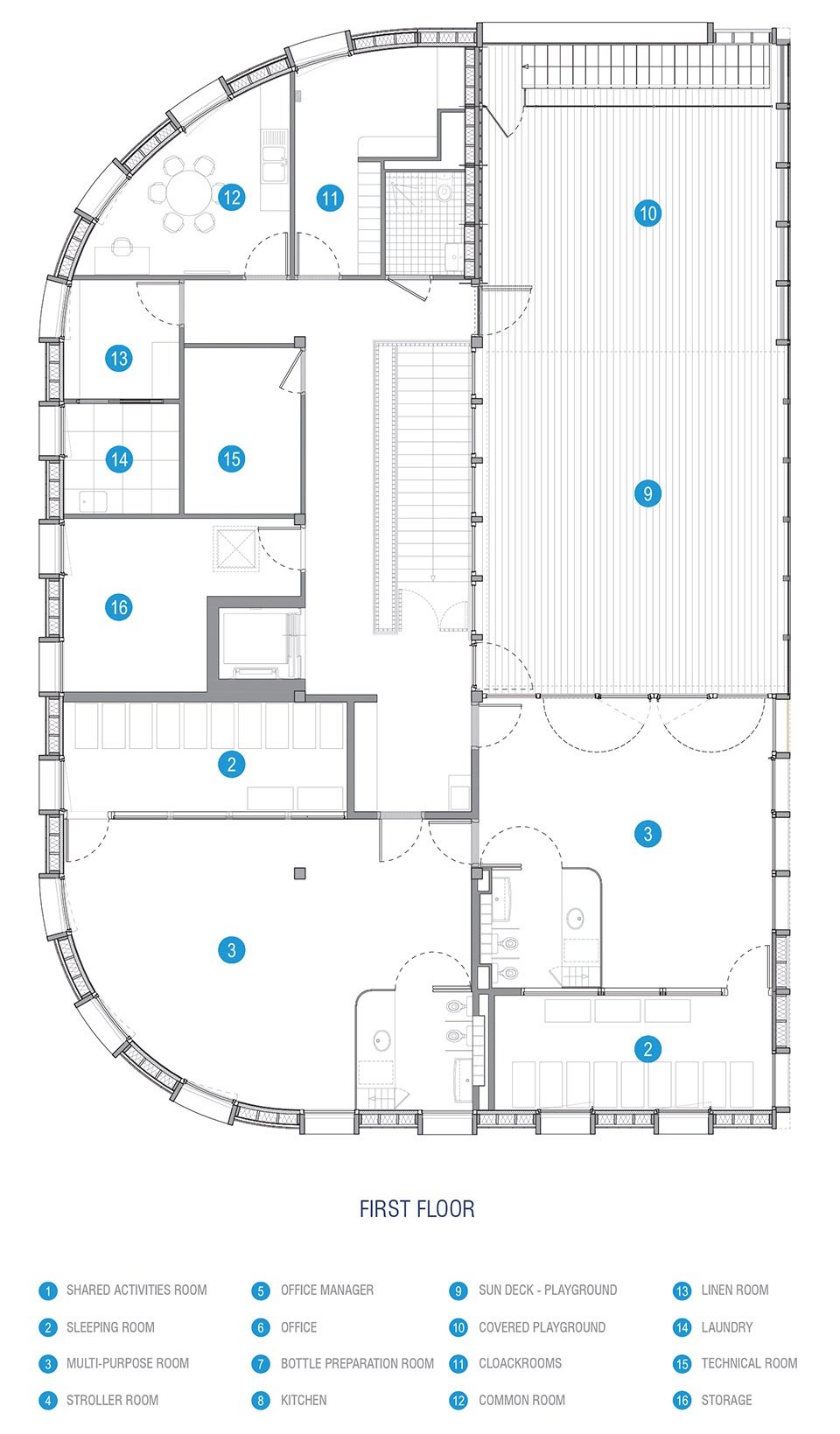
▼二层平面图,first floor plan © Janez Nguyen Architects

▼立面01,elevation 01 © Janez Nguyen Architects

▼立面02,elevation 02 © Janez Nguyen Architects

▼立面03,elevation 03 © Janez Nguyen Architects

▼剖面图,sections © Janez Nguyen Architects

▼构造细节01,details 01© Janez Nguyen Architects

▼构造细节02,details 02 © Janez Nguyen Architects

Project Name: Saint-Louis kindergarten, a wooden building in a heritage site
Office Name: Janez Nguyen Architects + Linia A&U
Office Website: www.janez-nguyen.com contact@linia-au.com
Social Media Accounts: janez nguyen architects (@janez.nguyen) • Photos et vidéos Instagram
Contact email: contact@janez-nguyen.com contact@linia-au.com
Firm Location: 5 rue de Charonne 75011 PARIS
Completion Year: 2021
Gross Built Area (m2/ ft2): 600 m2
Project location: Hôpital Saint Louis, 12 rue de la grange aux belles, Paris (75010)
Program: Kindergarten of 48 cribs
Lead Architects: Janez Nguyen Architects
Lead Architects e-mail: contact@janez-nguyen.com
Photographer
Photo Credits: Benoit Florençon
Photographer’s Website: Benoit Florençon – Architecture and Design photographer (format.com)
Photographer’s e-mail: bflorencon@gmail.com
More:Janez Nguyen Architects,更多过关于他们,请至:Janez Nguyen Architects on gooood