Anaago Bistro,选址重庆紫薇路,一个充满烟火趣味老城街区,是几里继Cancun Bistro之后,再一个城市街区改造设计实验点。作为紫薇路上所剩不多的店面之一,如何打造一个活力的社区集合点成为设计思路的发端。
Anaago Bistro in Chongqing’s Ziwei Road is a captivating city block and a new experimental site for urban reconstruction. The design aims to create a vibrant community gathering place.
▼门头,store front© DID STUDIO

01
[谐土]
与土地共生的原始村落
Dancing with the Land
阿纳果——“丽江最后一片净土”。
在纳西语里,阿那果的寓意为“一块美丽富饶的高地”。这里海拔约2800米,村里仅有32户人家,纳西族、汉族、白族、傈僳族、藏族、普米族等多民族在此和谐相处,隐世的环境和多民族的生活习俗编织出了一个有机开放的原始村落。
A-na-guo is often referred to as “the last pure land of Lijiang”.
A-na-guo means “beautiful and rich highland” in Naxi. With 32 households and 6 ethnicities, it offers a unique primitive environment.
▼理念来源,Source of conception © VARI几里设计

竹篾、原木、茅草、石块,这些来自自然界最原始的材料,勾勒出了阿纳果独特的建筑风格,彰显了人们对于环境和文化传承的尊重,反之,也为这个遗世独立的村落谱写出独特而生动的文化风情——Anaago Bistro的设计灵感就源于此。
Composed of primitive natural materials like bamboo and stones, Anaago’s unique architectural style showcases respect for the environment and cultural heritage. This style also inspires the design of Anaago Bistro.
▼理念来源,Source of conception © VARI几里设计

02
[落村]
现代城市里的竹编“村落”
Rhythm of the Village
狭长而精致的场地里,我们嵌入了四个有机的“部落盒子”,以其纯净而自然的材料为线索,构建了一个既错落又自然的社区村落。
In a refined narrow space, four organic “tribal boxes” were integrated using pure and natural materials, creating a natural and intricate community village.
▼理念演化动图,Concept evolution © VARI几里设计

竹编、原木和红洞石在碰撞间,交错而成一片神秘而自然的场景氛围,空间仿若一个开放的交响乐团,盒子和材料演奏一段段独特的旋律,交织着情感、人文和自然之美,将每一个Bistro村民紧密地联系在一起。
Bamboo, logs, and red stones intertwine into a natural and mysterious atmosphere, resembling an open symphony. The materials compose a unique melody of emotions, humanity, and nature, closely connecting every villager at the Bistro.
▼开放的入口空间,open entrance area© DID STUDIO

▼入口区域细部,details of the entrance area© DID STUDIO


“村落”的入口,传统有机的材料和当代的设计语汇对撞,构建出趣味横生的城市界面。被竹编包围的半开放式包间和特定比例的城市橱窗洞口,引导着室内外视线的自由交流。
Organic and modern materials meet at the entrance of the village. Bamboo weaves semi-private spaces, city windows frame views, bridging indoor and outdoor.
▼趣味横生的城市界面,organic and modern materials meet at the entrance of the village© DID STUDIO

漫步进入村落,映入眼帘的是竹编围合的包间,昏黄的灯光与竹编相得益彰,精致的竹质墙面以及柔和的木纹质感淡化了方形空间的刚硬感,注入村落温暖和柔美的气息。这个小小的盒子仿佛时空的过渡点,穿越其门槛,仿佛步入了村庄的自然梦境。
Entering the village, bamboo-woven private rooms with dim lighting and delicate walls soften the square space and infuse a warm, rustic atmosphere.This small box serves as a transitional point in time and space, where crossing its threshold is akin to entering a natural dream within the village.
▼被竹编包围的半开放式包间,bamboo weaves semi-private spaces © DID STUDIO

▼竹编围合的包间,bamboo-woven private room© DID STUDIO


包间对外的视线窗口仿佛电影银幕的透明视窗,为这个村落的“居民”带来跨越地理纬度的城市霓虹影像,让人在不经意的抬头间瞥见传统村落与现代都市的交汇。
The private room’s window offers a cinematic view, with urban neon lights spanning geographical distances, creating an immersive experience for the “village” residents.
▼包间内部,interior of the private room© DID STUDIO

▼包间对外的视线窗口仿佛电影银幕的透明视窗,the private room’s window offers a cinematic view© DID STUDIO

▼包间细部,details of the private room© DID STUDIO

▼家具与陈设细部,details of the furniture and objects© DID STUDIO

经过包间,眼前是一道悬空的竹编屏风墙,竹子的质朴和原木的沉稳再次交错在一起,细腻的纹理和木质窗口紧紧嵌合,隽永而自然。淡雅的灯光洒落,投射出柔和的影子,拂过竹面缓缓流淌,仿佛一个村落的独特气息在空气中弥漫。小小的木窗口在竹编墙面的点缀下,像自由的风一样穿梭其中,将轻盈自由之感传递至两个空间。
As you walk past the private room, you’ll come across a bamboo screen wall interwoven with logs. The wooden windows bring a sense of natural meaning, and the space is filled with serene flow as the light softly falls and casts shadows on the bamboo surface.The small wooden windows, punctuated by bamboo walls, allow free flow between spaces, conveying a sense of lightness and freedom.
▼竹编屏风墙,bamboo screen wall interwoven with logs© DID STUDIO


▼细腻的纹理和木质窗口紧紧嵌合,the wooden windows bring a sense of natural meaning© DID STUDIO



隐藏在村落深处的另一间包房,巧妙地融合了原木材质与场所结构。全木质包裹的墙面和顶部,以及精选的原木家具,将空间统一而和谐地呈现。独特的镜面和开窗立面设计,使得空间更加开阔通透,营造出自然村落风情的Bistro氛围。
A secluded private room in the village features a seamless fusion of logs and site structure, with wooden walls, roof, and furniture presenting a unified and harmonious space. The distinctive mirror and window facade design fosters an open and transparent environment, evoking a natural Bistro-style ambiance.
▼全木质包裹的墙面和顶部,wooden walls and ceiling© DID STUDIO

在Anaago的空间起承转合里,材料的混搭是最重要的角色,也是对“村民”的真挚体贴和尊重的表达。
The use of mixed materials in the Anaago space expresses consideration and respect for the “villagers”.
▼过渡空间中的材料混搭,the use of mixed materialsin transition space© DID STUDIO


03
[视瑰]
竹编、原木与红洞石的组合
Nature’s Treasures
Anaago的设计充满了云南的自然、原始和朴实的特点,其中材料的选择和混搭起到了重要作用:竹编、原木、红洞石等材料的混搭带来了充满生机和故事性的体验。
Anaago’s design embodies Yunnan’s natural simplicity. Mixing bamboo, logs, and red cave stone creates a lively and storied space.
▼隐藏光源,hidden light feature© DID STUDIO


竹编作为灵魂材料,为室内增添自然、轻盈和柔美的感觉,与其他材料完美融合,强化了整个设计的统一性和协调性。原木的温暖和舒适感增添了一丝空间历史感。火山石粗矿的质感和纹理碎拼出野性而别致的墙面背景。
Bamboo weaving adds a natural, delicate feel and blends well with other materials. Logs provide warmth and history. The rough and textured volcanic rocks form a unique wall background.
▼竹编肌理,bamboo texture© DID STUDIO


▼火山石肌理,rough and textured volcanic rocks © DID STUDIO

传统自然的材料和温暖内敛的灯光交汇,向空间注入一片柔和与神秘。红洞石、铸铁、纯木家具和装饰品的局部点缀,让空间更精致统一。村落的竹编材料和特殊照明设计,营造出柔和而神秘的光线场景。
The fusion of traditional natural materials and warm, subdued lighting creates a softer and more mysterious ambiance in the space. The use of red cave stone, cast iron, pure wood furniture, and decorations adds exquisite uniformity to the space. The bamboo weaving materials in the village, coupled with the unique lighting design, create a soft and mysterious lighting scene.
▼空间细部动图,details gif© DID STUDIO

Anaago的设计旨在将云南特色和美景纳入视野,将自然材料和现代建筑语汇相融合,营造出一个充满现代云南风情的城市小空间。在街区改造的过程中,几里以建筑、城市空间和人群尺度的交互为出发点,不断探索现代化的设计思路,为城市更新注入新的活力。
The design of Anaago aims to incorporate Yunnan’s unique features and beauty, blending natural materials and modern architectural vocabulary to create a small urban space full of modern Yunnan charm. The block renovation process takes the interaction between architecture, urban space, and people as its starting point, exploring modern design concepts and injecting new vitality into urban renewal.
▼门头夜景,night views© DID STUDIO

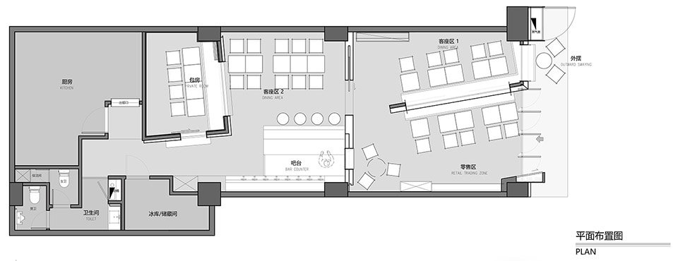
▼平面图,Plan © VARI几里设计

项目信息
项目名称:Anaago Bistro
项目地点:重庆市江北区紫薇路
项目面积:130平方米
项目类型:城市更新
完工时间:2022年10月
设计公司:几里设计
公司网站:https://www.vari-design.com/
联系邮箱:info@vari-design.com
主创建筑师:齐帆、杨丁亮
设计团队:牟羽、何琪
文案:姚小密
建筑摄影:DID STUDIO
Project information
Project name: Anaago Bistro
Location: Ziwei Road, Jiangbei District, Chongqing ,China
Area: 130㎡
Project type: City Renovation
Completion time: October, 2022
Design firm: Chongqing Vari Architectural Design Co., Ltd
Website: https://www.vari-design.com/
Design firm email: info@vari-design.com
Principal designers: Fan Qi, Dingliang Yang
Design team: Yu Mou, Qi He
Article: Y.M
Photography: DID STUDIO
More:VARI几里设计,更多关于:VARI Design on gooood