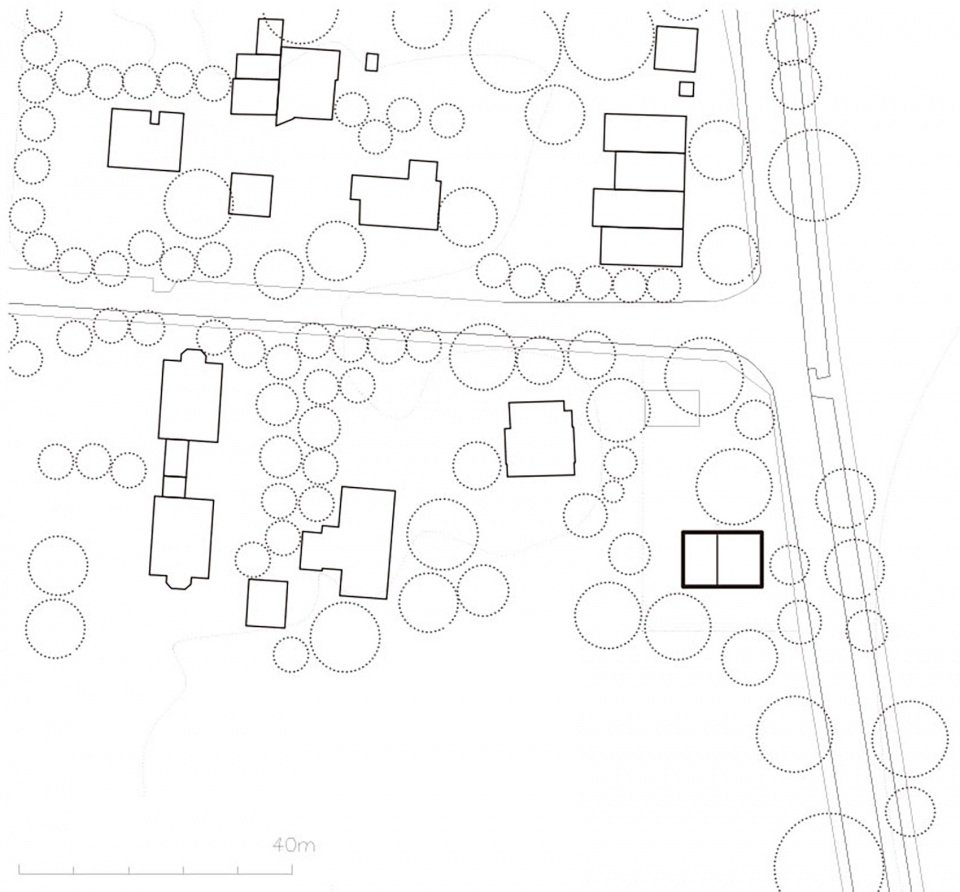
这座别墅位于一个居民区的角落,朝向Salève山脚下的乡村景观。它被安排在场地内的错开的位置,小心翼翼地呼应着邻近的20世纪早期建筑物。
This villa is located at the corner of a residential area and faces the rural landscape along the foot of the Salève. It is set in a staggered position on the plot so that it interacts only discreetly with the neighbouring early 20th century building.
▼远眺住宅,distant view of the residence© Joël Tettamanti

▼建筑概览,overview of the building© Joël Tettamanti

▼建筑立面,facade of the building© Joël Tettamanti

该项目被设计为一个宜居的构造,而非某种的强有力的形式。别墅让人想起日本花园中的亭子,它有三层堆叠抬升的钢筋混凝土楼板,由不同大小和朝向的面板来支撑。
The project was devised as a habitable structure rather than as a strong form. The villa, evoking the image of a pavilion in a Japanese garden, has three stacked, reinforced concrete raised platforms supported by panels of varying sizes and positions.
▼穿过花园的入口道路,the entrance pathway through the garden.© Joël Tettamanti

▼入口区域概览,overview of the entrance area© Joël Tettamanti

▼滴水嘴与蓄水池,gargoyle and water basin© Joël Tettamanti

▼外观一角,corner of the appearance© Joël Tettamanti

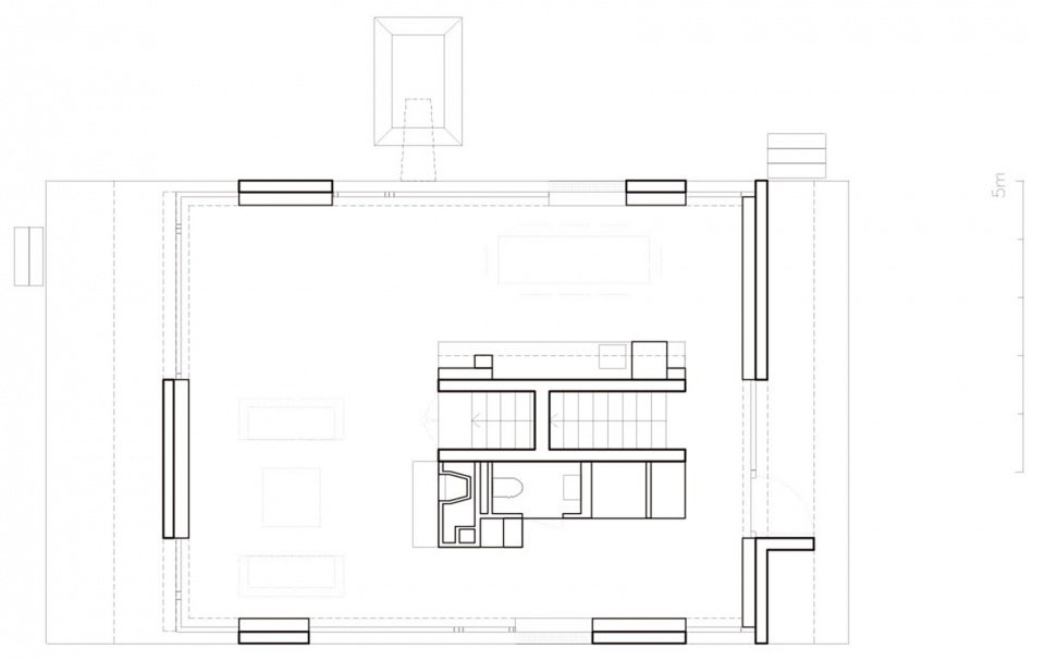
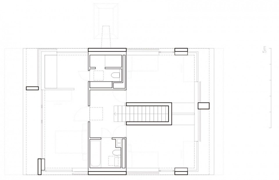
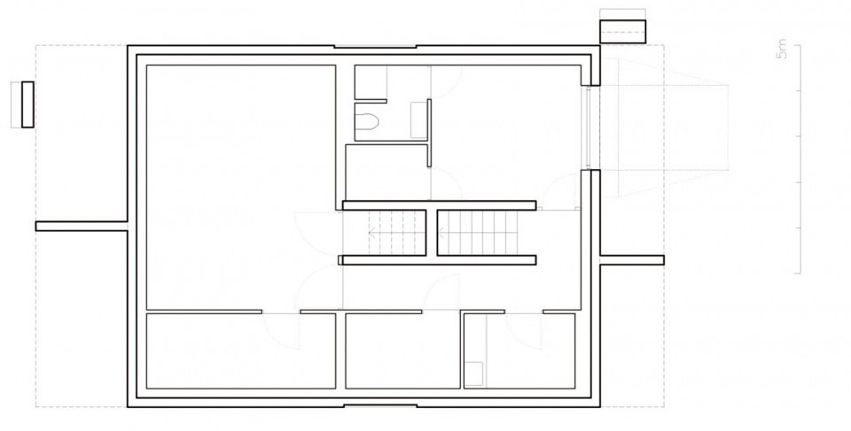
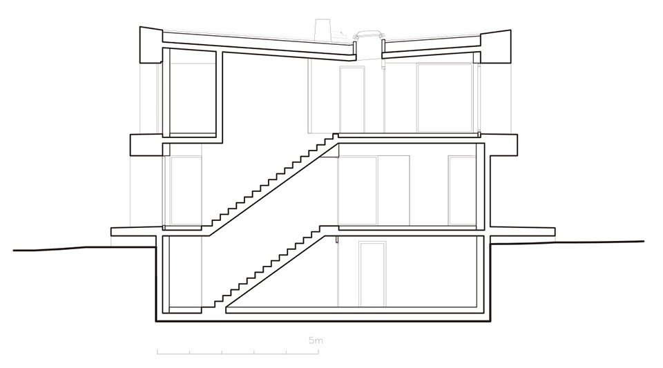
第一层楼板从地面浮现,下含地窖、设备用房和备用卧室。通过稍微抬高首层,它与花园建立了诗意的关系,同时赋予房子一种纪念碑式的特征。第二层是生活区,其上的第三层楼板以传统的方式覆盖着卧室。
The first platform emerges from the ground and contains the cellar, technical facilities and spare bedroom. By slightly raising the ground floor, it creates a poetic relationship with the garden, while at the same time giving the house a monumental character. On the second tier are the living areas, while the third one accommodates the bedrooms in a traditional manner.
▼室内概览,ground floor interior overview© Joël Tettamanti

▼起居室,living area© Joël Tettamanti

▼一层走廊,corridor on the ground floor© Joël Tettamanti

▼楼梯细部,detail of the staircase© Joël Tettamanti

▼从卧室望向楼梯间,view from bedroom to stairwell© Joël Tettamanti

▼卧室风景,scenery viewing from interior© Joël Tettamanti


▼卧室概览,overview of interior © Joël Tettamanti

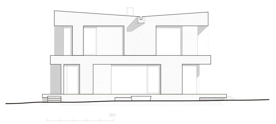
屋面层是一个向中心倾斜的内坡屋顶。中央的凹陷通过一条排水沟向外部探出,再现了滴水嘴的形象,并将雨水引入回收池。这个独特的屋顶将项目融入更广阔的景观中。第四块类似的抬升楼板是独立的,位于地块的边缘。它容纳了车库,并组织了穿过花园的入口。
The final level is an inverted roof that inclines towards the centre. The central fold is extended outwards by a channel that reinterprets the figure of the gargoyle and funnels rainwater into a recovery basin. This distinctive roof integrates the project into the wider landscape. A fourth, freestanding, yet similar raised platform is situated at the edge of the plot. It accommodates the garage and organises the entrance through the garden.
▼蓄水池细部,detail of recovery basin© Joël Tettamanti

▼隐于树林中的住宅,residence hidden in the wood© Joël Tettamanti

外部混凝土结构与内部保温层,与INGENI公司共同开发。
The exterior concrete structure, with internal insulation, was developed in conjunction with the company INGENI.
▼总平面图,site plan© Lacroix Chessex

▼首层平面图,ground floor plan©Lacroix Chessex

▼二层平面图,first floor plan©Lacroix Chessex

▼地下层平面图,underground floor plan©Lacroix Chessex

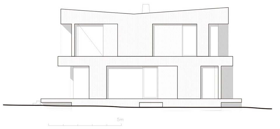
▼立面图,elevations©Lacroix Chessex




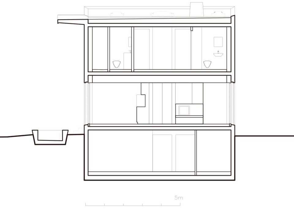
▼剖面图,sections©Lacroix Chessex


Location: Geneva, Switzerland
Date: 2011-2014
Type: Direct commission
Gross floor area: 150 m²
Award: The best single family house public award, Das ideale Heim, Switzerland, 2018
Team: Simon Chessex, Hiéronyme Lacroix, Ana Sa
Photo credit: Joël Tettamanti
More:Lacroix Chessex,更多关于:Lacroix Chessexon gooood