与现代建筑的设计不同,当需要对一做拥有120年历史的老建筑进行改造翻新时,面对时间与历史的积淀,作为建筑师的我们很难确定或估计它的价值。
As with modern architecture, if it is a 120-year-old building with accumulated time and history, we have difficulty in daring to determine or estimate its value.
▼建筑外观,exterior view© Kim Han-eol

▼建筑外观细部,details of exterior© Kim Han-eol



因此,本项目的首要计划是在时间的积淀上创造新的品牌故事,将其作为一处彰显历史的文化空间,而不是抹去时间和过去的痕迹,或者用全新的设计语言来取代它们。
So, we have planned with the highest priority on establishing a new brand story based on the accumulated time and establishing it as a cultural space, rather than erasing the traces of time and the past or replacing them with completely new ones.
▼森林大厅一层,1F of the forest hall© Kim Han-eol


▼森林大厅一层细部,details of the forest hall 1F© Kim Han-eol

▼森林大厅二层,2F of the forest hall© Kim Han-eol


▼玻璃花窗,floral glass window© Kim Han-eol

为了实现这一目标,建筑师为本项目构想了一段拥抱时间的独特故事,这种由历史建筑营造出的体验是新建筑无法比拟的。此外,集体记忆的凝聚也是一种需要得到保存的普遍价值,这同时也是文化导向的结果。
For that reason, I’ve thought that a unique story embracing time could not be felt in a new building, furthermore, that the condensation of collective memories would be a universal value to be preserved and a result of culture.
▼森林景观空间入口,entrance of the “MADE LIM” space© Kim Han-eol

▼森林景观空间,“MADE LIM” space© Kim Han-eol


▼充满绿植的室内空间,interior spaces filled with greenery © Kim Han-eol

礼堂采用了砖材,彩色玻璃,以及教堂中现有的装饰材料与结构特征。这种设计策略不仅具有极强的历史保护意义,同时从经济和环境的角度来看也是非常可取的。
Using bricks, stained glass, and structures used as auditoriums, which are the existing finishing materials of the church, is not only meaningful in terms of preserving history, but also desirable from an economical and environmental point of view.
▼森林大厅三层,3F of the forest hall© Kim Han-eol



▼楼梯间,staircase© Kim Han-eol

本项目中包含“MADE 林”主题空间以及“may-dream”主题空间,分别体现了该品牌作为文化森林的理念,以及人类希望回归自然中休息的愿望,与对自然的祝愿。
This place contains Made forest “MADE 林”, which embodies the brand’s philosophy as a forest of culture, and may-dream, a brand that embodies the essence of rest and wishes for nature in the DNA of humans who wish to return to nature.
▼森林大厅屋顶阁楼,roof floor of the forest hall© Kim Han-eol



▼森林大厅地下一层,B1 of the forest hall© Kim Han-eol


森林大厅(主厅)由面包店和餐厅、表演厅组成,而独立森林屋(私人住宅)和遗产厅(达摩厅)则由体验式展览空间组成。
Forest Hall (Main Hall) is composed of Bakery & Dining, Performance Hall, while Detached Forest House (Private House) and Heritage Hall (Dharma Hall) consist of experiential exhibition spaces.
▼独立森林屋,Detached Forest House © Kim Han-eol



▼森林屋一层展览空间,1F exhibition© Kim Han-eol

▼森林屋一层展览空间,1F exhibition© Kim Han-eol

▼森林屋二层展览空间,2F exhibition© Kim Han-eol

古老的历史和文化的痕迹存在于当下,层层记忆和时间的痕迹有时会反映在我们的感知和生活中。许多建筑师,包括我们,生来就注定要抹去过去的痕迹。无论如何,我们希望通过这个改造项目,让过去和现在可以共存,它将代表Bumchun品牌的良性生态循环系统,同时为人们创造出一处治愈心灵、放松身心的梦想空间。
There exist traces of old history and culture in the present time, and the traces of layers of memories and time are sometimes reflected in our perception and life. Many architects, including us, were born with the fate of erasing the traces of the past. Anyway, we hope that the past and the present time can coexist through this project of regeneration architecture representing the virtuous cycle ecosystem of Bumchun, which dreams of a space of healing and recovery.
▼遗产大厅内部,interior view of the heritage hall© Kim Han-eol

▼遗产大厅外观,exterior view of the heritage hall© Kim Han-eol

▼建筑外观夜景,exterior view at night© Kim Han-eol


▼总平面图,Site Plan© None Space

▼森林大厅地下一层平面图,Floor Plan – Hall of the Forest B1© None Space

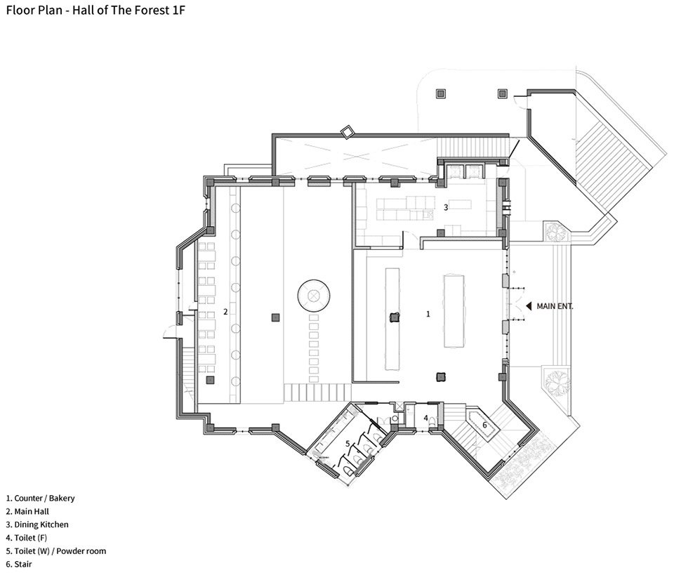
▼森林大厅一层平面图,Floor Plan – Hall of the Forest 1F© None Space

▼森林大厅二层平面图,Floor Plan – Hall of the Forest 2F© None Space

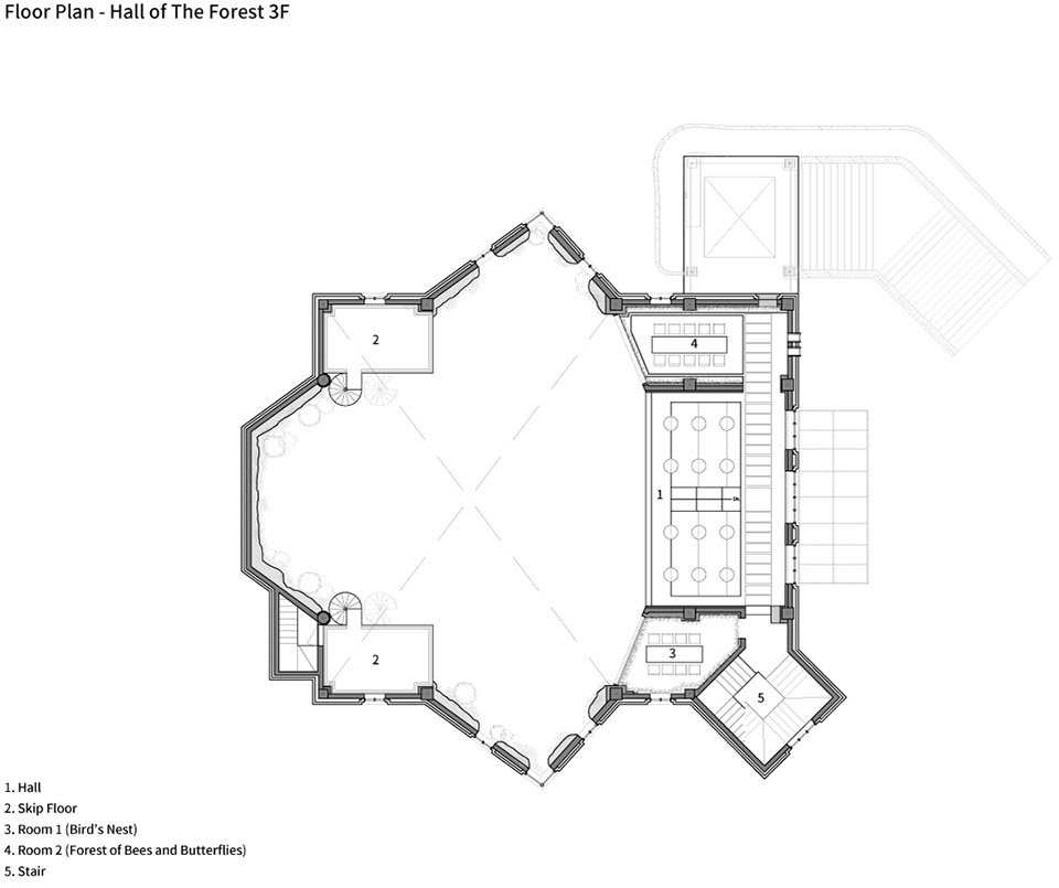
▼森林大厅三层平面图,Floor Plan – Hall of the Forest 3F© None Space

▼森林大厅顶层阁楼一层平面图,Floor Plan – Hall of the Forest Roof Top 1F© None Space

▼森林大厅顶层阁楼二层平面图,Floor Plan – Hall of the Forest Roof Top 1F© None Space

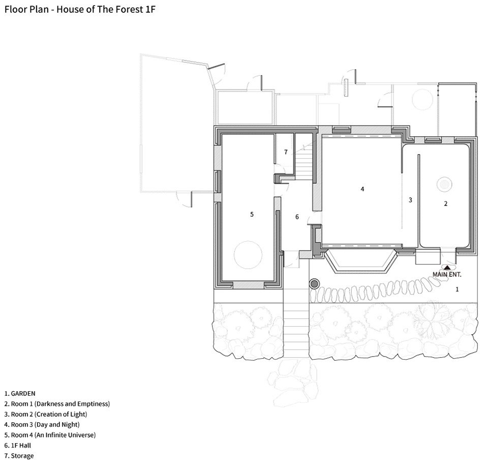
▼森林屋一层平面图,Floor Plan – House of the Forest 1F© None Space

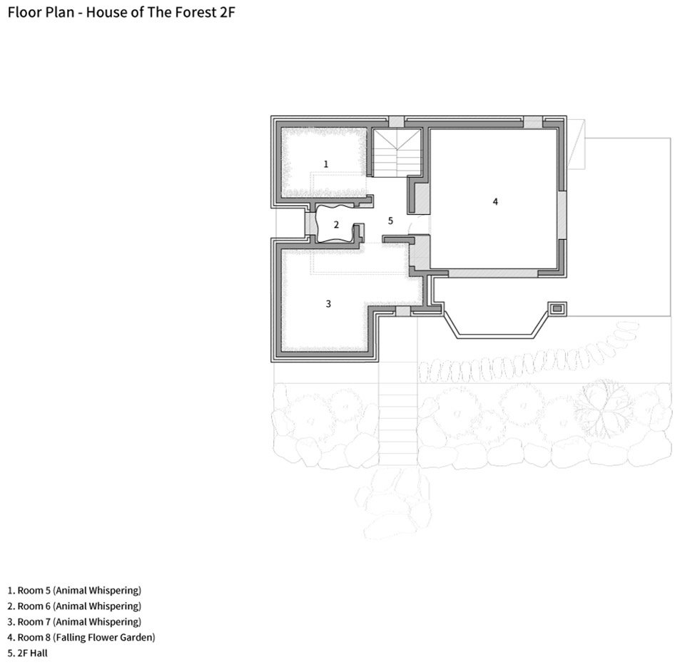
▼森林屋二层平面图,Floor Plan – House of the Forest 2F© None Space

▼遗产大厅平面图,Floor Plan – Heritage Hall© None Space

Design: None Space / Shin Jung-bae
Design Team: None Space / Keem Moon-ha, Lee Yeon-je, Ham So-yeon, Lee Yoon-jeong, Cha Ho-hyeon, Kim Do-hwan, Seo Won-hee
Construction: None Space / Keem Moon-ha, Park Ji-hoon, Ham So-yeon, Seo Won-hee, Cha Ho-hyeon, Kim Do-hwan
Branding: None Space / Ryu Hyung-il, Choi Da-yeong
Location: 875-1 Eulwang-dong, Jung-gu, Incheon, Korea
Area: 1570.27m2
Floor: GRC, Black Stainless, Microcement, Bean gravel, Tile
Wall: GRC, Stained Glass, Mirror, Black Mirror, Stucco Paint
Ceiling: GRC, Black Mirror, Stained Glass, Stucco Paint
Photograph: Kim Han-eol
More:None Space,更多关于:None Spaceon gooood