Serif公寓和The Line酒店是一座新建的酒店和住宅楼综合体,占据了旧金山联合广场、 Tenderloin区以及南市场区交界处三角形地块的大部分。建筑占地3.4万平方英尺(约3159平方米),包含12个楼层,与历史悠久的沃菲尔德剧院同处一个街区。
Serif and The Line Hotel is a new 12-story mixed-use hotel and residential building occupying the majority of a triangular block where San Francisco’s Union Square, Tenderloin and South of Market districts meet. The 34,000 sq. ft. site shares the block with the historic Warfield Theater.
▼场地环境,Context ©Jason O’Rear

▼项目鸟瞰,Aerial view©Jason O’Rear

项目的尺度和美学设计与旁边Tenderloin区和市场街的建筑形成关联。建筑的体量构成解决了不规则形状场地带来的比例挑战,同时为特克街的公共领域开辟出了宽敞的室外广场。
The scale and aesthetic of the project are designed to relate to the context of adjacent buildings in the Tenderloin and along Market Street. The building massing addresses the challenging proportions of the irregularly-shaped site while also carving out a generous outdoor plaza for the public realm on Turk Street.
▼街道视角,View from the street©Jason O’Rear

▼建筑外观,Exterior view©Jason O’Rear


▼临街立面,Building facade facing the street©Jason O’Rear

从周边区域的砖石建筑中汲取灵感,该项目采用了玻璃纤维强化混凝土覆层,立面的图案和纹理特征则是对附近建筑的传统方形窗户的现代诠释。外立面被设计成环绕建筑的连续外壳,通过窗户开口和面板尺寸的变化来对应酒店和住宅空间的室内单元。
Glass fiber reinforced concrete cladding takes cues from the masonry buildings of the surrounding area, while the patterning and textured character of the façade offers a contemporary interpretation of traditional punched windows in the neighborhood. Designed to read as a continuous wrapper around the building, the façade also employs variation and modulation in window openings and panel sizes to correspond to interior units for the hotel and residential spaces within.
▼建筑外观近景,Close-up view©Jason O’Rear

▼立面细节,Detailed view©Jason O’Rear


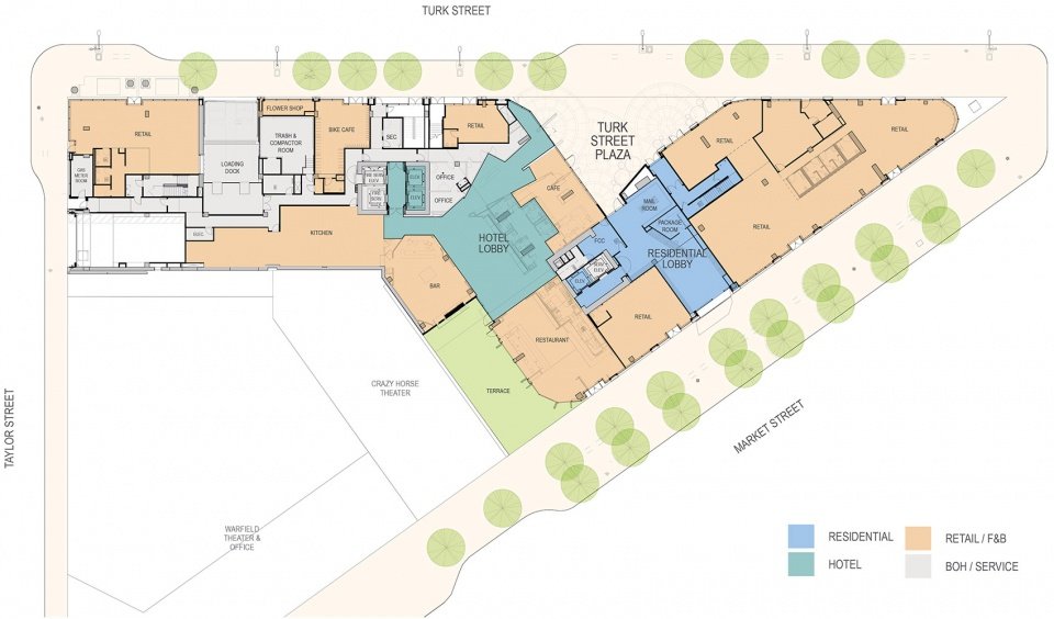
住户可以从市场街或特克街进入主厅。酒店大堂也可以从这两条街道进入,并且提供了中市场区和Tenderloin社区之间的连接。沿特克街重建和拓宽的人行道为聚会、展览和小型表演提供了灵活的户外空间。一系列带有落地窗的商店空间提供了与街道的透明衔接。
Residents can access the main lobby from either Market Street or Turk Street. The hotel lobby, also accessible from either street, provides a mid-block connection between the Mid-Market and Tenderloin neighborhoods. Reconstructed and widened sidewalks along Turk Street offer flexible outdoor spaces for gatherings, exhibits, and small performances. A series of retailers with storefronts that feature floor-to-ceiling windows provide a transparent connection to the street.
▼屋顶露台,Roof terrace©Jason O’Rear

▼屋顶休闲室,Lounge area on the rooftop©Jason O’Rear



▼公寓大厅入口,Entrance to the main lobby©Jason O’Rear

▼公寓大厅空间,Main lobby space©Jason O’Rear


▼收信室,Mail room©Jason O’Rear

▼公寓走廊,Corridor©Jason O’Rear


▼健身房,Fitness room©Jason O’Rear


Serif公寓和The Line酒店包含242套住宅、232间酒店客房以及各类零售和社区设施空间,由当地非盈利组织Magic Theatre经营。往后它们还将推出专注于社区的Magic Lab项目,旨在实现年轻人、教育、社区塑造、劳动力发展和艺术的连接。
Serif and The Line Hotel includes 242 residences, 232 hotel keys, retail, and community facility space run by local non-profit Magic Theatre, who will launch its community-focused Magic Lab aimed at bringing together youth, education, community-building, workforce development, and the arts.
▼公寓内景,Residence interior view©Jason O’Rear



▼室内局部,Interior view©Jason O’Rear


▼街区中的建筑,The building in its neighborhood©Jason O’Rear

▼首层平面图,Ground floor plan©Handel Architects

▼二层平面图,Level 02 plan©Handel Architects

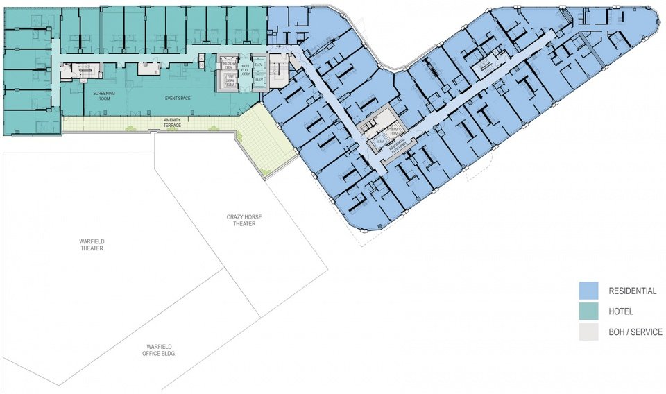
▼标准层平面图,Typical floor plan©Handel Architects

▼景观布置平面,Landscape plan©Handel Architects

Project Team:Glenn Rescalvo, John Ishihara, George Tolosa, Julia Leister, Ashton Kidd, Brian Lee
Design Partner(s)
Residential Interior Design:IwamotoScott
Hotel Interior Design:Knibb Design
Landscape Design:SurfaceDesign
Photography:Jason O’Rear
More:Handel Architects。更多关于他们:Handel Architectson gooood