杭州万科天空之城,一个极具辨识度的区域,紧邻社区与城市交通且兼具丰富的商业资源。MDO的新项目体育中心落位于此。
设计希望将体育中心打造为一个促进社区凝聚力和生活活力的运动场所,以色彩辨识和像素视觉为特色,创造非传统的、值得打卡和分享的空间身份,同样使空间可以承载社区附属的社交功能。
充满活力的像素编码将运动动态、人物形态等编织为具有传播性的视觉符号与色彩空间相结合。这些视觉标识作为一个统一的元素,将不同的空间联系在一起,为整个体育中心创造了一个有凝聚力的视觉语言,引导了空间印象之间的转换关系。
▼社区型天空之城体育中心涵盖了分别坐落于不同的楼层的篮球馆,体育教室,游泳馆以及屋顶足球场©吴鉴泉

▼概念手稿 ©Justin Bridgland

▼图形设计 ©art/graphics service

地下拳击空间
B1 Underground Boxing
负一层的电梯厅被定义为地下拳击空间由擂台式灯光和勇敢无畏的红色为特色。
▼B1拳击空间©吴鉴泉

能量空间 & 引力空间
1F Energy World & Gravity World
一层由能量空间与引力空间组成。MDO摒弃了电梯厅玻璃幕墙把空间归还于社区,营造室内外的联动。接待中心、能量世界等向外可渗透为日常交流、自发和非正式活动以及休息的开放式社区空间。向内则被视为 “Non-Place”,即不是目的地而是经过空间的地方。MDO将这些功能性和高度视觉化的空间渲染为短暂的公共场所,利用观者对形状和空间的感知,以昭示性的灯光去强调建筑的入口,灰色水泥漆、slogan和像素视觉为特征,重新定义了室内运动场的传统面貌。具有动态感受的像素图形突出了此楼层的运动类别。
▼一层电梯厅作为通过型的公共空间,利用昭示性的灯光去强调建筑的入口©吴鉴泉

▼向街道开放的服务窗口使得一系列活跃、多孔的城市边界在此处连接©吴鉴泉

能量世界前厅区域增设了服务窗口和锁柜,为运动者和街道居民带来更便捷的能量补给、存储和器材租赁功能。
▼物品存储区©吴鉴泉



▼电梯厅细节©吴鉴泉


内馆包含了篮球场、羽毛球场和攀岩墙。篮球场被打造为一个能够专注于运动本身的场地,两侧墙面运用半通透的slogan横幅去强调空间的稳定性并聚焦视觉,正前方的运动图形指引着投球的方向。

▼不同的球场彼此并排放置,使区域保持开放,从事不同运动的人们可以看到彼此。承重柱做软包装饰,以柔化边角,防止运动时的意外磕碰©吴鉴泉

体育项目培训教室
2F The Bright Track
二层多为体育项目培训教室,设计以明亮黄打造空间辨识度。交通空间以跑道为设计概念,融入了阵列灯光与奔跑的图形,激活二层空间的活力。跑道可被视为随机的“运动启动”区,助益热身,将无意识的培养人们以更安全的方式进入正式的训练状态。

▼二层交通空间的墙面图形©吴鉴泉

▼洗手间也保持着像素视觉和色彩的延续©吴鉴泉

水世界
3F Water World
三层的水世界则提炼蓝色系材质以表达游泳馆的功能属性,接待区以浅色发光盒子的形式置入于空间中为到访者提供视觉的引导。
▼游泳池的接待区犹如发光盒©吴鉴泉



泳池区域天花运用泛光照明的形式为空间带来更为柔和的运动体验。更线性的“L型”开窗减少了视线阻挡,提供了室内和室外空间之间的连续感、轻盈感。更衣室则延续了“Non-Place”理念,以灰色作为过渡空间的视觉语言。



▼延续了“Non-Place”理念的更衣室,以低调的灰色为空间的视觉语言©吴鉴泉

屋顶足球场
4F Soccer Field
四层作为屋顶足球场,由绿色定义。色彩和视觉传达的感官力量为体育中心带来了积极的运动氛围。


▼1F平面图©MDO木君建筑设计

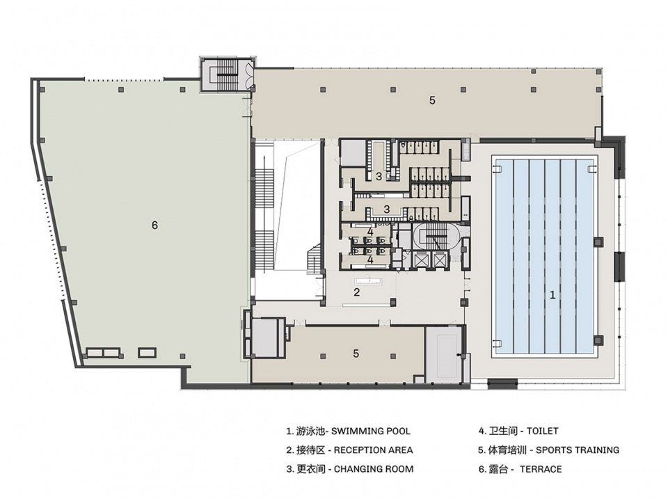
▼2F平面图©MDO木君建筑设计

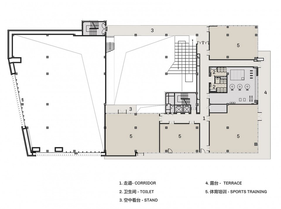
▼3F平面图©MDO木君建筑设计

▼4F平面图©MDO木君建筑设计

项目名称|地铁·万科天空之城体育中心室内设计
项目面积|2000㎡
项目地址|杭州市余杭区余杭塘路天空之城
设计范围|室内设计、视觉平面设计、灯光设计
设计单位|MDO木君建筑设计
设计总监|Justin Bridgland、徐伩君
主创设计|唐立
参与设计|夏胜男、曹佳雯、刘雄杰、虞梦雯、陆娇桦
视觉合作|art/graphics service
完成时间|2022年10月
空间摄影|吴鉴泉(Vincent Wu)