幼儿园是小朋友与世界建立基础关系的场所,与家庭不同,它是我们第一次在家以外独自生活的地方,也是一个与他人和环境建立个人联系的地方。我们相信,幼儿园是具有特殊性的建筑,其主要的功能是让孩子们感受到这个世界是美妙而有趣的。
Kindergartens are buildings where small children develop the most fundamental relationships with the world. Unlike home, it is a place where one is on their own for the first time outside the safety of family and where one makes individual connections with people and the environment, often for the first time in their lives. We believe that kindergartens should be extraordinary buildings whose primary function is to give children a sense that the world is a wonderful and fun place to live in.
▼项目外观概览,Overall view © BoysPlayNice

▼鸟瞰,Aerial view© BoysPlayNice

在Jablonec,我们大胆地设计了幼儿园的扩建部分,而孩子们的乐趣一直是我们评判设计的主要标准。我们想象着孩子们可以通过浴室在建筑的新旧部分之间奔跑,那场景该是多么有趣。我们也想让孩子们可以从扩建的部分爬上宽阔的混凝土平台,在安全又自由的环境下玩耍。屋顶上设置了另一个游戏平台,从这里可以看见四周优美的风景。此外,一座滑梯连接了幼儿园内部的各个楼层,小朋友们可以利用它偷偷溜出建筑一会儿,然后再咯咯地笑着跑回来。
In Jablonec, we designed the kindergarten extension boldly, and in such a manner that we could always take pride in saying that the main criteria by which we judged the design was the fun for the children.We pictured how fun it would be to run around between the old and the new part of the building through the bathrooms. We wanted to make it possible to climb out of the extension onto a large concrete terrace, where the children are safe and at the same time have as much freedom as possible. We put another play terrace on the roof because the view from the roof is beautiful. We connected the floors inside the kindergarten with a slide, which the children use to leave the building for a moment without asking and then return to it giggling.
▼扩建部分的立面,Facade of the extension© BoysPlayNice

▼建筑外观,Exterior view© BoysPlayNice

▼新旧建筑在首层和二层相连,Aerial view: the extension is connected to the historic kindergarten building on the ground and second floor© BoysPlayNice

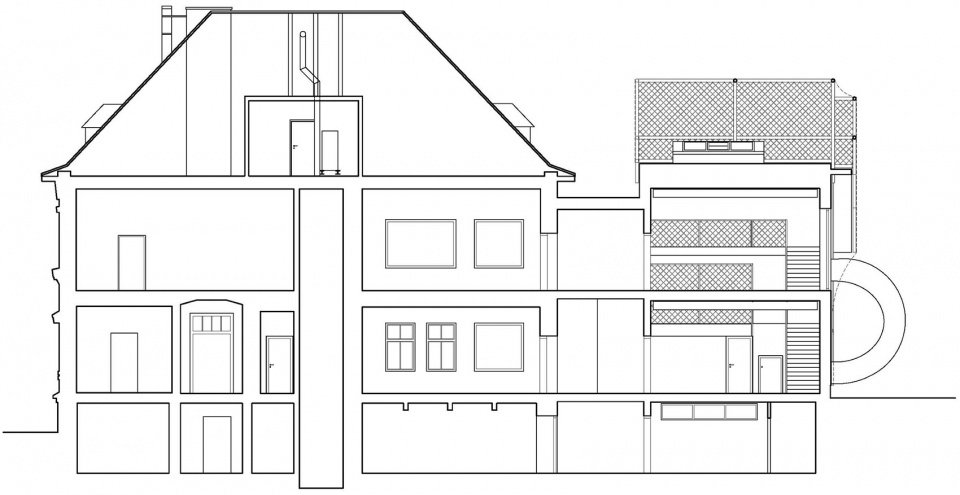
建筑的内部是一体化的大空间,从垂直方向上分为四层,包括首层和三个中间层,楼梯中庭的顶部开有巨大的天窗。每个中间楼层都有不同的氛围和形式,提供了消磨时光的空间。孩子们总是可以看见彼此,而如果他们想要玩捉迷藏游戏,也同样可以找到很多可以躲藏的地方。
The interior space is in fact one large room split vertically into four levels. the building is vertically divided into a ground floor and three intermediary floors arranged around a staircase and a void, above which is a large skylight in the roof. On the intermediate floors there are spaces for children to spend time, each intermediate floor has a different atmosphere and form to stimulate the children’s minds in a different way. The children can always see each other, but they can also hide in a number of places if they want privacy for their mischief.
▼首层空间,Ground floor© BoysPlayNice

▼中间层视角,View from theintermediary floor© BoysPlayNice

▼每个中间楼层都有不同的氛围和形式,Each intermediate floor has a different atmosphere and form© BoysPlayNice



▼楼梯,Staircase© BoysPlayNice


▼衣帽间和滑梯,Locker room and the slide© BoysPlayNice

▼滑梯视角&洗手间,View from the slide & toilet© BoysPlayNice


扩建部分是一个由钢筋混凝土制成的双层建筑,它位于历史悠久的幼儿园大楼旁边,其形式与材料均与既有建筑形成鲜明的对比。新建筑呈现为一个简单的“晶体”,带有数个被不锈钢网包裹的突出部分。
The extension of the Montessori Kindergarten in Jablonec nad Nisou is a two-story building made of reinforced concrete. It stands next to a historic kindergarten building and its form and material contrasts with this larger building. It is a simple prism with a few protrusions, which is wrapped entirely in stainless steel mesh.
▼混凝土平台,Concrete terrace© BoysPlayNice


▼底层灰空间,Grey space© BoysPlayNice

扩建的部分在一层和二层与既有建筑相连,从一层可以直接进入停车场上方的带顶混凝土游戏平台;从二层则可以通过户外滑梯迅速地通往一层。在第三个中间层,带有户外楼梯的过道连接了屋顶平台,后者安装有安全网,为儿童提供了大型的夏季游乐场。扩建后的幼儿园可以比原先多容纳一个班级。
The extension is connected to the historic kindergarten building on the ground and second floor. From the ground floor there is direct access to the concrete sheltered play terrace above the car park. From the second floor, an outdoor slide leads back to the ground floor, which children can use to speed up their way down. From the third intermediate level there is a doorway with outdoor staircase leading to the roof terrace. This is fitted with a safety net and can become a large summer playground for children. The extension increases the capacity of the kindergarten by one class.
▼屋顶露台,Roof terrace© BoysPlayNice

▼户外楼梯,External staircase© BoysPlayNice

▼屋顶天窗,Skylight© BoysPlayNice

▼夜间鸟瞰,Aerial view in the evening© BoysPlayNice

▼场地平面图,Site plan

▼地下一层平面,Partially below ground floor

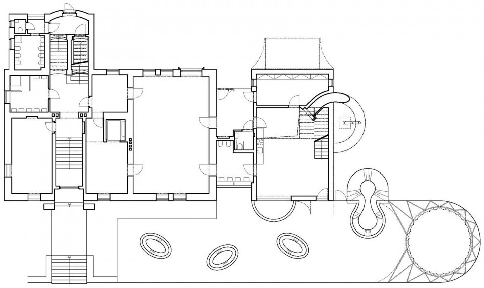
▼一层平面,1st floor plan

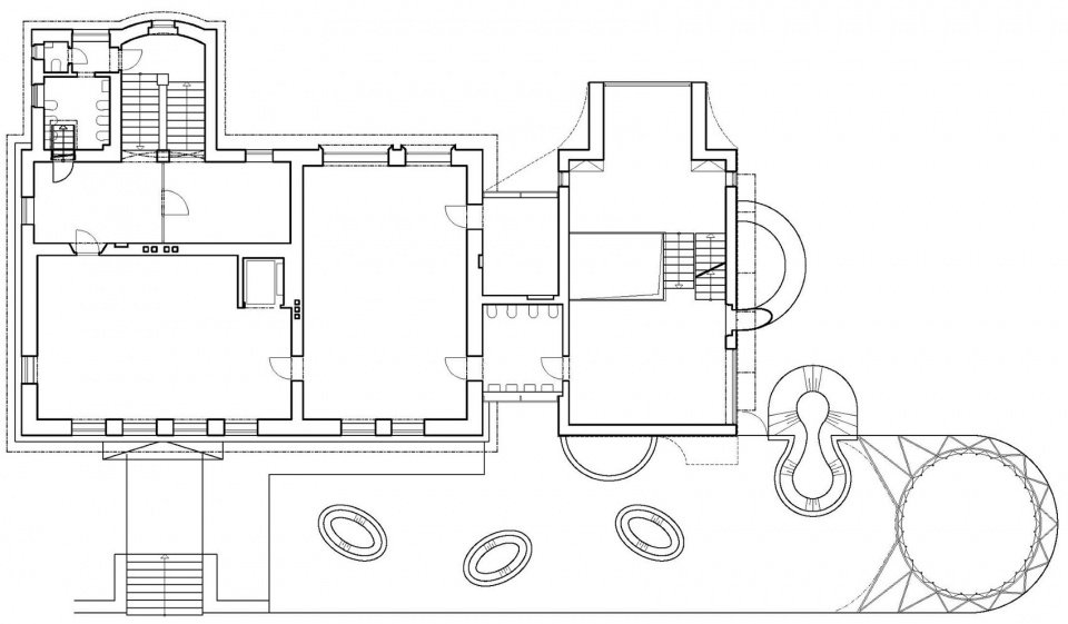
▼二层平面,2nd floor plan

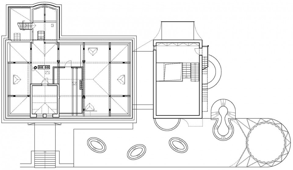
▼三层平面,3rd floor plan

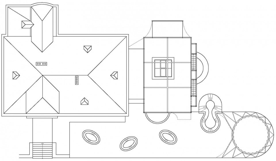
▼屋顶平面,Roof plan

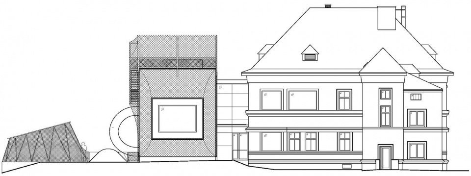
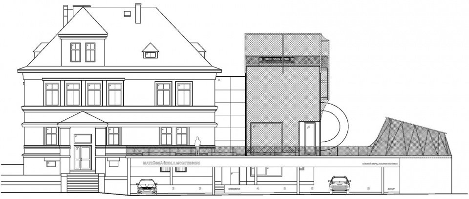
▼北立面图,Elevation north

▼南立面图,Elevation south

▼东立面图,Elevation east

▼剖面图1,Section 1

▼剖面图2,Section 2

Project name: Montessori Kindergarten Jablonec nad Nisou
Studio:
Mjölk architekti
Projektový atelier David
Contact: E-mail info@mjolk.cz
Website www.mjolk.cz
Social media www.instagram.com/mjolk_architekti
www.facebook.com/Mjolk-architekti-247812933403
Project location:Zámecká 10, 466 06 Jablonec nad Nisou
Project country:Czech Republic
Project year:2016–2020
Completion year: 2020
Built-up Area: 103 m² extension
238 m² reconstruction
Gross Floor Area:212 m²
Usable Floor Area:160 m²
Plot size:2264 m²
Client:Statutory City of Jablonec nad Nisou
Project website:www.montessori-jbc.cz
Photographer: BoysPlayNice, info@boysplaynice.com, www.boysplaynice.com
Collaborator:
Documentation for building permits and implementation documentation:
Projektový atelier DAVID, www.atelierdavid.cz
Construction contractor: Termil, www.termil.cz
Interior contractor: CNC studio, www.cncstudio.cz
More:Mjölk architekti。更多关于:Mjölk architekti on gooood