本项目坐落于墨西哥图卢姆南部AldeaZamá的玛雅雨林中,由Espacio18 Arquitectura事务所与来自加拿大渥太华的年轻夫妇Adrian和Andrea合作设计。建筑的设计灵感来源于尤卡坦半岛神奇的苏伊顿天坑(Cenote Suytun),这座神秘的天坑深深抓住了这对夫妇的心,因此,他们决定建造一座能够体现该地区自然美景和空间品质的住宅。
Situated in the heart of the Mayan jungle in Aldea Zamá, Tulum. The villa was created by Espacio18 Arquitectura, in collaboration with Adrian and Andrea, a young couple from Ottawa, Canada. The inspiration came from the magical Cenote Suytun in Yucatan that captured their hearts, and they decided to create a home that embodied the natural beauty and spatial quality of the region.
▼别墅外观,exterior view of the villa© César Béjar

▼别墅入口,entrance of the villa© César Béjar

Cava别墅的重点在于感官体验,设计旨在为居住者创造出独特且难忘的居住氛围,让人们沉浸在这个放松舒适、充满灵感、关注个人成长的空间中。别墅的建筑理念灵感来自于苏伊顿天坑,设有玻璃底的游泳池将自然光线渗透到室内空间中。因此,别墅的奢华之感是通过自然赋予的,而这种感觉也增强了建筑与周围环境的联系。
Villa Cava is a sensory experience, designed to offer a unique and unforgettable stay for guests. The project was created with the intention of bringing people together in a space that offers rest, inspiration, and personal growth. The villa features an architectural concept inspired by a cave (cenote) with natural overhead lighting provided by a glass-bottom pool. The luxury is given through nature, providing a connection with the surrounding environment.
▼二层户外泳池与平台,outdoor pool and terrace on the upper floor© César Béjar

在精心的设计下,建筑与现有的景观融为一体。别墅的形体轮廓受到当地规范和现有树木的影响,同时周边茂盛的丛林也保证了别墅的隐私。从外观上看,这座如同坚固堡垒般的野兽派建筑由原始木材模板与混凝土浇筑而成,徐徐展开的体量创造出雕塑般的美感。这种选材策略不仅考虑到了当地潮湿多雨的气候以及飓风的威胁,同时也将建筑与周围自然环境融为一体。
The house was carefully designed to blend in with the existing landscape. The construction regulations and existing trees influenced the outline of the house, while the jungle views were considered to ensure complete privacy. The brutalist-inspired fortress is made of raw wood-formed concrete, which is slowly uncovered to reveal itself as a carved sculpture. The materials were selected to harmonize with the immediate context, considering the humid and rainy climate, as well as the potential for hurricanes.
▼由入口庭院看门厅,
viewing the lobby from the entrance yard© Espacio 18 Arquitectura

▼由另一侧庭院看门厅,viewing the lobby from other courtyard© César Béjar

别墅的室内设计由Kayla Pongrac操刀,高品质的设计为别墅营造出高端酒店级别的舒适生活氛围。可以说,Cava别墅是一座可以居住的雕塑,围绕两棵现有树木构建的混凝土大门将居住者引导至门厅区域。自然光线穿过透明的游泳池底部洒落在大厅里,在墙壁上投射出变化的水影与光影,营造出温暖亲切的室内氛围。
The interior design of Villa Cava, created by Kayla Pongrac, is a sight to behold. It transforms the project into a highly livable, hospitality-grade home. The house is a habitable sculpture, discovered through a concrete portal built around two existing mature trees that leads to the lobby area. This area is illuminated from above through a pool, providing a warm welcome with the effects of water and light on the walls.
▼门厅,the lobby© César Béjar

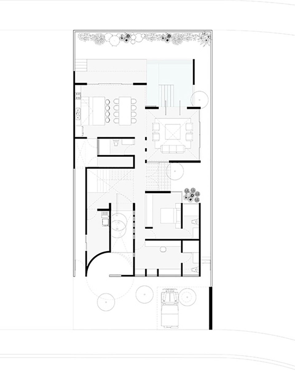
底部楼层包含了一间书房、一处开放式的厨师厨房,以及一处直接通往游泳池的大型生活社交区域。空间的设计旨在激活人们的多重感官,层高的变化让人们在探索不同空间时产生豁然开朗的感觉。上部楼层则为私人区域,容纳了一系列客卧以及层高高达30英尺(约9.14米)的主卧室。可观的层高与精心布置的天窗使整个房间笼罩在自然光线之中。20×20英尺(约6.09米)的方形单格窗创造出一幅自然的“画卷”,为室内引入了一览无余的丛林景观。
The ground floor boasts a study, an open-concept chef’s kitchen, and a large social area that opens directly into a swim-up pool. The spaces are designed to be explored in a multi-sensory way, with height changes compressing the user before opening to reveal different areas. The upper floor is the private area, with bedrooms and a master with towering 30 ft ceilings and carefully placed skylights that drape the room in natural light. The 20 ft by 20 ft single pane square window creates a natural “living painting” with unobstructed jungle views.
▼底层泳池,ground floor pool© César Béjar

▼生活区外的休闲平台,terrace of the living space© César Béjar

▼生活区,the living are© César Béjar

▼开放式厨房与餐厅,open kitchen and dining© César Béjar

此外,建筑师还在别墅屋顶上创造了第二处私人户外休息区,进一步利用了丛林保护区的壮丽景色。Cava别墅是一个能够让来自世界各地的人们聚集在一起生活和社交的地方,同时人们也能够在不同的空间中保留各自独立的性格。
On the rooftop, a second private outdoor seating area is created, taking full advantage of the stunning views of the front jungle reserve. Villa Cava is a place where people from different parts of the world can come together to live and socialize or remain independent in the different spaces created in the project.
▼顶层空间,top floor© César Béjar

▼顶层露台,top floor terrace© César Béjar

本项目是众多有才华的人们合作的结果,包括来自本地的景观事务所、承包商、当地工匠和许多其他使这个项目成为可能的人。项目中的每个固定装置、砖块、窗户和电器都产自墨西哥,因此展现出真正的地方特色。
The house is the result of the collaboration of many talented people, including a local firm that created the landscaping, contractors, local artisans, and many others who made this project possible. Every fixture, brick, window, and appliance were sourced from Mexico, giving the house a true sense of place.
▼走廊,hallway© César Béjar

▼卧室,bedroom© César Béjar

Adrian的愿景是借由本项目发起一项房地产基金,为墨西哥和世界各地创造结合建筑,功能和以人为本的设计的豪华别墅,为寻求独特多感官体验的人们创造豪华别墅的短期租赁体验。
Adrian’s vision is to create a real estate fund that develops luxury villas throughout Mexico and the world, combining architecture, function, and human-centric design to create short-term luxury rentals for people seeking unique multi-sensory experiences. Villa Cava is just the beginning of a larger dream, and it serves as an inspiration to architects and designers worldwide.
▼浴室,bathroom© César Béjar

▼总平面图,master plan© Espacio 18 Arquitectura

▼一层平面图,ground floor plan© Espacio 18 Arquitectura

▼二层平面图,first floor plan© Espacio 18 Arquitectura

▼三层平面图,second floor plan © Espacio 18 Arquitectura

▼立面图与剖面图,elevations and sections© Espacio 18 Arquitectura

▼剖面图,sections© Espacio 18 Arquitectura

INFORMATION
Project: VILLA CAVA (@villa.cava Instagram)
Architects: Espacio 18 Arquitectura (@espacio18 Instagram)
Web: http://www.instagram.com/espacio18/?hl=es-la
Location: Tulum, Quintana Roo.
Mail: espacio18arquitectura@gmail.com
Year: 2023
Building area: 445 m2
Photography: César Béjar (@cesarbejarstudio Instagram)
Interior Design: Kayla Pongrac (@kaypongrac Instagram)
Developer: Adrian Salamunov
More:Espacio 18 Arquitectura,更多请至:Espacio 18 Arquitecturaon gooood