该住宅楼位于塞浦路斯Koulas区,该区域坐落着当地著名的Kolossi城堡,而本项目的设计灵感则来自于这座独特的中世纪的瞭望塔/角楼。
A residence in the area of Kolossi Castle (Koulas), which acted as an inspiration point for research on the typology of koulas – medieval watchtowers / turrets.
▼建筑概览,general view© Mariana Bisti

主要建筑体量的设计灵感来自于Koulas角楼的紧凑形式与小尺度的开窗。公寓楼共设有两个室内楼层,以及作为屋顶花园使用的三层空间,露天的形式带来了一种向天空开放的感觉。
▼分析图,analysis diagram© Alexis Papadopoulos Architectural Practice

The main volume of the proposal, is inspired by the compact form and small openings of the typology of koulas, consisting of two levels of indoor space and a third level without a roof, operating as roof garden and giving the sense of a room open to the sky.
▼项目与周边环境鸟瞰,aerial view of the project and surrounding environment© Mariana Bisti

▼顶视图,top view© Mariana Bisti

次要体量以线性形式匍匐在主要公寓体量周围,扩展了底层的功能空间,低矮的体量丰富了整个项目中的建筑形式,主次分明,同时强调出主要建筑体量的高度与动态。在室内,位于北侧的客厅空间围绕在花园的优美景观之中,而位于南侧的卧室则盘旋在花园之中。建筑体量的位置、开口和室外空间的规划都以场地上现有的橄榄树为依据,而这些橄榄树则是项目中重要的元素之一。
▼分析图,analysis diagram© Alexis Papadopoulos Architectural Practice

A secondary linear volume, which expands the functional spaces of the ground floor, differentiates as form and materiality, emphasizing the height of the main volume and its dynamic presence. To the north, the living room submerges into the surrounding garden, while to the south the bedroom hovers above it. The position of the building volumes, the arrangement of openings and the outdoor spaces were designed based on the pre-existing olive trees, which were important elements of the synthesis.
▼建筑外观,exterior view© Mariana Bisti

▼街道视角,street view© Mariana Bisti

▼室外泳池,pool© Mariana Bisti

▼建筑外观细部,details of exterior© Mariana Bisti



在主要建筑体量中,室内外空间的整体立面统一纯粹,旨在强调出其坚固的形式,并定义了建筑的材料与结构。在技术层面,项目采用了钢筋混凝土预制双层墙结构,且室内没有设置任何梁柱支撑。
▼分析图,analysis diagram© Alexis Papadopoulos Architectural Practice

The intention for monolithic facades in the internal and external walls of the main volume, which would highlight its solid form, has led to research methodologies of construction. The chosen technique was explored with the method of prefabricated double walls in reinforced concrete, without any columns or beams.
▼顶层外观,exterior view of the top floor© Mariana Bisti

▼屋顶露台,top floor terrace© Mariana Bisti

混凝土墙由机械控制的金属模板浇筑而成,预制而成的混凝土墙体具有完美的光滑表面,并能够在三天内用起重机进行现场组装。隔热层与服务设备位于混凝土墙的两则,且根据每个空间的功能特别设计。
The concrete walls were casted with robotic control in metal molds, that give a perfectly smooth surface, and assembled on site with a crane within three days. The thermal insulation and the various services, specifically designed for each space, are located between the two sides of the concrete walls.
▼底层客厅,living room© Mariana Bisti



▼混凝土与红色家具的对比,the contrast between concrete and red furniture© Mariana Bisti


住宅建筑体量的结构与材料也反映在室内空间中。主要体量中的混凝土墙壁暴露在室内空间中,次要体量的室内则采用了木制饰面板,而木材的肌理同样出现在该体量的建筑结构中。
The structural materials of the building volumes of the residence are reflected in the interior spaces as well. The walls of the main volume remain in concrete and the walls of the secondary volume are cladded in wood, a material that has also been used for its structure.
▼住宅主要体量室内,interior view of the main volume of the building© Mariana Bisti


▼卧室,bedroom© Mariana Bisti

混凝土和木材的自然纹理与独特的结构特征,同固定家具中的其他材料一起营造出鲜明的室内风格。天然的建筑材料与红色的固定家具增强了空间中的质感对比,同时创造出生动活泼的氛围。
The natural textures and the special technical construction characteristics, both of concrete and wood, as well as of the other materials that have been chosen for the fixed furniture, form a distinct interior environment. These, along with the red color of the fixed furniture in the main volume, enhance the material contrasts of the spaces, while creating an intense and lively atmosphere.
▼次要体量由木材覆盖,the secondary volume is clad in wood© Mariana Bisti


▼底层次要体量室内,interior view of the secondary volume© Mariana Bisti


照明灯具的选择,参考了空间的主要色调与材料的细节,进而形成了统一的空间感。
The selection of lighting fixtures, follow the same colour tones with details in materials that have already been used in the residence, forming a unified spatial sense.
▼建筑夜景,night views© Mariana Bisti



▼一层平面图,1F plan© Alexis Papadopoulos Architectural Practice

▼二层平面图,2F plan© Alexis Papadopoulos Architectural Practice

▼三层平面图,3F plan© Alexis Papadopoulos Architectural Practice

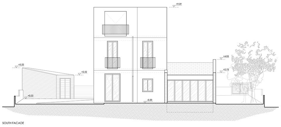
▼立面图,elevations© Alexis Papadopoulos Architectural Practice




▼剖面图,sections© Alexis Papadopoulos Architectural Practice


▼构造细部,details of the construction© Alexis Papadopoulos Architectural Practice

Project Main Information
Project Name: The Koulas Project
Gross Built Area: 170 m2
Location: Kolossi, Cyprus
Program: Residential
Completion Year: 2021
Office Information
Office Name:
Alexis Papadopoulos Architectural Practice
Lead Architects: Alexis Papadopoulos, Maria Protou
Website: https://alexispapadopoulos.com/
Social Media:
https://www.facebook.com/alexispapadopoulosarch
https://instagram.com/alexispapadopoulosarch
Contact email: alexis@alexispapadopoulos.com
Firm Location: Limassol, Cyprus
Architects Team – Design Credits
Alexis Papadopoulos (alexis@alexispapadopoulos.com)
Despo Anagiotou
Maria Protou (maria@alexispapadopoulos.com)
Laoura Tziourrou
Collaborators Credits
Civil Engineer: Costas Constantinou (costas@innovarch-engineers.com)
Mechanical Engineer: Costas Moyses
Contractor: Innovative Construction Solutions (info@icscyprus.com, patsalos@icscyprus.com)
Subcontractor (concrete structure): Prohellas (info@prohellas.gr)
Woodworks: Antonis Eliades
Lighting fixtures provider: Ioannides Lighting (vasilis@ioannideslighting.com.cy)
Wooden furniture and wooden lightings: Lovenlight (navid@lovenlight.eu)
Photographs:
Photo Credits: Mariana Bisti
Website: https://www.marianabisti.com/
Contact email: me@marianabisti.com
Photoshoot set design: Elena Kotasvili
More:Alexis Papadopoulos Architectural Practice,更多关于:Alexis Papadopoulos Architectural Practiceon gooood