▼视频,Video
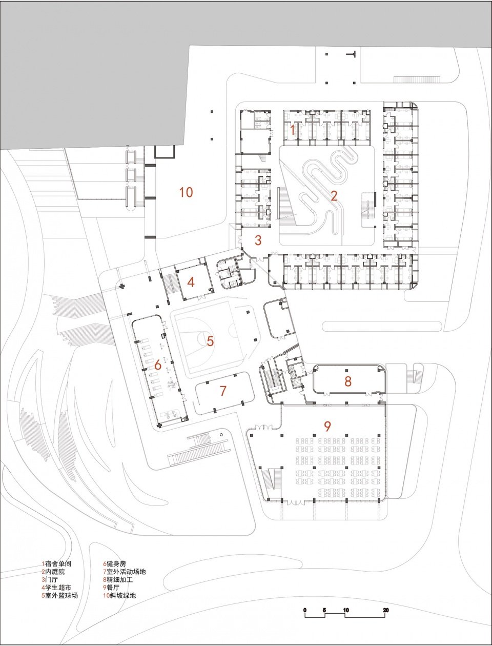
前言:3.0高校生活区
Preface: 3.0 Living zone on campus
近年来,我国的高校生活区已逐步完成了从学生宿舍与食堂等生活设施行列排布1.0阶段,到公共空间与学生宿舍整合设计2.0阶段的过渡。在衢州生活中心项目中,方案试图突破功能限制,将公共生活与居住功能完美融合,积极尝试3.0高校生活区新模式。
▼项目总体鸟瞰,Overall aerial view© 章鱼见筑

Nowadays, the campus living zone in China has gradually completed the transition from the 1.0 mode (where dormitories and other facilities are arranged in line) to the 2.0 mode (where public areas are partly integrated into dormitories). In the Quzhou student community center project, the plan tries to break through functional limitations and fully integrate public life and residential functions. So, a new mode 3.0 will be established.
▼3.0高校生活区,3.0 Campus living zone©四时方院

背景:综合体&微地形
Background: Complex & Micro topography
研究院选址于衢州高铁新城,因场地局限户外体育设施不足,周边也尚未有成熟的服务配套。作为一期重要工程,20000平方米的生活中心将在很长一段时间内为自给自足的研究院提供住宿、社交、活动、餐饮、学习和娱乐等多种功能,是名副其实的综合体。
“越山行尽见平野,江上水流无逝音”,校园用地凸显了衢州“微地形”的特征,其中生活中心场地北高南低,高差十余米,北侧和东侧为校园2期高层产业园,西面接邻校园中心景观水面,南面是葱茏的自然山体,山缓水柔,自然和谐。
The Institute is located in Quzhou High-speed Railway New City. Due to the limited space, there are not enough outdoor sports facilities and mature service facilities in the surrounding area have yet been built as well. So, as a project of the first construction phase, the 20,000-square-meter community center will provide multiple functions such as accommodation, social interaction, activities, catering, learning, and entertainment for the self-sufficient research institute for a long time. In that case, it is a complex literally.
The campus site highlights the characteristics of Quzhou’s micro-topography. The community center site is high in the north and low in the south, with a height difference of more than ten meters. The north and east sides of it are the high-rise industrial park of the second phase of the campus, the west is the center water landscape and the south is a verdant natural mountain. The whole area is tremendously harmonious.
▼功能配比与用地现状,Program and site condition©四时方院

▼夜景鸟瞰,Aerial view at night© 马元

01. 聚合生活片段
Aggregate slices of life
建筑在布局上将功能体量拆分以常规尺度重新组合形成聚落,北区住宿、自习室及南区活动中心、学生餐厅5个不同的生活场景被整合到一个由同一母题的重复形成的复杂综合体中。五个盒子的高度、体积乃至院落的大小变化体现了个体的差异,增加了整体的丰富度。
除了水平延展,生活中心同样采用了常见的在建筑垂直方向上多种功能连续叠加的复合化设计。这种双向的功能叠加为生活中心创造了传统行列式排布所不能达到的可感体量。顺应地势高差逐级跌落的屋面为学生提供了天然的观察视点,站在高处,一幕幕不同的生活场景直接浮现在眼前。
▼建筑爆炸轴测图,Exploded axonometric drawing©四时方院

The functional volumes are split and reassembled at regular scales to form settlements. Five different life scenes, including accommodation in the north area, study room, activity center in the south area, and student dining room, are integrated into a complex formed by repeating the same motif. The height and volume of the five boxes and even the size of the courtyard reflect individual differences and increase the overall richness.
In addition to the horizontal extension, the community center also adopts a common mix-use design in which multiple functions overlay in the vertical direction of the building. This two-way functional overlay creates a huge volume for the community center. The roof that falls step by step following the micro topography provides students with a natural observation point of view. Standing in a high place, different life scenes appear directly.
▼逐级跌落的屋面,Falling roof© 章鱼见筑

▼活动中心夜景立面,Activity center facade at night© 马元

02.串联生活场景
Connect life scenes in series
内向的庭院反应了强烈的“家园”情结,体量的水平延展,又使得院与院之间联系紧密。环环相扣的内院,形式各异:宿舍大院长36m、宽24m,以自然为主题;宿舍中院24m见方,雕塑感的清水楼梯凸显在院中;南区运动小院以半场篮球为核心,四面“板、廊一体”的走道成为看台,健身房、羽毛球室、桌球室、乒乓球室等均以“玻璃盒子”的形式夹在清水楼板之间;自习室则将体量剖切拉开,通过两片剪力墙挤压出静谧的“缝之院”。在这里,看与被看被放大,生活中心从而能够随时随地将师生带入到更为真实的生活场景中。
The introverted courtyard reflects a strong homeland affection, and the horizontal extension of the volume makes the courtyards closely connected. All these inner courtyards are interlocked and in different forms.The big courtyard of the dormitory is 36m long and 24m wide, with nature as the theme. The middle courtyard of the dormitory is 24m square, and the sculptural staircase highlights the space. The sports court of the south district takes the half-court basketball as the core, and the walkways on all sides become stands. The gym, badminton room, billiard room, and table tennis room are all sandwiched between the floors in the form of “glass boxes”. A quiet “seam courtyard” is squeezed out through two shear walls by the divided volume of the study room.In these courtyards, seeing and being seen are magnified, so that teachers and students are able to be brought into a more real-life scene anytime, anywhere.
▼环环相扣的院落,Interlocking courtyard© 章鱼见筑

▼生活大院,Big courtyard of the dormitory© 章鱼见筑

▼生活大院,Big courtyard of the dormitory© 章鱼见筑

▼生活中院,Middle courtyard of the dormitory© 马元

▼运动小院,Sports courtyard of the activity center© 章鱼见筑

▼运动小院夜景,Sports courtyard of the activity center at night© 章鱼见筑

▼缝之院,A seam courtyard of the study room© 章鱼见筑

03. 全建筑漫游
Architectural promenade
建筑师将路径一分为二,产生了“内径”与“外径”,二者共同配合编织了一个立体网络。内径提供便捷高效的交通流线,外径则与具体的功能结合,从门厅开始,串联起各体块,并在层层跌落的屋面上与宿舍的内径连接,完成循环闭合。从任何一个体块都可走上这个循环,都能随路径漫游到建筑各处。
红色的环形塑胶跑道是外径的核心,由活动中心出发延伸到北区宿舍,并配合粗粝的黄色丙烯酸,从素雅的清水混凝土中凸显出来,伴随着两旁的绿化,形成了最具活力的顶层屋面。
The architect divides the path into the internal and the external, which weaves a three-dimensional network. The internal path provides a convenient and efficient traffic flow, while the external path combines specific functions. It starts from the entrance hall and is connected with the internal path of the dormitory on the falling roof to complete the cycle. People can walk on this cycle from any box, and roam around the building along the path.
The red circular plastic runway is the core of the external path, extending from the activity center to the dormitories. It combines with the rough yellow acrylic, which stands out from the fair-faced concrete. With that greenery on both sides, it forms the most dynamic roof.
▼漫游路径,Promenade path© 章鱼见筑

▼南区之字形楼梯,Zigzag Stairs in south© 马元

结语
Epilogue
在设计过程中,建筑师一直在试图努力回应人们对于场地、生活、未来的期待。站在生活中心的屋面上,目视着远方低矮的群山和动人的夕阳,青年时期的高校住宿体验不断在脑海中涌现,那些曾因为炎热而不得不“席睡”屋顶的夏夜,漫天的星空如今开始在连续的屋面上流动起来。
During the design process, the architect has been trying to satisfy the expectation of the site, the life, and the future. Standing on the roof and viewing the surrounding mountains and beautiful sunset, the experience of living on campus is appearing constantly in the mind. All the nights sleeping on the roof due to the heat and the starry sky from those nights now are flowing on this roof.
▼光影流动的屋面,Roof with flowing light© 尹明

▼区位图,Location ©四时方院

▼负一层平面图,Underground floor plan©四时方院

▼一层平面图,First floor plan©四时方院

▼二层平面图,Second floor plan©四时方院

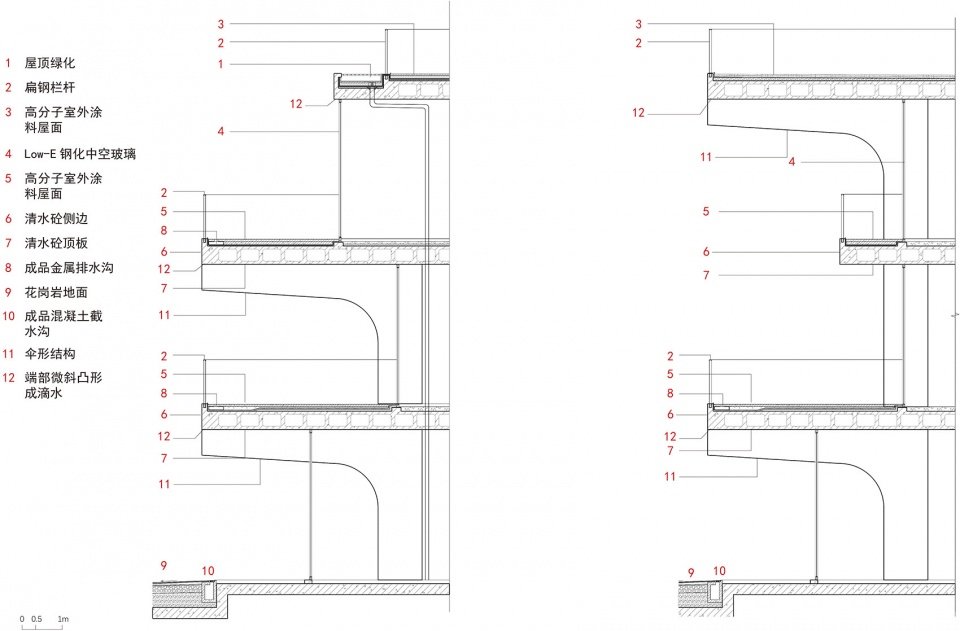
▼剖面图,Section©四时方院

▼墙身大样图,Details©四时方院

项目名称:电子科大长三角研究院(衢州)•生活中心
设计方:同济大学建筑设计研究院(集团)有限公司|四时方院
公司网站:http://www.tjad.cn/
联系邮箱:406667704@qq.com
项目设计 & 完成年份:2020年 & 2022年
主创及设计团队:
项目总负责人:江立敏、连津
建筑及室内设计团队:张佳、桂耀国、李泽敏、王艳
结构团队:胡广良、沈葵、张硕、杨付权
给排水团队:李丽萍、任军、张宝娣、唐玉艳、袁方
电气团队:宋海军、张英、顾玉辉、罗颜、蔡猛龙
暖通团队:秦卓欢、钱必华、吴虎彪、禹小明
景观设计:何强、肖鸿、连乐桐、张杰、黄郑涛、周耀辉、詹丽文
泛光照明:杨秀、徐霞青
绿建团队:徐晓燕、薛芳慧、朱翠雯、鞠辰、吴过、唐澄宇、张现、李鹏飞
幕墙设计:兰礼军、何谦
项目地址:浙江省衢州市
建筑面积:19488平方米
摄影版权:章鱼见筑、马元、尹明、四时方院
客户:衢州市衢通发展集团有限公司
More:同济四时方院设计研究中心(联系邮箱:tjad4@tjad.cn)。更多关于:Time & Space Architecture Studio on gooood