一处尺度超凡的纯净沙丘,投射出不属于当代的缥缈幻影,形成远离尘嚣的沉静场域。在浓黑背景上,构筑起纯白的舞台,服饰呈现如闪耀的宝藏,予人探索的欲望。
A grand, immaculate dune evokes an otherworldly atmosphere, detached from the modern world and providing a serene escape from the urban chaos. It creates a pristine white stage against a pitch-black backdrop, displaying the collections of clothing like precious treasures and luring visitors to embark on an exploration.
▼项目概览,Preview© SFAP



01# 在都市中
寻找一段远古的沙丘记忆
Seeking the distant memory of dunes in the city
沙丘之下的矿洞,埋藏了怎样的珍宝?
万社设计Various Associates与时尚买手品牌SND,在繁华闹市打开一扇时空之门,指引来者步入铁与沙砾的远古记忆。
What kind of treasures are hidden in a mine under the dune?
Various Associates and fashion boutique SND have created a space that transports visitors to a distant memory of iron and sand in the midst of a bustling city.
▼一处尺度超凡的纯净沙丘,A grand, immaculate dune© SFAP

▼“沙丘”局部,Detailed view© SFAP

沙丘一侧,黑色的入口有如深邃的矿洞,明亮的矿灯指引探索者向前,去发掘沙砾之下的宝藏。于矿道中回望,沙丘之上的光影透过钢网若隐若现。
The black path on one side of the dune resembles a deep mine. Bright mining lights illuminate the way and guide explorers to discover hidden treasures beneath the sand. As visitors turn back, the steel grille offers glimpses of the dune’s light and shadows.
▼入口路径,Entry way© SFAP



02# 连绵的山线
灵感空间的有机延展
Extending an inspiring space through a continuous mountain
在固有的建筑内,呈现出独特的空间体验,成为本次设计的重点。利用空间既有的层高,万社设计将主要的零售空间“埋”入沙丘之中,以深邃迷离的大尺度打造出来自远古的沉浸感。
The design team’s main focus was to craft a distinctive spatial encounter within an already-existing building. By making use of the existing floor height, they managed to obscure the main retail area beneath the dune and create a large-scale structure that results in an immersive and profound atmosphere reminiscent of ancient times.
▼服饰展示区,Clothes display area© SFAP



这处尺度超凡的纯净沙丘,投射出不属于当代的缥缈幻影,形成远离尘嚣的沉静场域。以最大斜跨度21米的无内柱结构生成的山体,对外架构起特殊的展示空间,对内掩藏衣物的陈列空间及试衣间。
The grand, immaculate dune evokes an otherworldly atmosphere, detached from the modern world and providing a serene escape from the urban chaos. The mountain-shaped structure, which is column-free, boasts an impressive diagonal span of 21 meters. This not only creates a visually striking display from the exterior, but also provides space for clothing displays and fitting rooms on the inside.
▼将主要的零售空间“埋”入沙丘之中,The main retail area is obscured beneath the dune© SFAP


以精心设计的大跨度结构塑造沙丘形体,在满足力学要求的同时隐藏管线等部件,呈现出纯净的意象空间。穿过精心设计的空间序列有如深入山体,带来独特的灵感体验。
The large-span structure is carefully crafted to create the dune-shape space that not only meets mechanical requirements but also conceals pipelines and other components, resulting in a space with a clean and pure aesthetic. As customers navigate in the thoughtfully planned spatial sequence, they feel as though they are deep in a mountain, fully immersed in a unique and inspiring experience.
▼深入山体,Deep in a mountain© SFAP



03# 大地的呼吸
铁器时代的里程碑
The breath of the earth, a milestone of the Iron Age
铁甲护栏延续了万社最早为品牌方设计的重庆首店“里程碑”的几何感,以原始铁具为灵感的陈列道具散落于空间中,乌黑的金属与素净的底色碰撞出独特质感。一切造型都不拘于方正,自然的有机形态为无色的空间带来延绵的张力,呈现力量与美学中的平衡。
The use of iron bars is an extension of the geometric design employed in SND’s first store in Chongqing. Display fixtures inspired by raw iron materials are placed throughout the space, creating a striking contrast between black metal and the quiet color backdrop. The use of organic, non-square shapes generates a dynamic tension within the monochrome space, achieving a balance between power and aesthetics.
▼铁甲护栏,Theiron bars© SFAP


为本项目量身设计的展示台,犹如独立于沙地上的嶙峋岩体,任由光影冲刷。灵活的多功能使用容许空间以不同方式呈现品牌调性,追逐风尚而无惧潮流。
The custom-made display table stands out like a rock rising from the sand, illuminated by shifting light and shadows. With its versatility, it serves multiple purposes and provides the space with various options to showcase the brand’s identity while embracing trends with confidence.
▼定制展示台,Thecustom-made display© SFAP

细节设计打造独特质感,铁甲乌黑的边界由一系列有序的光线分割形成,冷硬的黑与细腻的白碰撞出艺术的幻影世界。
The details are meticulously crafted to create a distinctive texture. The black iron frames are emphasized by orderly lights, producing a mesmerizing realm of art that arises from the interplay between the rugged blackness and the delicate whiteness.
▼以原始铁具为灵感的陈列道具,Display fixtures inspired by raw iron materials© SFAP


04# 追光逐影
聚焦场域的多重变幻
Diverse scenes highlighted by light and shadows
在游逛选品的全过程中,光连绵为清晰的游线,为来者指引心灵之旅,自然的引导人们步入空间的最低处。
As customers explore and select from the items on display, the continuous light creates a clear circulation route that guides them on a spiritual journey and naturally leads them to the lowest point of the space.
▼灯光成为游览的动线,Thecontinuous light asa clear circulationroute© SFAP


▼服饰展示区细部,Clothes display© SFAP


别出心裁的照明系统为纯色空间注入变幻的光影,仿佛画龙点睛。以光的聚焦表现衣料的质感,以光的散射体现空间的通透,可变的灯光布局给予商业场所更多灵动的可能。
The innovative lighting system brings the black-and-white space to life through the play of light and shadows. Focused lighting accentuates the textures of the fabrics, while diffused lighting reveals the expansive nature of the space. The versatile lighting arrangement creates endless possibilities for the retail space.
▼纯色空间中注入变幻的光影,The play of light and shadows© SFAP



5# 月华独聚
构筑对话心灵的静谧一隅
A place of serenity under the ‘moonlight’
耀眼的光与浓重的影,明月为隐藏在山谷之下的试衣间划出一方神圣的私密展台。
The interplay of bright light and deep shadow creates a sacred and private runway for the fitting rooms located beneath the mountain, as if illuminated in bright moonlight.
▼试衣间,Fitting room© SFAP

▼试衣间内部灯光,Fitting room interior view© SFAP


在vip试衣间,感应灯光的设计打造出更浓重的仪式感,环境光在来者进入空间后缓缓亮起,催动美流入镜中,聚焦非凡的时空体验。
The VIP fitting rooms feature sensor lights designed to evoke a sense of ceremony. As customers enter the space, the ambient light gradually turns on, enhancing the reflection in the mirror and providing customers with an extraordinary experience of time and space.
▼视角,Views© SFAP

独特的光影氛围划分出不受红尘侵扰的心像空间,在此,人与远古的沙丘对话。穿行于一系列空间中,心境变幻,此即欣赏自我的静谧一隅。
The unique ambience created by light and shadow results in a spiritual space detached from the secular world. Here customers encounter the ancient dune and embark on a spiritual journey that carries them through diverse spaces and ultimately leads them into a serene corner for self-admiration.
▼光影氛围,Unique ambience© SFAP


6# 意象塑形
寄寓场所精神的辽远叙事诗
A storytelling space with a profound image
万社以辽远的意象凝聚品牌特质,用设计赋予空间无限延展的故事线。深邃的沙丘映照自我,SND深圳如静默的里程碑立于闹市中,为来者吟一段沙与铁器的悠长叙事诗。
In this project, Various Associates highlighted the brand’s distinctive character through a vast and expansive image, creating an unbounded narrative for the space through design. The profound dune acts as a reflection of the customers’ inner selves. The SND Concept Store, Shenzhen stands like a silent milestone amidst a bustling city, recounting an epic tale of sand and iron.
▼深邃的沙丘映照自我,The profound dune acts as a reflection of the customers’ inner selves© SFAP



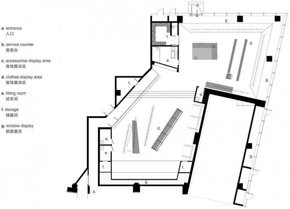
▼平面图,Floor plan ©万社设计

项目名称:SND深圳概念店
客户:SND
地址:中国广东省深圳市
面积:500㎡
完工时间:2022.10
设计团队:万社设计
主持设计师:林倩怡、杨东子
设计团队:黄博、张峻瑞、曹玥雯
摄影团队:SFAP
Project name: SND Concept Store, Shenzhen
Client: SND
Location: Shenzhen, Guangdong, China
Area: 500 sqm
Completion time: October 2022
Design firm: Various Associates
Lead designers: Qianyi Lin, Dongzi Yang
Design team: Bo Huang, Junrui Zhang, Yuewen Cao
Photographs: SFAP
More:万社设计。更多关于他们:Various Associates on gooood