位于北京东郊的朗园Station是正在蓬勃兴起的商业街区,其前身是废弃的纺织品仓储基地。始于50年代,大多数建筑都已经超龄服役。由于初建时期抗震标准不高,砖墙多处已经开裂,构造柱也不完整交圈。可以划作危房的现状条件,对于任何当代功能的植入都是挑战。余留地团队将其中一栋长42米,宽30米,高8.5米的砖混结构库房进行了彻底的翻新,为摄影师业主提供了如艺术博物馆般的工作环境。
The project’s location, Langyuan Station, is a revitalized commercial district historically used as textile factory in Beijing’s eastern suburb. Built in the 1950s, most facilities in the premise have been obsolete due to unsound structural issues. Structural cracks along brick walls and broken concrete reinforcements make the conditions challenging for any adaptational re-use. DesignRESERVE has taken one of the main structures and transformed it into a museum like workspace for a renowned photographer.
▼建筑外观概览,exterior view of the building© 安利

业主的基本要求是在新体量里容纳下三个摄影棚。其中包括两个常规棚,净高在5-8米之间,以及一个天光棚,净高3.5米。封闭如暗盒的摄影棚是业主日常工作的区域。而各摄影棚之间则视作辅助空间,包括门厅,接待区,休息室,走廊,楼梯,以及摄影师的个人空间。借鉴罗兰×巴特在《明室》中对摄影图像的类型阐述,余留地转换了空间的主次关系。主要采用布景和受控光源从事影像生产的摄影棚内部被视作Studium,即相对静态的空间。而围绕摄影棚的流通空间则可以利用自然光线实现Punctum,即视觉上更加悸动的空间。
▼分析图,analysis diagram© 余留地

The client requests three large shooting spaces within the new volume. This includes two regular studios with head clearance of 5-8 meters, plus one sunlight studio with glass roof of 3.5-meter head clearance. The three studios are the main workspace for the photographer. The rest of the building is regarded as supportive, composed of lobby/reception, meeting areas, hallway, stairs, cafeteria and photographer’s personal lounge. The team of designReserve reconsiders the program hierarchy by reversing serving and served in spatial composition, with reference to the essay by Roland Barthes in 《Camera Lucida》. The space for producing image under artificial light is seen as “studium”, and the space of circulation is treated with natural sunlight to achieve quality of “puncdium”.
▼外墙的基本体廓被保留下来,the exterior brick wall has mostly remained © 安利

▼混凝土框架嵌入砖墙,增强其结构刚性,by inserting concrete bracings, the historic envelope is reinforced© 安利

▼240厚的烧结红砖墙体,closer view ofthe exterior brick wall© 安利

尽管原建筑内部从地基到屋顶都被拆除重建,外墙的基本体廓被保留下来。但无论是只有240厚的烧结红砖墙体,还是以6米为间距,带有顶部线脚的砖壁柱,都无法支撑内部新加建的楼层荷载。因此设计团队与结构工程师密切配合,为外围护物设计了一套新的支撑系统。混凝土框架嵌入砖墙,增强其结构刚性,同时维持主要展开面,并使灵活调整外墙开洞成为可能。新洞口的尺寸和位置体现了室内各房间对采光的需求,仿佛不同光圈的镜头。用于稳定洞口的GRC外框,并不是单纯的平面轮廓,而是具有流动感的立体形态,以借助阳光的照射塑造厂房的城市新面孔。
As part of the preservation effort the exterior brick wall has mostly remained, while the inside is gutted from foundation to roof to give way to a complete new structure. With the help of civil engineer, designRESERVE develops a new loadbearing system to strengthen the unstable brick wall. By inserting concrete bracings, the historic envelope is reinforced and also given flexibility for additional openings. All around the façade are windows varying in size and proportion. Like changing apertures, they declare a new occupancy and the various functions behind the openings. The contrast between solid and void is further emphasized by the sculptural GRC-made window frames, which also serves as structural reinforcement.
▼主入口立面,facade of the main entrance© 安利


▼立面细部,details of the facade© 安利

主入口位于首层西侧,通过一个曲折的门斗引导访客进入大厅。大厅正对中心走廊,并连接南北两个影棚休息室。该公共区域的表面材料由水磨石,木材,半透明玻璃和肌理漆构成,形成非常丰富的单色调。光线从不同方向直接或间接散发进来,交叉,反射和渐变于由若干弧形表面围合的高敞空间。经过仔细布置的洞口具有变化的轮廓和深度,有意拉长由光亮到昏暗的过程。这种试图显示照明轨迹,并创造多层灰色调的努力,受到安塞尔×亚当斯(美国二十世纪著名摄影家)提出的“区域曝光法”理论启发。
The main entrance, with big glass door resembling picture frame, is located on the west end of the building. Inside is a cavity-like threshold intended to filter glaring western exposure lights and winter’s cold blast. The reception area becomes the junction of two major photo studios and the central hallway. Covered by terrazzo, wooden panels, translucent glass and textured paint, the space presents an orchestral play of monotone shades. Natural lights come from every side, directly or indirectly, reflecting and gradating on series of curved surfaces from wall to ceiling. Carefully positioned windows and openings fluctuate in profile and depth, with the intention to extend and smooth the transition from lightness to darkness. This effort, maximizing luminance range and creating various tones of greyness, is inspired by “Zoning System” theory of Ansel Adams, one of the greatest photographers in history.
▼入口公共区域,reception area© 安利

▼弧形表面围合的高敞空间,high open space enclosed by curved surface© 安利


▼丰富的单色调与光线,rich monochrome space with light© 安利

▼摄影棚B入口,entrance of the studio B© 安利

▼摄影棚B,studio B © 安利

▼常规棚净高在5-8米之间,regular studio with head clearance of 5-8 meters © 安利

▼关闭遮阳卷帘后的摄影棚,studiowith rolling shutters © 安利

最具戏剧性反差的地方是中心走廊。走廊分为上下两层,联系南北两侧楼层的变化高差。一道35米长,带有遮阳卷帘的天窗,将屋面切开,让自然光倾泻进入建筑内部各个角落。明亮四处蔓延,阴影翩翩起舞。四段乳白色的楼梯,将围绕光影走廊的简单循环动线变成移步换景的旅程。访客发现自己如置身于一座以光为景的展厅。
The climax of the lighting display happens in the central hallway. The linear multi-level circulation spine connects all rooms horizontally and vertically. Equipped with rolling shutters, a 35-meters long skylight splits the roof. It generously invites sunlight into every corner of the central space, creating an ever-changing dance between light and shadow. Four pieces of opalescent white stairs surround the central space. As one walks the loop circulation, one’s experience of light and dark is constantly shifting. Visitors find themself immersed in a gallery of luminosity.
▼中心走廊,the central hallway © 安利

▼楼梯,staircase© 安利



▼二层走廊,corridor on the upper floor© 安利


室内加建的最高区域是供摄影师休憩的个人空间。余留地创造出一个带有露台,充满愉悦氛围的空中居所。压低的倾斜天花使房间具有阁楼的尺度特征,却因为白色的大理石墙面和充沛的采光而倍显明亮,但又不因此而灼热难耐。这主要归功于南向的整面落地玻璃,通过光影走廊的天窗获取过滤后的太阳辐射。房间西侧的玻璃幕墙则将室内与室外平台贯通。种植着常绿灌木和四季花草的露台,成为主人和他的三只爱犬日常嬉戏的空中庭院。偶尔,这里也可以被当作一个自然光拍摄的室外摄影棚来使用。
The photographer’s private lounge is located on the top floor complete with a rooftop garden. The “residence in the sky” is given an intimate feel by lowered ceiling height, while abundant natural light is made possible by the floor to ceiling glass wall facing the central hallway. This pleasant retreat is further extended to the rooftop garden decorated with ever-green hedge and perennial flower bed. It can be used as additional open-air studio, as well as an elevated playground for the owner and his three dogs.
▼白色的大理石墙面和充沛的采光,white marble walls and plenty of light© 安利


虽然改造后的建筑内部为私人领域,但围绕外墙的街道边界并没有采用封闭式的景观处理。这反映了余留地团队努力在所有项目中贯彻的“共享私域”理念。重新修整的人行道路,为衬托原建筑砖墙而设置的灌木丛,以及在相邻厂房间的空隙里增添的乔木绿荫,都为正在经历重生的工业园区创造出城市街区应有的宜人环境。
Although the studio is renowned for portrait photography for Chinese celebrities with high demands for privacy, the perimeter of the building is not fenced off from surrounding streets. This reflects the pursuit of designRESERVE to create “shareable domain” within all projects commissioned by private clients. As a result of the team’s extended effort on landscape design, the broken pavement of the sidewalk is replaced, aging brick wall is brightened by evergreen hedges, and newly planted trees provide much needed shade for pedestrians in the narrow alleyway between the warehouses. With progressive but sensitive approach, the project exlpores a model on how to develop negative industrial inventory into positive urban context.
▼南向的整面落地玻璃,the floor to ceiling glass wall facing the central hallway © 安利


▼区位图,location plan© 余留地

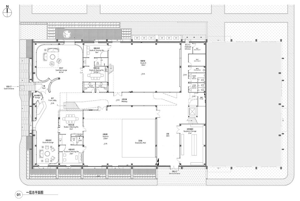
▼一层总平面图,ground floor plan© 余留地

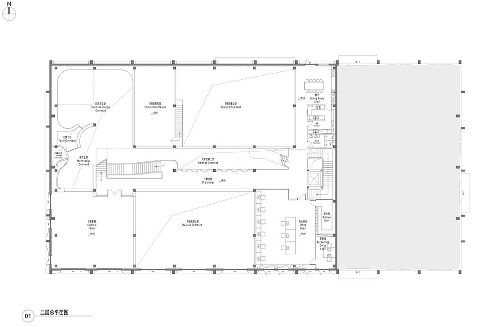
▼二层总平面图,second floor plan© 余留地

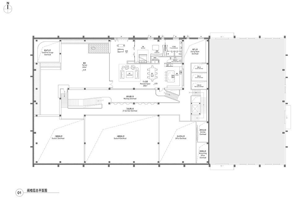
▼阁楼层总平面图,mezzanine floor plan© 余留地

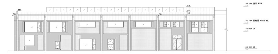
▼立面图,elevations© 余留地



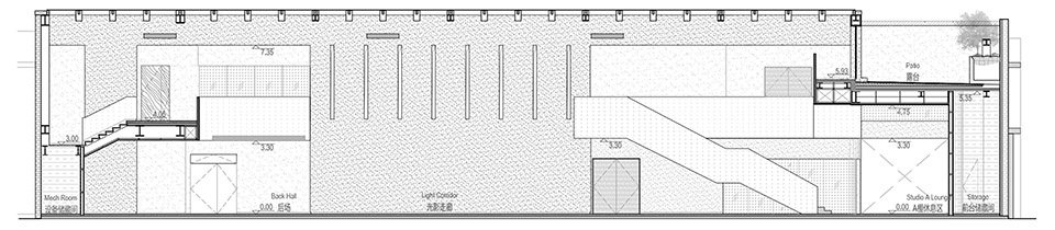
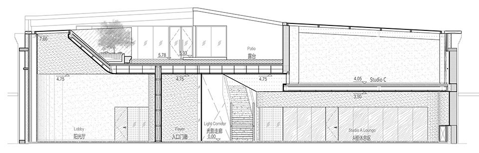
▼剖面图,sections© 余留地


项目名称:韦来摄影艺术空间
项目类型:办公空间
设计方:余留地
公司网站:http://www.designreserve.co/
联系邮箱: office@designreserve.co
项目设计:2019-2020
完成年份:2022
设计团队:宋方舟,岳峰,傅诗,赖智薇,蒲洁宇,魏丹,宋蕾,林画儿
项目地址:北京朝阳区半截塔路53号首创郎园Station
建筑面积:2185 ㎡
摄影版权:安利,韦来
客户:未来境界摄影工作室
材料:GRC,砖,水磨石,人造石,直立锁边金属板,木饰面板, 微水泥
Project name: WEI’s Studio of Photography Art
Project type: Workspace
Design: designRESERVE
Website: http://www.designreserve.co/
Contact e-mail: office@designreserve.co
Design year: 2019-2020
Completion Year: 2022
Leader designer & Team: Fangzhou Lydia Song, Feng Yue,Sunny Fu, Momo Lai, Jill Pu, Dan Wei, Sherry Song, Hoere Lin
Project location: Langyuan Station, No.53 Banjieta Road, Chaoyang District, Beijing, China
Gross built area: 2185 ㎡
Photo credit: Li An, Lai Wei
Clients: WEI’s Studio of Photography Art
Materials: GRC, brick, terrazzo, engineered stone, steel panel, wood panel, textured stucco
More:余留地。更多关于他们,请至:designRESERVE on gooood