工业风不只一种面貌,过去,我们循著屋主的兴趣喜好与生活习惯的脉络,诠释不同工业美学,有极致冷调的黑白灰、 老派复古的浪漫情怀、也有狂放不羁的单身公寓⋯⋯,在水泥灰的空间基调中,透过色彩、材质与软装的调配,一收一放,散发各自韵味。而这里的「灰」是温暖的,夫妻俩一直是工业风的爱好者,新婚时期忠于风格原味,粗犷且冷冽,随著生活和家庭的成长,空间有了改变,一家四口有各自的嗜好,男主人是产品设计师,女主人喜欢亲子派对与布置,一方面,我们透过「不锈钢」银灰色的金属质感,展现工艺性和现代感,另一方面,以柔美的手作品和收藏品、孩子的玩具和书籍,搭配温暖的黄光洒下来,为一片灰黑色的空间,加入故事与回忆,从冷灰的工业风转为「暖灰」的家。
Rather than being limited to a monochromatic aesthetic, industrial style is a versatile and dynamic design choice that can be customized through various color schemes, textures, and soft finishing in a concrete gray space to suit a range of preferences and lifestyles. In this space, the color “gray” is warm. For one couple, their love of industrial style has evolved over time. They once fell for the original industrial style: rough and cold when newly-wed. As they expanded their family and the four members in the family developed their own hobbies and interests, the couple’s home underwent some changes. The occupation of the husband, product designer, led us to add craftsmanship and modern elements through the use of metal textures and “stainless” steel finishes, while the wife’s love of decoration and family gatherings inspired us to infuse the this dark gray space with warmth and personalized touches through soft handmade crafts and collections under the warm yellow lights. The cool gray industrial style thus has turned into a “warm gray” home.
▼项目概览,project overview© Hey!Cheese


公共空间以沙发为中心,低背无扶手的设计,让它成为一座岛屿,向外延伸各个角落,像是餐厅、厨房、书墙、陈列架和阳台,同时也欢迎从四面八方而来,人与人之间的互动,举办派对时,气氛更加热络。
The common space in the home centers around a versatile lower-back armless sofa that serves as an anchor for various areas of the house. From the dining room, kitchen, bookshelves, display cabinets to the balcony, the sofa invites social interaction and contributes to a lively atmosphere during parties.
▼岛屿式低背沙发, Islandish lower-back sofa © Hey!Cheese


▼一块块堆叠起来的沙发 LIVING DIVANI EXTRASOFT,像是放大版的乐高模型,雅痞的焦糖色皮革材质,呈现慵懒的低矮坐姿,也可以倚靠著席地而坐,LIVING DIVANI EXTRASOFT sofa stacked on top of each other, like an amplified Lego model, is made of yuppie caramel leather and features slouchy, low-slouched sitting-on or leaning-on gesture© Hey!Cheese

▼露台空间,terrace space © Hey!Cheese

▼入门口看到这面书墙,宛如来到小诚品书店,展示著近期的爱书,glimpsing at the wall of books when entering home is like coming to a smalleslite-bookshopwhereyou can find recent favorite books© Hey!Cheese

▼安插一个小小阅读区在书墙之间,低调沉稳的空间与缤纷童趣的画作,对比强烈却也相互衬托,asmall reading area is installed between the book walls. The modest calm space and colorful paintings are contrasted and complemented with each other © Hey!Cheese

▼架上陈列著一家人的生活故事。MOROSO 休闲椅 TAKE A LINE FOR A WALK,外型有著太空船驾驶座的霸气,充分展现主人椅的气势,亮黄色也为灰色空间增添一股暖意,the family’s life story is displayed on the shelf. MOROSO lounge chair TAKE A LINE FOR A WALK,witha spaceship-capsule-like apperance,showing off the vigour of the master chair, its bright yellow color also adds warm to this grey space © Hey!Cheese


▼动静皆宜的小空地,a space for fitnessas well as contemplation © Hey!Cheese

餐厅在深色背景之上,以金属的镜面反射和温暖的焦糖皮革点亮空间。餐桌结合中岛,是公共空间的另一座小岛,以适宜的高度,满足用餐、阅读、手作三种生活情境,并以订制吊灯不同的光源辅助使用,均光带来充足光线,投射灯则让气氛变得温馨又惬意。
Against a dark background, the dining room lights up the space by metallic mirror reflections and warm caramel leather. Combined with the central island, the dining table of appropriate height, which doubles as a workspace and reading area, serves as another anchor in the common space. The custom-made pendant lamps provides different light sources: The uniform light brings ample light while the projection lamp creates a cozy ambiance.
▼收纳有条理的工业风,将生活用品和杂物隐藏起来,透过开放式层架展现美好的一面,thanks to the organized industrial style, household items and clutter are hidden and a beautiful life is displayed through the open shelves © Hey!Cheese

▼耗时五年设计的 VIPP 餐椅,纤细的抛光铝制框架结合温润的皮革包覆,刚柔并济,充满工艺细节,Designed over five years, the VIPP dining chair has a slim, polished aluminum frame combined with a warm leather covering that is both rigid and flexible, full of crafted details© Hey!Cheese

▼柜内是男女主人的珍藏品味,偶尔小酌怡情,inside the cabinet is a collection of hosts’ tastes for the occasional sip© Hey!Cheese

来到私人空间,颜色由浓转淡,融入家庭成员各自的喜好,营造舒适的休息环境。哥哥房间延续了代表「个性」的灰色,双层床架模拟小型货柜屋,成为乐高的创作基地。
In the private spaces of the home, the color schemes are tailored to each family member’s preferences, creating a comfortable and relaxing environment. The older brother’s room features the darker shade of gray for “attitude” and a double-decker bed that doubles as a Lego workstation.
▼男孩卧室概览,overview of boy’s room© Hey!Cheese


▼玩具空间,toys space© Hey!Cheese

▼男孩卧室的锻炼设施,handrail fitness facilities in boy’s room© Hey!Cheese

妹妹是喜欢粉红色的小公主,也喜欢画画,设计师将空间定调为白色,以复合式双层空间打造一座木纹小城堡,并透过粉色的窗帘、抱枕、地毯、床头绷布等织品点缀,另外规划了整面涂鸦墙让她可以尽情创作。
The younger sister is a little princess who likes pink and drawing. Therefore, the younger sister’s room features a white and whimsical space with a wood grain castle in the compound double decked space, decorated with pink-tinged textiles such as curtains, pillows, carpets and the headboard. There is also an entire drawing wall for her to paint to her heart’s content.
▼女孩卧室,girls room© Hey!Cheese


▼有效利用梯下收纳空间,under-ladder space is efficiently used as storage © Hey!Cheese

主卧色调以浅灰和玫瑰粉营造宁静感受,卧榻上如梦似幻的烟雾树,搭配一旁的立体挂画,金属制的银色涟漪,柔中带刚,将夫妻的喜好融入其中。
The master bedroom combines the couple’s preferences with light gray and rosy pink accents, creating a sense of serenity. It also features a dreamy smoking tree and a silver ripple metal artwork, symbolizing gentleness and strength.
▼主卧概览,overview of the main bedroom© Hey!Cheese


▼房间细部,corner of the main bedroom© Hey!Cheese

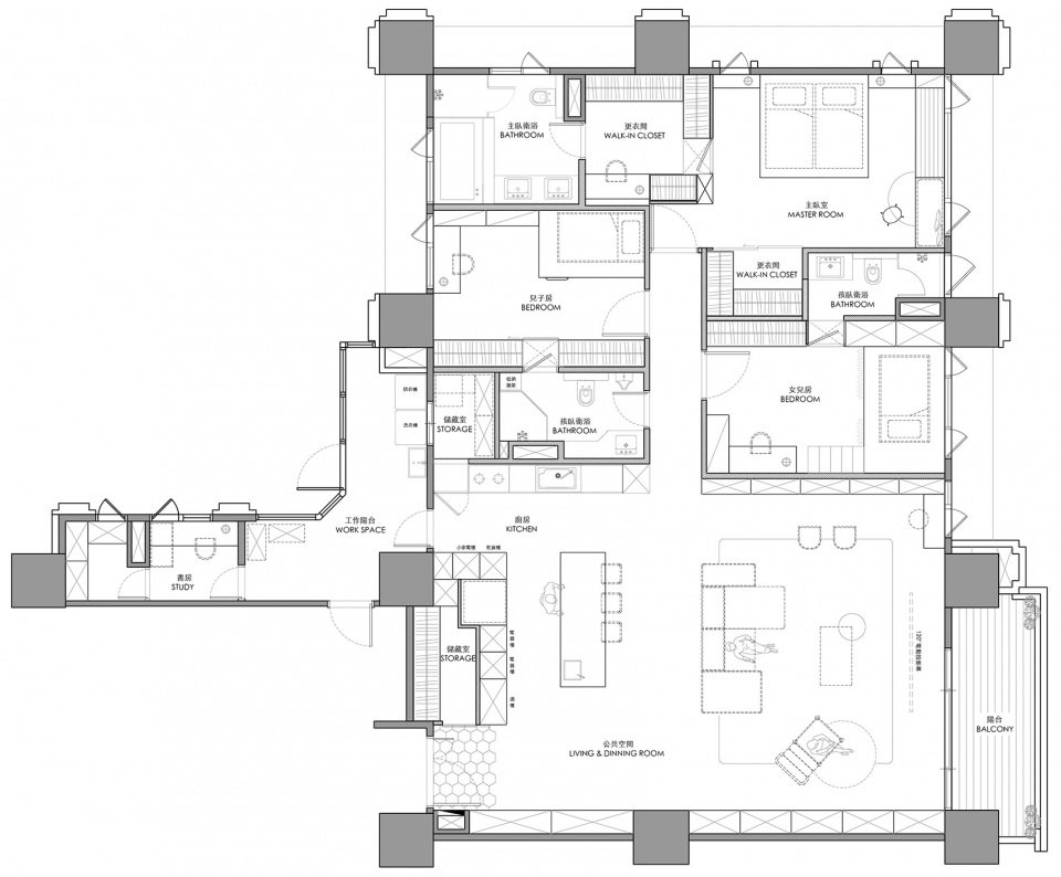
▼平面图,plan© HAO design

Furnishings|Gubi , Living Divani , Moroso , Nemo , Vipp
Photography|Hey!Cheese
More:HAO Design。更多关于他们:HAO Design on gooood