云南昆明,一座宜居的城市,舒适的气候条件与自然生态,吸引了许多旅居者在此安顿。KiKi建筑设计事务所最新完成的半山住宅,即坐落于昆明知名的高尔夫度假区内。房子的主人,是一位资深球友,也十分注重家庭氛围,打球之余,他希望这个家能够提供舒适的休憩空间,并照顾到每一位成员的需求与情绪,让家人最大程度的享受风景、亲近自然。经过一年的设计与改造,原本陈旧的架空式单层住宅,如今变成了一所风格分明的双层度假屋,在绿林与樱花树的环绕下,伫立于半山熠熠发光。
Kunming, Yunnan Province, is a livable city with comfortable climatic and natural ecology, which attracts many sojourners to settle down. The newly completed mid-hill residence by KiKi ARCHi is in Kunming’s famous golf resort. The owner is a golf enthusiast, and he hopes that this house can provide rest space and take care of the needs of each family member so that they can enjoy the scenery and get close to nature to the greatest extent. After a year of design and renovation, the old single-storey building is now a stylish double-storey holiday house, which stands halfway up the hill, surrounded by green forests and cherry trees.
▼项目概览,overall of the project© 锐景摄影

▼立面鸟瞰,aerial view of the facade© 锐景摄影

泥土,是有温度的。先民的夯土房,因泥的附着而冬暖夏凉;庄稼扎根温热的土壤,会在秋天结出可口的米粮;酒缸封进深坑泥窖,能酿出悠悠醇香……人类长久以来对于“泥土”的依赖和感知,积累了许多生活智慧,也启发了KiKi建筑设计事务所从“泥土”开始,观察和发掘房子的潜能。经过调研与考察,设计师提出了大胆的设想——在不破坏主结构的前提下,利用原始地基、坡度高差的特点,向“下”扎根,扩充住宅空间,将单层建筑变为双层。这个概念给予屋主很大的惊喜,因为它不仅意味着面积的扩充,还将穿插更多功能和视野层次。
▼改造前,before renovation© KiKi建筑设计事务所

Soil has a temperature. The rammed earth house is warm in winter and cool in summer because of the attachment of mud. Crops that take root in warm soil produce grain in autumn. Wine jar sealed into mud cellar can brew long mellow… People’s dependence on and understanding of soil has accumulated a lot of life wisdom, which also inspired KiKi ARCHi. After research and investigation, the design team provides a bold idea: let the house extend into the soil based on the characteristics of the original foundation and slope height difference, then make the single-storey building into a double one without destroying the main structure. This concept was a great surprise to the owner, as it meant an expansion of the square footage, also more functional and visual layers.
▼顶视图,top view© 锐景摄影

▼主入口外观,main entrance© 锐景摄影


▼主入口夜景,night view of the entrance© 锐景摄影

▼设计利用了原始地基、坡度高差的特点,the design takes advantage of thecharacteristics of the original foundation and slope height difference © 锐景摄影


▼室外露台,outdoor terrace© 锐景摄影

空间的拓展,围绕扎根泥土的“地基立柱”展开,设计团队对十余根暴露在外的柱子进行了一系列分析,包括位置、高度、稳固性等,以便更好的规划底层布局。借助原有地势,底层空间自下而上铺陈开来,置于3.6m-2.9m的高度内。餐厅、下沉式休闲区、健身区,位于观景视野最好的前端,厨房、卫浴、储藏间等被安排在层高稍低的后端。玻璃,作为建筑的表皮将其包围,给室内带来大量阳光;圆形钢柱的补充,很好的解决了局部支撑问题,同时为楼上延伸出的露台提供架构基础;具有防潮吸附性能的硅藻泥,从外墙延续到室内,与细腻的微水泥一同表现关于“泥土”的肌理之美。于是,曾经泥泞的坡地摇身一变,成为了一个装满生活烟火的“透明盒子”,在草木中呼吸。
The space transformation started from the foundation columns. To plan the layout of the new underground floor, the design team analyzed more than ten exposed columns, including their position, height, stability, etc., This new floor is finally placed within a height of 3.6m to 2.9m with the help of the original slope. The dining, leisure, and fitness areas are in the front with the best view, while the kitchen, bathroom, and storage room are in the back end with a slightly lower height. The glass, as the skin of the building brings a lot of sunlight. The addition of round steel columns solves the support problem and provides a structural basis for the terrace extending from the upper floor. The diatom mud with moisture-proof and adsorption performance extends from the exterior wall to the interior, showing the beauty of the solid texture together with the delicate micro-cement. Thus, the once muddy slope transformed into a ‘glass box’ filled with daily life, breathing in the grass and trees.
▼空间的拓展,围绕扎根泥土的“地基立柱”展开,the space transformation started from the foundation columns© 锐景摄影


▼开放的底层空间布局,open ground floor layout© 锐景摄影


▼下沉式休闲区,sunken leisure area© 锐景摄影


▼立柱细部,details of the columns© 锐景摄影


通透的构造,赋予底层空间自由灵动的一面,而其内在规划,则展现了“深入泥土”的探索欲、神秘感和原始性。下沉式休闲区,通过地面高差与柱子的巧妙结合,自然形成若干座位与台面,令人联想到泥土的可塑性;厨房里逐渐收窄的侧窗、浴室中温泉泡池的弧线天光,则带来身处洞穴般的体验。整个空间在明亮与深邃的切换下,更加沉浸、放松,也与楼上的风格形成鲜明对比。
The building structure gives the underground floor a free and flexible look, while the interior design shows the exploration desire, mystery, and originality of ‘deep into the earth’. The seats naturally formed in the leisure area through the clever combination of ground height and original columns are reminiscent of the malleability of soil. The tapering side windows in the kitchen and the arcs of daylight from the hot spring pool in the bathroom provide a cave-like experience. Under the switch between bright and dark, the immersed relaxing space presents a completely different contrast to the first floor.
▼由休闲区看厨房,viewing the kitchen from the leisure area© 锐景摄影


▼由厨房看餐厅,viewing the dining area from the kitchen© 锐景摄影


▼餐厅,dining area© 锐景摄影

▼由休闲区看浴室,viewing the bathroom from the leisure area© 锐景摄影

▼浴室,bathroom© 锐景摄影

▼浴室中温泉泡池的弧线天光,
the arcs of daylight from the hot spring pool in the bathroom © 锐景摄影

温暖的木格栅区域,是通往一层的楼梯厅,外露的白色钢结构与纤细的栏杆,勾勒出轻盈的视觉线条。穿行向上,如同进入一个极具包裹感的“木箱”,沿着光的方向寻到出口,即步入一楼的小客厅。在这里,空间的色温开始发生变化,一切都更加明亮温馨。玄关、水吧、下沉客厅与露台,在一条轴线上依次排列,3间私密的卧室位于两侧。打动人心的细节设计,为这个家增添了不少趣味性:云南当地的火山石砖,从户外小径一路延伸进玄关,弱化室内外的边界;水吧墙面的一道内窗,将前庭后院的风景串联,让家人在室内获得多角度观景乐趣;楼梯厅的半墙护挡,附带置物架,兼具装饰性与功能。
The warm wooden area is a staircase hall leading to the first floor, with an exposed white steel structure and slim handrail that create a beautiful visual line. Through upward, as into a wrapped ‘wooden box’, along the direction of light to find the exit, that is, into the small living room on the first floor. Here, the color temperature of the space begins to change, and everything is bright and warm. The entrance, water bar, sunken living room, and terrace are arranged on an axis, with 3 private bedrooms on either side. Local volcanic stone bricks extend from the outdoor path to the entrance, weakening the boundary between the interior and exterior. An inner window on the wall of the water bar connects the scenery of the front courtyard and back yard. The low wall of the staircase hall, with shelving, is both decorative and functional. All these Impressive details make the house more interesting.
▼楼梯间,staircase© 锐景摄影

▼楼梯间细部,details of the staircase© 锐景摄影


▼俯瞰楼梯间,overlooking the staircase© 锐景摄影

▼极具包裹感的“木箱”,a wrapped ‘wooden box’ © 锐景摄影

▼一楼小客厅,living room of the ground floor© 锐景摄影


▼走廊,hallway© 锐景摄影

▼卧室,bedrooms© 锐景摄影


随着建筑改造的完成,户外活动空间也增加至3倍。院落步道、露台、小花园与多样化的植物,将房子簇拥环绕,为家人制造了更多与自然接触的机会,也形成了多条入户动线。精心铺设的卵石、青石板、防腐木,通过材质营造不同区域停留时的感受。特别设计的排水装置,会在雨天形成悬挂的小水瀑,自成一道风景。植物向下扎根,是为了更好的向上生长,亦如这座改造后的房子,深入西南大地的土壤之中,在亲情的温度里,用充实的内在滋养美好的未来生活。
With the completion of the renovation, the outdoor space has been increased three times. Courtyard walkways, terraces, small gardens, and diversified plants surround the house, creating more opportunities for enjoying nature and forming multiple entry routes. The carefully laid pebbles, slates, and outdoor preservative wood floors create a different feeling of staying in each area through the material, and the specially designed drainage device will form a small hanging waterfall on rainy days. Plants take root downward for better upward growth, like this house, it goes deep into the soil and nourishes a better future life with rich inner in the temperature of kinship.
▼夜景,night views© 锐景摄影


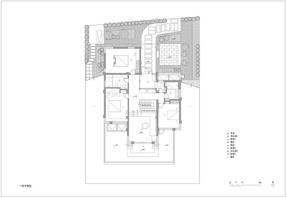
▼一层平面图,ground floor plan©KiKi建筑设计事务所

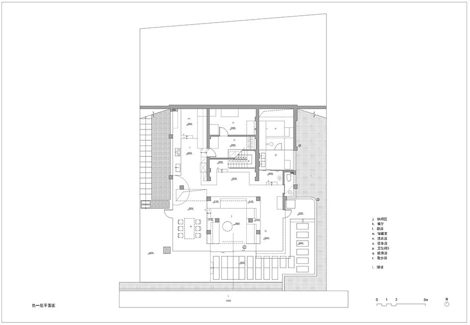
▼负一层平面图,basement floor plan©KiKi建筑设计事务所

▼立面图,elevations©KiKi建筑设计事务所


项目名称:泥土的温度——向下扎根的家
项目位置:昆明,中国
项目类型:住宅
设计公司:KiKi建筑设计事务所
主持设计师:关佳彦
设计团队:穐吉彩加,王天苹
占地面积:528㎡
建筑面积:355㎡
完成时间:2023.01
材料与品牌:硅藻泥-四国化成/ 木地板-得高 /微水泥-四国化成
摄影:锐景摄影
Project Name: House Rooted in the Soil
Project Location: Kunming, China
Element: Residence
Design Firm: KiKi ARCHi
Director: Yoshihiko Seki
Design Team: Saika Akiyoshi, Tianping Wang
Site Area: 528㎡
Building Area: 355㎡
Completion: 2023.01
Material& Brands:Diatom mud-Shikoku / WoodFloor-HISTEP / Microcement-Shikoku
Photography:Ruijing Photo Beijing
More:KiKi建筑设计事务所。更多关于他们,请至:KiKi ARCHi on gooood