▼项目视频,video of the project© 尚恩设计
把历史建筑作为“重写本”
Use historic buildings as “Palimpses”
有个英语单词叫做Palimpsest,意思是重写本。古代文明如古埃及、古希腊和古罗马,都使用纸莎草、羊皮纸或犊皮纸卷这样具有相当质量和价值的“纸张”来书写。由于这类材料造价高昂,为了能重复利用珍贵的羊皮纸,人们把之前的墨迹刮去,然后重新书写。但墨迹早已浸透纸张,并不能完全刮除。因而有时纸张表面残留着一层甚或多层的信息,这类纸卷也因此被叫作“重写本”。如此这般使用多次后,无数文字层层叠叠,让后来者着了魔般地想知道历任书写者们的故事。
There’s an English word called Palimpsest, which means palimpsest. Ancient Egypt, Greece and Rome usedto write with“paper” of considerable quality and value, such as papyrus, parchment or vellum rolls. Because of the high cost of such materials, in order to be able to reuse the precious parchment, the ink was scraped away and the writing was re -done. But the ink had already permeated the paper and could not be completely removed. So sometimes one or more layers of information remain on the surface of the paper, and this kind of roll is called a palimpsest. After repeated use, so many words are piled on top of each other that subsequent generations are mesmerized to know the stories of those who wrote them.
▼改造后沿街立面,renovated facade along the street© 尚恩设计

历史建筑的改造正如书写一张“重写本”。当建筑建成数百年后,原先的主人们早已烟消云散,但不论经历怎样的沧桑剧变,建筑会作为见证者留存下来,会不经意地保留下它曾经主人生活过的痕迹。轻轻地为后人讲述,当年的人是怎样敲一扇门,怎样推一扇窗,怎样等一个人。
The transformation of historic buildings is like writing a palimpsest. The original owners have moved or passed away during since they were build hundreds years ago but no matter what changes it has undergone, the building will remain as a witness, inadvertently preserving traces of the life of its former owners. Gently tell future generations how people knocked on a door, how to push a window, how to wait for a person.
▼中庭设置玻璃天窗,glass skylights in the atrium © 尚恩设计

Chapter 1
重现——寻找历史建筑的“初写本”
何物经久不衰,何物不复存在
Reproduce – Looking for “first sketches” of historic buildings
What has endured and what has ceased to exist
重现是历史影像的复刻,历史建筑的改造不仅是物理空间的修复,更是对于历史建筑的激活与重现。福州市上下杭,自明清以来,便是福州的商业中心和客运码头。历史的记忆中,在并行的两条古街上,行栈林立,商贾云集,厚重的商业文化使其成为“闽商”重要的发祥地之一。项目位于台江区三捷河与闽江之间,北邻上下杭历史文化街区,南临闽江,与闽江南岸的烟台山隔江对望,东临八一七历史文化中轴线和中亭街商圈,东南与解放大桥相连,西与苍霞新城相接,具有“苍山烟霞、高丘低江”的景色。
Reproduction is the reproduction of historical images. The reconstruction of historical buildings is not only the restoration of physical space, but also the activation and reproduction of historical buildings. Shang Xia Hang, Fuzhou, has been the commercial center and passenger terminal of Fuzhou since the Ming and Qing Dynasties. In the historical memory, the two ancient streets in parallel were lined with stores and merchants gathered together. The thick commercial culture made it one of the important birthplaces of “Fujian merchants”. The project is located between Sanjie River and Minjiang River in Taijiang District, adjacent to Shangxia Historical and cultural Block in the north, Minjiang River in the south, facing Yantai Mountain on the south bank of Minjiang River across the river, August 17 Historical and cultural axis and Zhongting Street business circle in the east, connected to Jiefang Bridge in the southeast, and Cangxia New City in the west, with the scenery of “Cangshan and misty clouds, high hills and low rivers”.
▼项目周边环境,surrounding environment of the project© 尚恩设计

2017年之前,建筑由多家租户聚居,建筑本体保存较为完好,屋面存在破损、坍塌,漏雨,沉降不均等情况,外墙部分砖体风化,门窗损坏较严重,存在年久失修的问题。2017年,建筑进行了整体修缮,损坏的屋面得以修复,加建砖房进行了拆除,剥落的灰板壁也做了修复。
Before 2017, the building was inhabited by a number of tenants, the building body is relatively well preserved, the roof is damaged, collapse, rain leakage,unequal settlement, the exterior wall of some brick weathering, the door and Window damage is serious, which is the problem of disrepair. In 2017, the building was repaired as a whole, the damaged roof was repaired, the added brick house was dismantled, and the peeling grey panel walls were also repaired.
▼改造前,before renovation© 尚恩设计

当正式开始改造设计时发现,区别于建筑本身的修缮,历史建筑的改造不仅是物理空间的修复,更是对于空间活力的激活与重建,用设计去赋予历史建筑新的意义与生命。而在进行设计之前,我们第一步需要做的是透过这一重重的历史变化去找到这栋建筑最原始的“初写本”。
When the renovation design was officially started, it was found that difference from the renovation of the building itself, the renovation of the historic building is not only the restoration of the physical space, but also the activation and reconstruction of the vitality of the space, and the design is used to give the historic building new significance and life. And before the design, the first step we need to do is to find the most original “initial” of the building through the heavy historical changes.
▼改造前建筑俯视图与轴测分析图,top view of the building before renovationand axonometric analysis diagram © 尚恩设计

对于福州古厝来说,组成建筑核心的构件是木构架、山墙以及屋面。闽地盛产杉木,不仅在本地的民居营建中大量使用,还大量出口至台湾甚至南洋等地。因此闽东、闽中、闽北等地的民居多采用全木结构,尤其是闽东、闽中地区,工匠充分发挥了木结构的灵活性,建筑单体体量往往很大。
For Fuzhou ancient House, the core components of the building are wood frame, gable wall and roof. Mindi is rich in fir trees, which are not only widely used in the construction of local dwellings, but also exported to Taiwan and even Nanyang. Therefore, the dwellings in eastern Fujian, central Fujian and northern Fujian mostly adopt all-wood structure, especially in eastern Fujian and central Fujian. Craftsmen give full play to the flexibility of wood structure, and the individual building volume is often very large.
▼改造前剖轴侧分析,axonometric section of the building before renovation © 尚恩设计

中平路53-59号保留了完整的穿斗式木构架,这也是支撑建筑的主体结构。建筑的山墙则采用砖石材料,一方面可以作为风火山墙与邻居分隔开来,另一方面也可以抵御饱含盐分的潮湿海风。古厝内部则采用双层屋面的设计手法,来调节屋顶尺度对室内氛围的影响。在此之外,作为围护结构的灰板壁、门窗则经历了数轮拆建。因此,在改造之初,我们拆除了大部分的灰板壁隔墙与年代门窗,对木构架、山墙以及屋面进行了整体的保留,重现了建筑的“初写本”。
No. 53-59 Zhongping Road retains the complete perforated wooden frame, which is also the main structure supporting the building. The building’s gable wall is made of brick and stone, which acts as a volcanic wall to separate the building from the neighbors and also protects it from salty, humid sea breezes. The interior of the ancient house is designed with a double -layer roof to adjust the influence of The roof scale on the interior atmosphere. In addition, as the enclosure structure of the grey panel walls, doors and Windows have undergone several rounds of demolition and construction. Therefore, at the beginning of the renovation, we removed most of the grey partition walls and period doors and Windows, and retained the wood frame, gable and roof as a whole, recreating the “original” of the building.
▼改造后剖轴侧分析,axonometric section of the building after renovation © 尚恩设计

Chapter 2
重写——描绘历史建筑的“重写本”
何物将被改写,何物将被利用
Rewrite – A“palimpsest” depicting a historic building
What will be rewritten and what will be used
重写是新旧场景的融合,我们对于历史建筑的改造着力于建筑边界的变化:一是利用原始空间的物理性能重建古厝的气候边界,另一方面是置入新的功能去塑造回应当下的生活边界。在改造的过程中挖掘旧物的价值,描绘一段新的建筑故事。
Rewriting is the integration of old and new scenes. Our transformation of historic buildings focuses on the change of architectural boundaries: on the one hand, the physical properties of the original space are used to rebuild the climatic boundaries of the ancient house; on the other hand, new functions are put in to shape the living boundaries of the present. In the process of reconstruction, we excavate the value of the old things and describe a new architectural story.
▼分析图,analysis diagram© 尚恩设计

▼轴测图,axonometric diagram© 尚恩设计

内外之间:创造口袋空间反哺城市
Inside & Outside: Create pockets to feed the city
在空间设计上,首先是咖啡厅入口部分的处理,我们重点关注房子内外之间的联系:将街道延伸到室内,玻璃橱窗退进来,形成一个能够遮蔽风雨的灰空间。这是建筑对于街道的关怀,用内外之间的这一个口袋空间去反哺城市。
▼咖啡厅剖面,section of the cafe © 尚恩设计

In the spatial design, starting with the treatment of the cafe entrance, wefocused on the connection between the inside and outside of the house: extending the street into the interior, the vitrines receding in, creating a gray space thatprovides shelter from the elements. This is the architectural concern for the street, using this pocket space between inside and outside to feed the city.
▼建筑内退形成的灰空间,grey space formed by the retreat of the building © 尚恩设计

上下之间:垂直中庭连接建筑与环境
Up &Down: A vertical atrium connects the building to the environment
往二楼拾级而上,我们设计了一处高耸的中庭区域,整个房子的木构架在这里全部裸露出来,顶部是朝南的大面天窗。这里是咖啡厅上下楼交通的枢纽,也是空间情绪变化的高潮。白天太阳升起的时候,阳光从顶部天窗洒落,整个中庭会亮起来;这种通高的空间在炎热的天气也会形成烟囱效应,热空气从底部向高处流通,冷空气从一楼室外流入,形成了自然通风的条件。同时,我们在中庭放入了建筑模型为主题的展览空间活化咖餐厅的体验。
▼咖啡厅剖面,section of the cafe© 尚恩设计

Climbing up the stairs to the second floor, we created a soaring atrium area where the entire wood frame of the house is exposed, topped by a largesouth-facing skylight. This is the hub of the cafe’s upstairs and downstairs traffic, and the climax of the emotional change of the space. During the day, when the sun rises, the sun shines through the skylight at the top, and the whole atrium will be lit up; This double-height space will also form a chimney effect in hot weather, with hot air flowing from the bottom to the top and cold air flowing in from the outside of the first floor, creating natural ventilation conditions. At the same time, we put an architectural model themed exhibition space in the atrium to activate the cafe experience.
▼改造后咖啡厅一楼,first floor of the renovated cafe © 尚恩设计

▼咖啡厅中庭区域,atrium area of the cafe© 尚恩设计


▼办公室与咖啡厅,offices and cafes © 尚恩设计

新旧之间:钢材与木材的对比与协作
Old & New: Contrast and collaboration between steel and wood
在进行整体改造之初,我们对原有木结构进行了局部的加固:采用钢结构去做一个结构上的支撑,两片C型钢左右包裹着木柱,仍然把原始的木结构裸露出来,它们共同形成了一个新的结构体系去更好的支撑整个重新设计的三层建筑。这种钢材与木材的对比与协作呈现出了新旧之间的共生之道。
At the beginning of the overall transformation, the original wooden structure was partially reinforced: the steel structure was used as a structural support. Two pieces of C-type steel wrapped around the wooden columns, still leaving the to better support the redesigned three -story building. This contrast and collaboration between steel and wood represents a symbiosis between the old andthe new.
▼改造前后对比,comparison before and after renovation © 尚恩设计

▼咖啡厅木结构加固,the reinforced wooden structure of the cafe© 尚恩设计

前后之间:阳光院落串联工作与生活
Before &After: The Sun courtyard works and lives in tandem
办公空间的改造设计核心是在建筑的内部创造新的风景,通过前后三进院落与两处边庭的风景营造,串联建筑与室外的关系,营造一个内聚、稳定的工作氛围。
▼办公室剖面,section of the office© 尚恩设计

The core of the renovation design of office space is to create new scenery i n the interior of the building. Through the landscape creation of the front and back three courtyards and two side courtyards, the relationship between the building and the outside is connected, and a cohesive and stable working atmosphere is created.
▼第二进庭院空间改造前后,the second courtyard space before and after renovation© 尚恩设计

▼第二进庭院空间,the second courtyard space© 尚恩设计

▼第一进庭院空间,the first courtyard space © 尚恩设计

冷暖之间:重塑古厝的气候边界
Warm &Cold: reshaping the climatic boundary of the ancient house
传统古厝里,中庭是院落的生活和视觉的中心,天晴时节,阳光在此汇聚,下雨时节,雨水自屋檐滴落,四水归堂,宁静致远。我们重新设计了古厝的物理边界,呈现出一种对人工与自然两相宜的办公方式。天窗的设置与外墙的拓展塑造了良好的室内条件,开门又能方便地亲近自然。
In the traditional ancient house, the atrium is the center of life and vision of the courtyard. In the sunny season, the sunlight gathers here. In the rainy season, the rain drops from the eaves, and the four waters return to the hall, making the peace reach far. We re-designed the physical boundary of the ancient house, presenting a way of working that is suitable for both the artificial and the natural. The placement of skylights and the extension of the exterior walls create a favorable interior condition, while the doors open to allow easy access to nature.
▼第三进庭院空间改造前后,the third courtyard space© 尚恩设计

▼中庭设置玻璃天窗,glass skylights in the atrium © 尚恩设计

▼仰视第一进庭院空间,looking up into the first courtyard space© 尚恩设计

Chapter 3
重生——历史建筑以当下的生活方式重新复活
何物获得新生,何物依稀可见
Rebirth – Historic buildings come back to life in a current way of life
What comes back to life and what can be seen
重生是空间活力的焕新,改造后的古厝形成了一个复合型空间;仅仅一墙之隔的咖啡厅和办公室成为了忙碌城市生活的一部分。
Rebirth is the renewal of the vitality of the space. After the transformation of the ancient house, a compound space is formed. Coffee shops and offices separated only by walls become part of the busy city life.
▼改造后沿街立面,renovated facade along the street © 尚恩设计

古厝活力的重现
The revival of the old house energy
沉寂多年的古厝慢慢沉浸在当下的城市生活中,我们欣喜地发现这些历经沧桑的青砖木柱在新的生活方式之下重新焕发了活力。而在新媒体已经成为日常的当下,这家以建筑模型为主题的咖啡厅迅速成为了网红饕客的打卡地。
The ancient houses that have been dormant for many years are slowly immersed in the current urban life. We are delighted to find that these black brick and wood pillars that have experienced vicissitudes of life are revitalized under the new lifestyle. In a world where new media has become an everyday phenomenon, this cafe with a theme of architectural models has quickly become a go -to spot for popular foodies on the Internet.
▼改造后咖啡厅一楼,the first floor of the cafe after renovation © 尚恩设计

▼咖啡厅座位区,seating area of the cafe© 尚恩设计

▼改造后咖啡厅二楼,the second floor of the cafe after renovation © 尚恩设计

设计师们陆陆续续从南侧入口进入办公室,开始一天的工作;建筑间的庭院留出了大片的自然生长空间,在工作的间隙,为人与自然间的积极互动创造了可能性,也成为了人们休息交流的中心。“即使屏幕里的工作千篇一律,但是抬起头便有自由的阳光、空气和风景。”
Designers gradually enter the office from the south entrance to start their one-day-work. The courtyard between the buildings leaves a large space for natural growth, creating possibilities for active interaction between people and nature in the interval of work, and also becoming a center for people to rest and communicate. “Even if the work on the screen is the same, there is free sunlight, air and scenery when you look up.”
▼古厝南入口,south entrance© 尚恩设计

▼办公室入口,entrance to the office © 尚恩设计

▼办公区,office © 尚恩设计

▼办公区与庭院,office area and courtyard © 尚恩设计

▼材料室与办公区,materials room and office area© 尚恩设计

在午后,阳光缓缓西落,设计师们结束了一天的工作,庭院逐渐安静;灯光亮起,迎接城市另一面喧嚣的夜晚生活。办公室里的人们推开咖啡厅的后门,嘈杂的声音立刻铺面而来;这是咖啡厅一天之中最热闹的时候,城市里的人们在这里汇聚,沉寂多年的古厝慢慢沉浸在当下的城市生活中。
In the afternoon, when the sun slowly sets and the designers finish their work for the day, the courtyard becomes quiet. The lights come on to welcome the hustle and bustle of night life on the other side of the city. People in offices push open the back doors of coffee shops, and the noise immediately starts to pour in. This is the busiest time of the day for the cafe, where people from the city gather and immerse themselves in the current urban life of the old house that has been quiet for many years.
▼办公区与庭院,office area and courtyard © 尚恩设计


赋予历史印记新的意义与生命
Give new meaning and life to historical imprints
如同史蒂夫·米德尔赫斯特描述的建筑重写本:“建筑师将重写本当作幽灵,也就是过去影像的重现。每当空间重新布局、重建或改建,都会留下过去的影子:即便支撑它的结构早已拆除,涂了焦油的屋顶轮廓线依然在建筑曾经的位置存在;移走的楼梯在原先墙面漆无法覆盖的位置留下记号。家电搬移后会在原来的位置留下灰尘边缘线。古代废墟诉说着它们曾经的完整。重写本以考古学的方式提醒我们过去建造的真实情形。”
As Steve Middlehurst describes the architectural Palimpsest: “Architects treatthe palimpsest as a ghost, a reappearance of images from the past. Every time aspace is rearranged, rebuilt, or remodeled, it leaves a shadow of the past: tarred roof contours remain where the building once was, long after the structure that supported it has been dismantled; The removed stairs leave marks where the original wall paint could not cover them. Appliances that have been moved will leave dusty edge lines in their place. Ancient ruins tell the story of how whole they once were. The palimpsest reminds us in an archaeological way of what was really like to build in the past.”
▼办公室入口天花板,ceiling of the entrance area at the office© 尚恩设计

▼办公区木构斗拱,wooden brackets in the office area© 尚恩设计

随着建筑改造的完成,古厝也迎来了整个环境新生的起点。在整个建筑的三进院落空间里,新与旧的比例在悄然地发生着变化,建筑与城市生活的的互动也逐渐多样。改造后的古厝保留着原始的建构逻辑,木构架经过时间的洗礼,犹如一幅述说着故事的古画。
With the completion of the architectural transformation, the ancient house also ushered in a new beginning of the entire environment. In the three courtyards of the whole building, the proportion of the old and the new is quietly changing, and the interaction between the building and the urban life is gradually diversified. With the transformation, the ancient house retains the original construction logic. The wooden frame has undergone the baptism of time, just like an ancient painting telling a story.
▼办公区采光天窗与木构栏杆, skylight and wooden railings © 尚恩设计


我们在古厝里刻意保留的历史印记显露出了时间和空间的魅力,这些不经意露出的“历史的一角”暗示着建筑蕴含的斑驳质感,并且将在未来不断叠加新的使用可能性。
The historical marks deliberately preserved in the ancient house reveal thecharm of time and space. These “historical corners” inadvertently revealed imply the mottled texture of the architecture, and will constantly add new possibilities for use in the future.
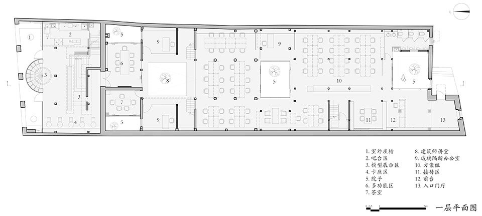
▼一层平面图,1f plan © 尚恩设计

▼二层平面图,2f plan© 尚恩设计

▼三层平面图,3f plan© 尚恩设计

项目名称:福州中平路53-59号改造:传统建筑的重写本
项目类型:古厝改造
设 计 方:尚恩设计
联系邮箱:brand@siadesign.cn
项目设计:2022年07月
完成年份:2022年12月
设计团队:吴杰元、周衍、赵非齐、缪竞鸿、王克跃、黄旻、王翀、权美妍、陈立华、蔡颖、高乐舟
项目地址:福建省福州市台江区中平路53-59号
建筑面积:1170㎡
摄影版权:郑斌、王道怀、喦建筑摄影、晨小药
客户:尚恩设计
Project name:A Palimpsest of Traditional Architecture:Reconstruction of 53-59 Zhongping Road, Fuzhou City
Project type:Renovation of ancient houses
Design: SIA DESIGN
Contact e-mail:brand@siadesign.cn
Design year:2022.07
Completion Year:2022.12
Leader designer & Team:Jieyuan Wu、Yan Zhou , Feiqi Zhao, Jinghong Miao ,Keyue Wang,Min Huang ,Chong Wang , Meiyan Quan , Lihua Chen, Ying CAI , Lezhou Gao
Project location:NO. 53-59 Zhongping Road, Taijiang District, Fuzhou City, Fujian Province
Gross built area:1170 ㎡
Photo credit: Bin Zheng、Daohuai Wang、YAN Architectural Photography、Xiaoyao Chen
Clients:SIA DESIGN
More:SIA DESIGN(mail:cairong@siadesign.cn),更多请至:SIA DESIGN on gooood