本案是空间设计师Reiichi Ikeda为庆祝其工作室成立10周年,为LAAN美发沙龙所设计的方案。项目位于大阪市中央区的玉造,这里曾经是一个充满生机的住宅区,后逐渐开发为住宅和办公场所的混合区。
Design plan for hair salon LAAN produced by Reiichi Ikeda, a spacial designer celebrating 10 years since the opening of his studio. Located in Tamatsukuri, Chuo-ku, Osaka City, developed from an area full of life home to a blend of both residences and workplaces.
▼店铺门头,The door© Yoshiro Masuda

▼室内空间概览,Overall view of interior space© Yoshiro Masuda


由于该美发沙龙位于上町区较高的位置,设计者对空间的设计涵盖了该地区连绵起伏的丘陵的意象——使用了该地区中的红色土壤、灰色土壤和树木的图像。此外,以红色花纹为特征的红花石分布在室内外各处,将室外延伸的真实感引入室内。
With the condition of being located in the uplands of Uemachi, the spacial design includes a motif of the rolling hills in the area. Objects in the image of red soil, gray soil, and trees form the zones. In addition, benikamo stone, characterized by its redness, is scattered around inside and out, with the sense of reality that stretches around the exterior also being brought inside.
▼延伸至室外的红花石,Benikamo stoneextending to the outside © Yoshiro Masuda

虽然设计者原本计划要在外立面全部使用玻璃材质,但是由于该立面朝西,便出现了围绕着夕阳、开放性和分割区域之间的一系列矛盾,因此,设计者通过可折叠40毫米左右的波纹管和花边窗帘,使顾客既能够同时感受到私密性与开放性,也能够减少来自太阳光直射所带来的眩晕,波纹管的深度保证了即使窗帘在打开的情况下也能实现以上效果。此外,设计者还将向地面延伸的蕾丝窗帘染成了红色。
▼设计者手稿,hand sketch© REIICHI IKEDA DESIGN

While planning to make the facade all glass, as the exterior faces to the west, conflicting issues surrounding taking measures for the setting sun, the openness, and the comfort of the cutting area, but by bellow folding the lace curtains around 40mm, it allows you to feel both a sense of privacy and openness, while also reducing the glare from the sun. This is achieved thanks to the depth of the bellows, even when they are open. Moreover, by dyeing this lace material red, it is characterized as an extension of the earth.
▼美发区,Hairdressing area© Yoshiro Masuda



在享受完美发体验后,顾客可以在magashiro木材质的大桌子处享用茶点。这个区域兼具了收银台的功能,还陈列了以红土和矿物质制作而成的原创吊灯等产品。
At the big table area made from magashiro wood you can enjoy tea after procedures. This area also functions as a cashier and showcases products on sale such as an original pendant light made in the image of red soil and minerals built up in layers, in addition to other products.
▼兼做收银台的大桌子,The bigdesk that doubles as a cashcounter© Yoshiro Masuda


整个内部空间的天花板都设置在了较高的位置,各结构之间的缝隙也被压缩到最小,以打造一个类似骨架般的效果。最终在天花板处呈现了一个未经处理过的骨架的层面,与室内其他设计形成了鲜明的对比,也营造了一种自由之感。
The entire interior has high ceilings and the aperture has been given a surface that is thinned to the limit with the goal of creating a partial skeleton-like image. This allows the addition of an unfiltered skeleton layer on the ceiling, achieving a clear-cut contrast and also guarantees a sense of freedom to the interior.
▼家具与天花板细节,Details offurniture and furniture© Yoshiro Masuda


▼灯具和石头摆件细节,Details oflighting and stone ornaments© Yoshiro Masuda


此外,店内还摆放了新锐艺术家、京都艺术大学硕士Mana Kawamura的原创作品,以此吸引顾客前来光顾。该美发沙龙逐渐根植于当地,为人们提供了一个能够享受高级生活品质和美丽事物的场所。
In addition, original works by up-and-coming artist and masters student at Kyoto University of the Arts, Mana Kawamura are integrated to enchant visitors. Becoming ingrained in the local area, it provides time for people to upgrade their everyday to something that much more elegant and beautiful.
▼店铺logo,Logo© Yoshiro Masuda

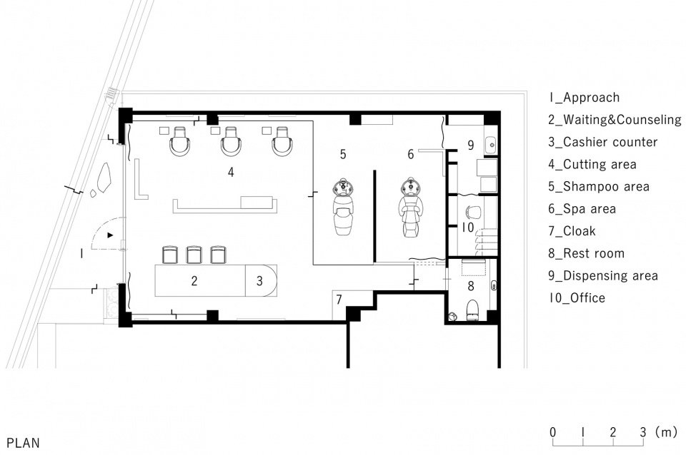
▼平面图,plan© REIICHI IKEDA DESIGN

Project Name: LAAN
Type of Project: Interior
Use: Hair salon
Location: Osaka, Japan 1-3-21, Tamatsukuri, Osaka-City, Chuo-Ku, Osaka, Japan 540-0004
Area: 83.23 square meters
Date: Jan. 2023
Design: REIICHI IKEDA DESIGN
Art: Mana Kawamura
Curtain: fabricscape
Photographer: Yoshiro Masuda
MORE:REIICHI IKEDA DESIGN,更多请至:REIICHI IKEDA DESIGNon gooood