教堂改造与新建附属建筑
The Red Church reconstruction and a newly built modern annex
自1959年以来,红色教堂一直作为奥洛穆茨研究图书馆的藏书库使用,这座美丽的路德教会教堂在此期间从未对公众开放过。如今,奥洛穆茨市政决定建造一座新的图书馆建筑来满足藏书需求,红色教堂因此得以解放,今后将用于小型音乐会、公共阅读、讲座或艺术展览等文化目的。此外,红色教堂还将成为研究图书馆和奥洛穆茨地区的信息中心。
Olomouc Research Library has been using the Red Church as a book depository since 1959 and this beautiful Lutheran church has been completely closed to the public during all those years. The owner of this listed building, Olomouc Region, decided to construct a new library building to fulfill the storage needs and so free up the Red Church for cultural purposes such as smaller concerts, public readings, lectures, or art shows. Additionally, the Red Church is intended to be an information center for the Research Library and Olomouc Region.
▼项目鸟瞰,aerial view of the project© BoysPlayNice

▼改造后的教堂与新建附属建筑,renovated church with new annex© BoysPlayNice

▼入口大厅外立面,exterior of the new entrance lobby© BoysPlayNice

▼修复后的教堂立面,renovated facade of the church© BoysPlayNice

▼屋顶细部,details of the roof© BoysPlayNice

设计的重点与要点旨在将历史建筑的整体改造工程与新的文化和社会功能紧密结合一起。建筑原状十分不理想,因此,改造的首要步骤就是对建筑的基础结构进行加固,包括:修复潮湿破碎的砖墙、修复内墙的灰泥和石膏饰面,以及修缮并填补立面覆层的缝隙等。包括底层基础的各层楼板则需要完全重建。屋顶桁架被雨水严重损坏,随时都可能倒塌。因此屋顶的重建工作是本项目中最关键的结构更新之一。工作室决定在尽量保留原有建筑元素的基础上,为教堂屋顶进行一次彻底改造翻新。新屋顶由菱形的铜制瓦片构成,并保留了原始屋顶的形状和尺度。遗憾的是,教堂内的装饰元素并没有经受住时间的考验,所以工作室与著名的奥洛穆茨雕塑家Jan Dostal合作,以当代的艺术作品对建筑空间作出了补充。
Combining the overall reconstruction of the historical building with the new cultural and social functions was the main brief and focus of the design. The building was in a very poor condition. First, it was necessary to strengthen the foundations, mend the damp and salty masonry, repair the stucco and plaster, and tidy up and fill the gaps in the facade cladding. The floors were a complete redo including the layers all the way down to the terrain base. The reconstruction of the roof was one of the most critical updates. The trusses have been severely damaged by the rain, they could have collapsed at any point. The studio decided to do a complete makeover with maximum effort to retain the original elements. The new roof was made of copper squares that copy the same shape and format as the original roof. The authentic decorative elements did not stand the test of time sadly, so the studio worked together with renowned Olomouc sculptor Jan Dostal who created contemporary artifacts to be placed there instead.
▼项目夜景,night views of the project© BoysPlayNice

▼夜间灯光效果,lighting effect at night© BoysPlayNice

▼夜景细部,detailed night views© BoysPlayNice


▼教堂入口外立面夜景,night view of the church entrance© BoysPlayNice

本项目中所需的新功能需要额外的操作和设施空间,但这些功能并不适合被规划在教堂的主体建筑中。为了避免对现有的遗产建筑进行大规模的改造,工作室决定增加一个新的体量,以满足图书馆后续的运营需求。新建筑位于教堂和图书馆理事会之间,以流畅的空间形式将两者连接在一起。全新的公共入口大厅包含了接待处以及咖啡厅。建筑体量的设计尊重了Bezrucova街一侧的城市立面,并与现有建筑保持了足够的缩进距离。
Extra space for operation and facilities was required for the new functionality of the building, but it did not fit in the main body of the church. To avoid significant construction changes to the existing heritage building, the studio decided to add on a new mass that would serve operational purposes. The new building is placed right in between the church and the library directorate, linking the two together. There is a common entrance hall with a reception and a café. The new construction respects the Bezrucova Street line and keeps enough indent from the existing buildings.
▼新建附属建筑,the new annex building© BoysPlayNice

▼附属建筑外观细部,exterior details of the annex© BoysPlayNice


水晶般的附属建筑以其几何形状、体积和布局回应了教堂的新哥特式建筑风格。建筑的平面图是从教堂平面图的一部分切割出来的,只是移到了原来的平台外侧。建筑外墙和屋顶由哑光黑色铝板制成。教堂周围的公共空间是本项目中另一个引人注目的改造元素,曾经有栅栏的地方变身为公共广场,并设置了座位区以及与之搭配的绿植。
The crystal-like mass of the annex responds to the neo-Gothic form of the church; it derives from its geometric shape, volume, and layout. The floor plan is a cut-out of the part of the church floor plan, only moved outside of the original platform. The walls and the rooftop are made of matte black aluminum. The public space around the church is another compelling addition to the project. Where once there was a fence, there is a piazzeta with seating arrangements and suitable greenery now.
▼附属建筑夜景,night view of the annex© BoysPlayNice


▼入口大厅外立面夜景,exterior night view of the lobby© BoysPlayNice

室内设计
Interior design
室内空间的设计与理念主要由atelier-r操刀,详细的室内设计元素,如:照明或陈设与定制家具的选择等,则由Denisa Strmiskova工作室负责。材料与饰面的选择则是在两家工作室的紧密合作下完成的。
Atelier-r designed the concept and philosophy of the interior spaces and asked for collaboration with Denisa Strmiskova Studio which stands behind the detailed interior design elements such as the choice of lighting, or ready and custom-made furniture. Both atelier-r and Denisa Strmiskova Studio closely collaborated on choosing the materials and surfaces.
▼大厅室内概览,interior of the lobby© BoysPlayNice

▼座位区,seating area© BoysPlayNice

▼通往教堂的连廊,passage to the church© BoysPlayNice


▼书柜墙与玻璃灯具,book wall and the glass lighting features© BoysPlayNice


接待处和咖啡厅占据了现代附属建筑的主要空间,以淡粉色的混凝土肌理为特色。接待台柔和的色彩与地板、墙面,以及家具相得益彰,营造出和谐的整体空间氛围。占据了整面墙的巨大书柜奠定了室内空间氛围的基础。高高的墙面书柜上摆满了旧书,夜晚背侧的灯光则会穿过书之间的缝隙透射出来。书柜墙前方则是彩色的Lambert & Fils玻璃灯具,优雅简约的玻璃元素漂浮在空中,通过纤细的尼龙绳悬挂在游客们的头顶。当从特定的角度看向这些玻璃灯具时,街道景观与教堂则会通过反射映入人们的眼帘。可以说灯光是房间里的决定性连接元素。
The reception and the café are taking up the main space in the modern annex. It is made of pastel pink concrete. The pink colour also matches other surfaces throughout the space such as floors, furniture, or walls. Massive accent book wall dominates the interior. It is a tall wall filled with old books that are backlit in the evening. There is a colourful glass Lambert & Fils light fixture hanging in front of the wall. The elegant and minimalist glass elements float in the air, suspended on the nylon ropes high above the visitors’ heads. If you look at them from specific angles, they reflect the houses in the street or the church. The lights are the defining connecting element in the room.
▼粉红色混凝土制成的接待台,reception desk made in pink concrete© BoysPlayNice



▼更衣室,locker room© BoysPlayNice



种类丰富的座椅为人们创造出舒适的阅读环境,让人们尽享这冥想般的空间氛围。教堂内部和附属咖啡馆采用了由胡桃木制成的Zeitraum座椅,以及由Bouroullec兄弟设计的令人耳目一新的塑料座椅。极简主义风格的扶手椅为人们创造出舒适的休闲空间。咖啡桌则是为本项目量身定做的,其材料和细节都受到了教堂传统元素的启发。教堂和咖啡馆里的Kaia落地灯以现代的设计语言诠释了教堂中华丽的大烛台,并营造出一种轻松愉快的氛围。此外,图形工作室KOSATKO也参与了本项目,为研究图书馆设计了全新的视觉与标识系统。
Sitting on the variety of comfortable chairs you will enjoy the meditative atmosphere of the space. Wooden Zeitraum chairs are made of walnut wood, and they are in both the church interior and the café in the annex. Plastic Hay chairs are a refreshing design by the Bouroullec brothers. There are also minimalist armchairs to rest on. The coffee tables were made to measure. The material and the details of the tables were inspired by the traditional elements of the church. Floor lamps from Kaia remind us of a modern flambeau. They are placed in both the church and the café to set a pleasant vibe. Graphic studio KOSATKO collaborated on the project, designing a brand-new visual identity and the logo for the Olomouc Research Library.
▼改造后的教堂室内,interior of the church after renovation© BoysPlayNice

▼由雕塑家Jan Dostal创作的艺术家具作品,
art furniture piece created by sculptor Jan Dostal © BoysPlayNice

▼入口大厅室内夜景,interior night view of the lobby© BoysPlayNice

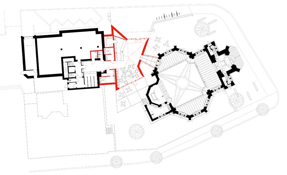
▼总平面图,master plan© atelier-r

▼一层平面图,ground floor plan© atelier-r

▼二层平面图,upper floor plan© atelier-r

▼立面图,elevations© atelier-r


▼剖面图,section© atelier-r


Studio: atelier-r
Author: Miroslav Pospíšil, lead architect
Contact E-mail: atelier-r@atelier-r.cz
Website: http://www.atelier-r.cz/
Social media: http://www.instagram.com/atelier.r.olomouc/
http://www.facebook.com/atelier.r.olomouc/
Studio address: tř. Spojenců 748/20, 779 00 Olomouc, Czech Republic
Co-author: Daria Johanesová, architect, lead project manager
Project location: Bezručova 1180/3, 779 00 Olomouc
Project country: Czech Republic
Project year: 2018 – 2019
Completion year: 2023
Built-up Area: 606m²
418m²church
188m²new building
Gross Floor Area: 870m²
640m²church
230m²new building
Usable Floor Area: 590m²
395m²church
195m²new building
Plot size : 1520m²
Dimensions: church 32 x 20 m, height 55 m
new building 19 x 18 m, height 9 m
cubic capacity 1310 m3
Cost: 7,2 mil. €
Client: Olomouc Region
Olomouc Research Library
Client’s e-mail: vkol@vkol.cz
Client’s website:http://www.olkraj.cz/
Photographer: BoysPlayNice, info@boysplaynice.com, http://www.boysplaynice.com/
Collaborator Interior design: Denisa Strmisková Studio,http://www.denisastrmiskova.com/
Graphic design: Studio KOSATKO,http://www.studiokosatko.cz/
Steel artifacts: Jan Dostál, http://www.jandostal.com/
General contractor: Company Červený kostel [associations of companies STRABAG and OHLA ŽS],http://www.strabag.cz/, http://www.ohla-zs.cz/
Interior furnishings contractor: Prosto Interiér,http://www.prosto.cz/
Materials
ceramic tiles – facade of the church
copper – roof of the church
terrazzo – floor of the church
stained wood – interior elements
solid-coloured concrete – floor of the new building
reinforced concrete – walls of the new building
alucobond panels – facade and cladding of the new building
concrete coating – ceiling of the new building
steel – book wall in the foyer
glass – facade of the new building
stainless steel – decorative elements on the roof
Products and Brands
lighting Sainte — Lambert Fills\ http://www.lambertetfils.com/
lighting Lia — Kaia\ http://www.kaialighting.com/
chairs Sit — Zeitraum\http://www.zeitraum-moebel.de/
chairs Élémentaire — HAY\http://www.hay.dk/
facade and cladding of the new building Reynobond — PREFA Aluminiumprodukte\ http://www.cz.prefa.com/
glass facade — Schüco\ http://www.schueco.com/
concrete counters, concrete door of the furniture, wash basins — Gravelli\ http://www.gravelli.com/
concrete coating — luxusní povrchy Němec\ http://www.nemec.eu/
poured terrazzo floor in the church — PROVAS Plzeň\ http://www.provasplzen.cz/
MORE:atelier-r,更多关于他们:atelier-ron gooood.