
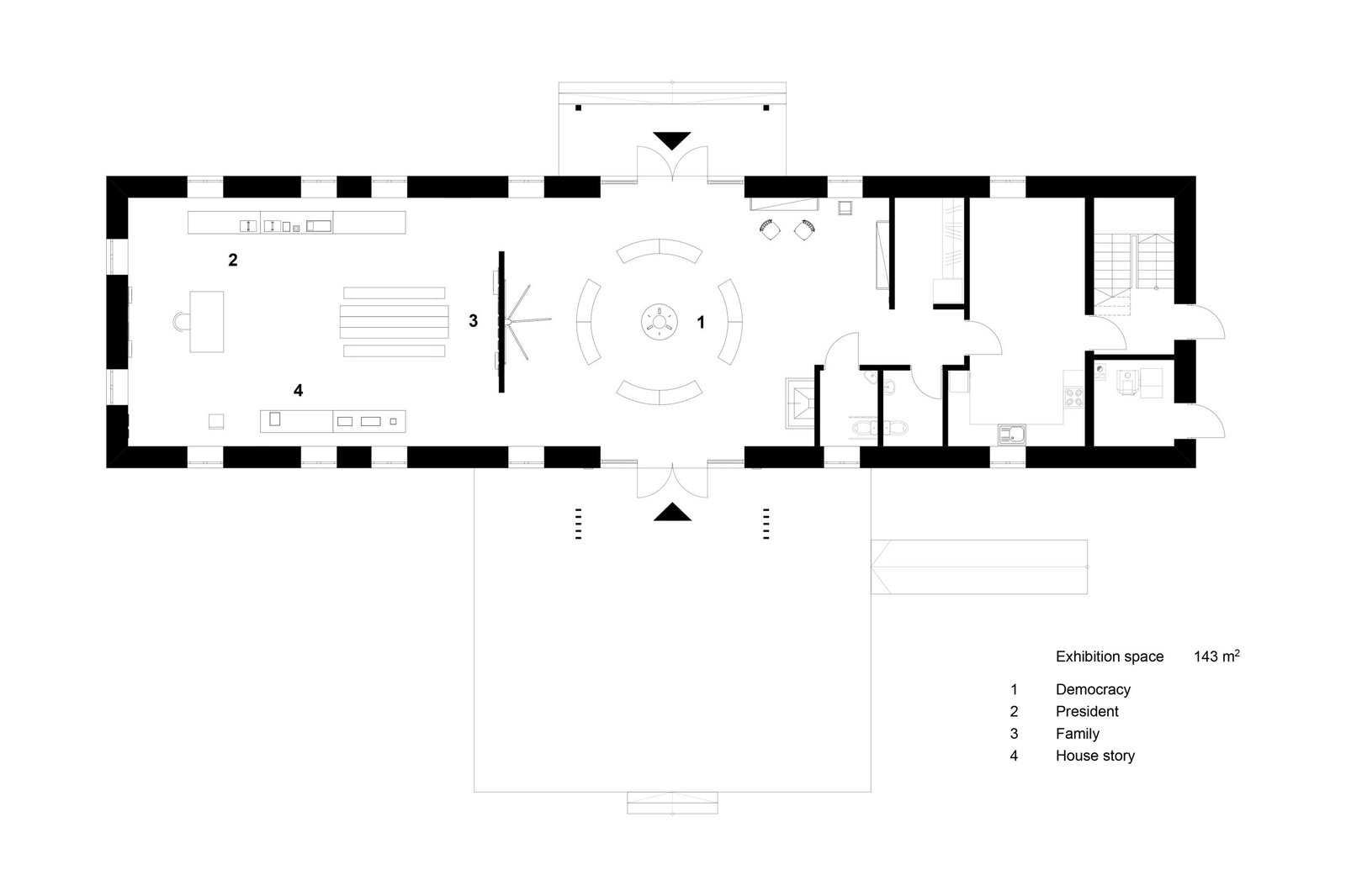
该展览在拉脱维亚被视为民主社会价值观的开放故事。其前提的灵感来自于一个家庭的故事,它是拉脱维亚国家命运的代名词,并强化了国家本身存在的观念。开放这些场所进行对话,参观者可以最大程度地参与并交流想法,从而促进对公民社会在国家存在中的作用的理解。设计师的任务是在当今使用的环境中传达 Jānis Čakste 永恒的想法和见解。内部经过精心设计,简洁干净,传达出一种精明的秩序和精确的感觉。
作者:H2E 设计工作室
内容:H2E 设计工作室;伊尔泽·多贝莱
年份:2018
总面积:143 m2
客户:Jānis Čakste 的家人
项目地点:拉脱维亚 Ozolnieki 区 Salgale 教区 Auči
建筑师:奥斯卡·萨尔普特拉
照片来源:Ansis Starks / H2E
项目链接:http://h2e.lv/eng/janis-cakstes-house/
H2E 设计工作室
H2E 设计工作室于 2007 年在里加成立,现已成为拉脱维亚最有经验和影响力的设计工作室之一。H2E 专注于展览设计、室内设计和平面设计。
网址:www.h2e.lv
设计工作室 H2E Instagram:@designsudioh2e








正文完
更多资讯,敬请关注「走访建筑」微信公众号😘