
THELITTLES 儿童咖啡厅是一家位于北京的差异化亲子餐厅,为全家人带来哲学、美学、成熟的主题环境。
设计理念是创造一个可以为“小孩”(父母)和“小大人”(孩子)提供游乐场的空间。
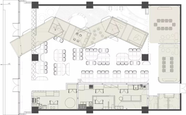
我们致力于打造一个开放的环绕式空间,由中心儿童区以及周边用餐区和功能区组成。中心区被散布的局部空间划分,可以为孩子们提供探索的空间,冒险并探索。
Chief Designer : yuanyin , linxiao.
Design Team: yangyulong , like , xiexiaoju
由 Y / X 工作室设计














正文完
更多资讯,敬请关注「走访建筑」微信公众号😘