
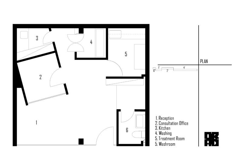
空间被视为多种尺度的城市形态的集合。该地点是伊斯兰堡 F6 繁华集市中的一个小立方体。空间服务于兽医诊所的复杂系统。每个盒子都用不同的材料包裹以表示功能。蓝色空间是洗涤空间。木质形式是办公 / 咨询空间。聚碳酸酯盒子是手术室,白色盒子是厕所。玻璃幕墙向路人展示了空间的内部几何形状。所有表面均为哑光且不反光。聚碳酸酯板在空间中提供视觉屏障和隔音效果。空间净高为 10 英尺。所有的形状都逐渐变细以打开空间。
http://www.orad.space
建筑公司:激进建筑学科办公室
公司地点:巴基斯坦伊斯兰堡。
完成年份:2020
总建筑面积:598 平方英尺。
项目地点:巴基斯坦伊斯兰堡 F6。
首席建筑师:穆罕默德·阿里·萨纳乌拉
首席建筑师电子邮件:roadworks@gmail.com
照片来源:达瓦尔齐亚












正文完
更多资讯,敬请关注「走访建筑」微信公众号😘