
“我们总是把自己想象成一个想要享受乐趣和探索的孩子。我想要一个有安全感、温柔感的空间,一个属于自己的角落,可以隐藏,可以阅读,可以想象。我们一直在努力实现这一目标,然后我们从孩子们的微笑中得到了我们想要的答案。”
— 首席设计师 Vinci Chan 及团队 —
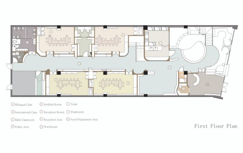
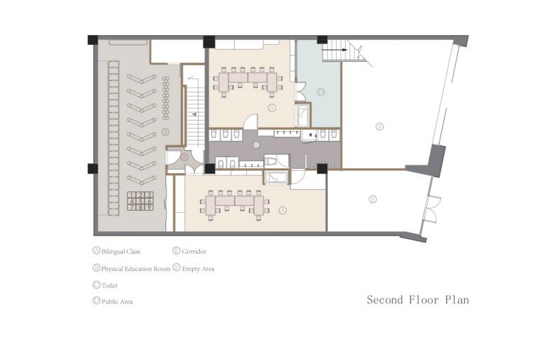
——东方的“土楼”
– 不受限制的社交生活
– 重塑学习和教学
亲爱的零售设计博客编辑,
更多信息供您审核。
项目预览链接 –
https://mailchi.mp/1a691e6b7f3d/project-submission-pony-running-daycare-showroom-by-vmdpe-design?e=[UNIQID]
新闻资料袋下载链接 –
https://drive.google.com/open?id=1dzn290JH8vAllcAvMouTlJljAMDi3hQy
设计:Vinci Chan,摄影:张超



















正文完
更多资讯,敬请关注「走访建筑」微信公众号😘