
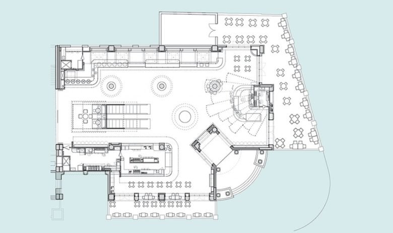
设计和规划具有一定地形限制的三层休闲和商业综合体——中心自动扶梯、后门、巨大的柱子、阳台和低矮的天花板。对角线的铺装有助于将并列代表的三个知名品牌统一起来。水果沙拉自助餐采用品牌明亮的色彩,通过地板、天花板和柱子上的元素营造出诱人的视觉效果。Nafisse 熟食店对东方图案进行了现代诠释。立柱包层采用 3D 打印技术完成,并结合广告和促销区域。
我们很自豪能够与邻居合资创建一个主要以娱乐和享受为目的的区域。
设计与规划:KOREN Visual Solutions
实施与摄影:Fountain Cafe






正文完
更多资讯,敬请关注「走访建筑」微信公众号😘