
该项目位于杭州天都城,建筑面积约 106 平方米,为时尚连锁品牌。客户希望在便捷应用的基础上营造时尚、简约、优雅的购物环境。
设计师考虑将吸引力与建筑本身结合起来。
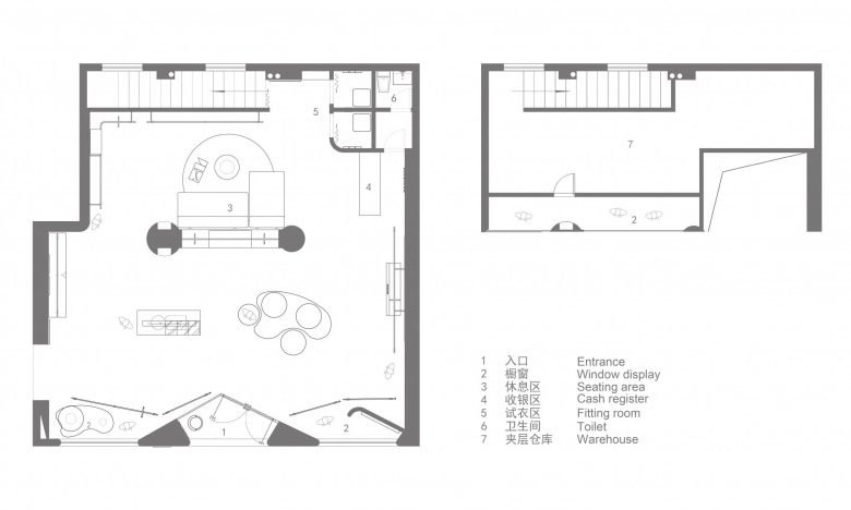
建筑物的高度比较高。拆除工程完成后,中间两根立柱的出现将空间支撑成方盒结构。至于如何摆脱局促的方形感,设计师围绕中场柱子做了一些结构处理:内场部分建在两层,上层作为橱窗展示和储物空间。
项目地址:杭州。天都城
完成时间:2021 年
设计公司:及上室内设计事务所
设计总监:卢刚
项目管理:周婷
空间设计:石明江周滢
空间摄影:稳摄影
道具制造:海源文化














正文完
更多资讯,敬请关注「走访建筑」微信公众号😘