
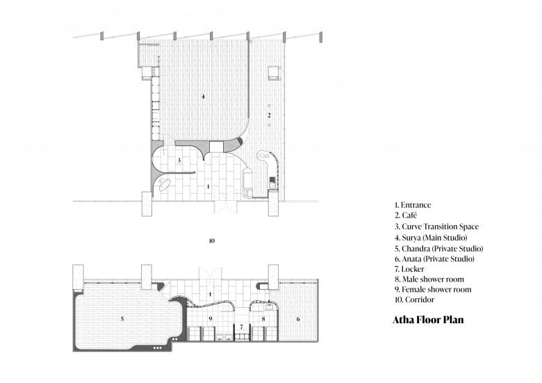
Atha 是一家紧凑但实用的瑜伽工作室,位于曼谷通罗区。它由瑜伽活动区和植物咖啡馆组成,面积仅 250 平方米。主要设计意图是创造一个完美表达瑜伽运动复杂性的空间。连续的弧线将每个房间连接在一起,散发出诱人而温馨的氛围,让客人在参观工作室时感到真正的放松。Atha 瑜伽工作室是游客在曼谷寻求平衡与平静的独特场所。其经过深思熟虑的设计将瑜伽和健康活动的体验提升到了一个新的水平。游客可以感受到自己的身体和精神都得到了真正的提升。
https://drive.google.com/drive/folders/18HNmtYUIJbW1pmuEmljPTwY3RjEwVfqO?usp=sharing
信用清单
设计师:Surapak Intrakul、Atitaya Taratai
摄影师:Rungkit Charoenwat
标志设计:Promphan Suksumek
机电工程师:TANN 工程师
客户:Nutcha Moothanakitpinyo
地点:泰国曼谷
面积:250 平方米
项目年份:2021




















正文完
更多资讯,敬请关注「走访建筑」微信公众号😘