
在构思这个陈列室时,OUTIN。DESIGN 旨在利用空间形式创造一种新的展示方式。充分考虑构造的合理性、艺术的呈现、商业逻辑、人与空间的互动,OUTIN。设计团队以有机和实验的方式进行设计。
项目名称:aEther 展厅
Location: DERLOOK, Zhejiang, China
竣工时间:2020 年
客户:aEther
面积:98 平方米
设计公司:OUTIN。设计 (www.out-in-x.com)
主创设计师:王晨
设计管理:R.E.C 团队
道具制作:OUTIN。设计
灯光设计:OUTIN。设计
品牌命名:王辰
品牌六:黑羊
市场推广:沙军
摄影:文工作室
视频:https://youtu.be/F_TikU5enaE
概念 | 自然的创造
“以太”的概念起源于古希腊,被称为继土、水、空气、火四种元素之外的“第五元素”。它被认为是所有物理现象的媒介,是填充宇宙真空的基本物质,也是所有物质基本粒子的组成部分。
从宏观到微观,从日月星辰的运行到细胞的裂变,都包含在一个概念体系中。一切众生相互作用、相互融合,形成无限循环。
品牌 | 情感联系
这解释了 aEthEr 命名背后的逻辑,这个地毯品牌探索自然形态,不断创新而不是复制。
作为设计师地毯品牌,aEthEr 希望其产品成为表达空间情感的媒介。
该品牌的 JIA 系列地毯由王晨设计,灵感源自大自然。其有机、自由交织的构图形成了“流体雕塑”。地毯的创作寓意自然,呼应人性。在充满警惕和疏离的城市社会环境中,它激发了人与人之间纯粹而自发的互动。
品牌主理人李伟的风景摄影作品《生长的力量》,与自然直接对话,呈现野生森林中的秩序与活力。
自然生物的纹理和色彩激发了品牌空间季节性策展的定位,孕育出一系列传达日常生活中自然情感的地毯作品。
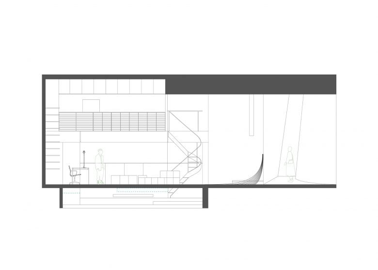
空间设计 | 渗透与延伸
在构思这个陈列室时,OUTIN。DESIGN 旨在利用空间形式创造一种新的展示方式。充分考虑构造的合理性、艺术的呈现、商业逻辑、人与空间的互动,OUTIN。设计团队以有机和实验的方式进行设计。
有机的不对称布局和相互交织的体块定义了多边形空间,并赋予其建筑美感和力量。一种扭曲的循环贯穿整个空间。交错的框架分隔又连接不同的区域,增强了光线、空气的流动性,产生有趣的视觉和听觉体验。
从狭窄的入口开始,视野逐渐开阔。光、影、结构、色彩的结合,在有限的空间内引发无限的想象,简单的形式和丰富的细节得到充分的呈现。设计以元素单元为节点,延伸视觉和活动领域,构成整体空间。
相互渗透的表面模糊了空间秩序,材质纹理的过渡暗示着自然与人工的平衡。楼梯以几何构图和艺术形式为特色,既是引导体验路线的有效媒介,也是空间的视觉亮点。
设计强调建筑空间与自然的共生。长方形的中庭融合了光影的张力,以间接光源营造出柔和的氛围,增加了空间尺度。空间中的每个元素都像一个有机体,传达着其创造者的情感。
艺术呈现 | 将无形资产转化为有形资产
设计师通过模拟自然状态,采用源自自然园林的结构表现,创造出有形的、富有想象力的艺术装置,为空间注入了有机的特征和美学线条。
废旧材质的质感带着岁月的痕迹。经过加工后,它流露出一种更贴近生活的力量感和美感,也软化了工业文明的坚硬。
建筑 | 从已经存在的东西演变而来
建筑往往反映城市人的生活习惯和文化记忆。对于老建筑来说尤其如此。经过改造后,这个建筑空间变成了过去的记忆、光、影和情感的混合体。其形象揭示了日常生活的片段,以及对自然、城市和人之间关系的新思考。












