
该项目位于中国杭州老城区。原建筑曾是杭州最早的照相馆之一。如今,改造后作为精品店和创意空间。有趣的是,原本属于相机的光学成像原理,在这个项目中得到了巧妙的呈现。设计不仅解决了店铺的功能问题,还具有新旧共存的空间图景,我们创造了当代与历史的对话。
项目名称: 风景小巷 | 杭州贝科 295 精品店及创意空间
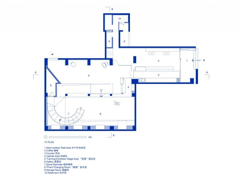
功能: 选店、展览、咖啡
设计时间: 2020.10-2020.12
建设时间: 2020.12-2021.06
地点: 中国杭州市中山中路 295 号
建筑面积: 318.3 平方米
建筑师: 肖磊、重野裕二、王自鹏、石嘉欣
合作:不 适用
所有者: 贝科 295
类型: 内外立面改造
状态: 已完成
照片: 乔纳森·莱乔胡夫德
助理摄影师: 围围






















正文完
更多资讯,敬请关注「走访建筑」微信公众号😘