
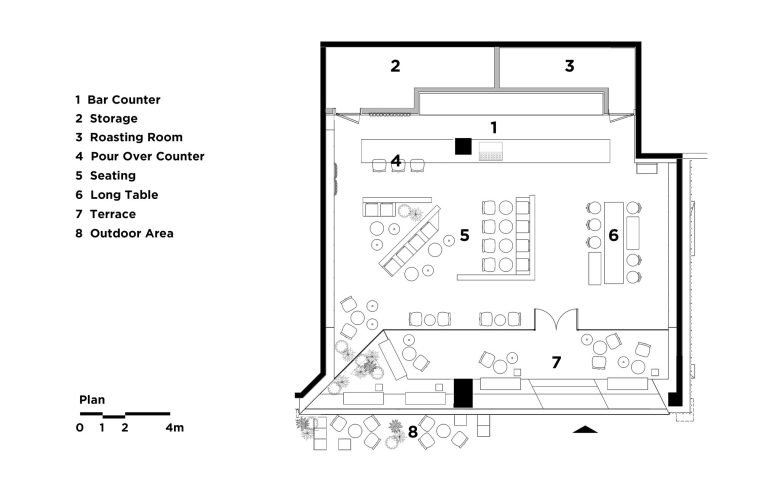
该项目受澳大利亚创立的咖啡品牌 SOMETHING FOR 委托。位于深圳市中心商业综合体的半地下地块,顶层为商业停车通道。室内地面比室外地面低很多,入口高仅 2 米。场地的高度和光线带来的限制让人感觉压抑——独特的空间形态既是项目的巨大挑战,也是突破。
MOC 并没有采用技术策略来避免网站缺陷,而是从建立一个愉快、无压力的场所开始,让人们能够逃离当下海量严肃的信息,自由呼吸。
总设计师:梁三、杨振宇
项目总监:吴薇薇
设计团队:李娟纳、顾松宇
设计阶段:2021 年 11 月至 12 月
完成时间:2022 年 1 月
地点:深圳市南山区益田假日广场 1 楼
面积:160㎡
材料:白色花岗岩,瓷砖,木纹膜,喷砂不锈钢
客户:适合的东西
译者:可可
摄影:聂小聪


















正文完
更多资讯,敬请关注「走访建筑」微信公众号😘